Goodfellows says ..
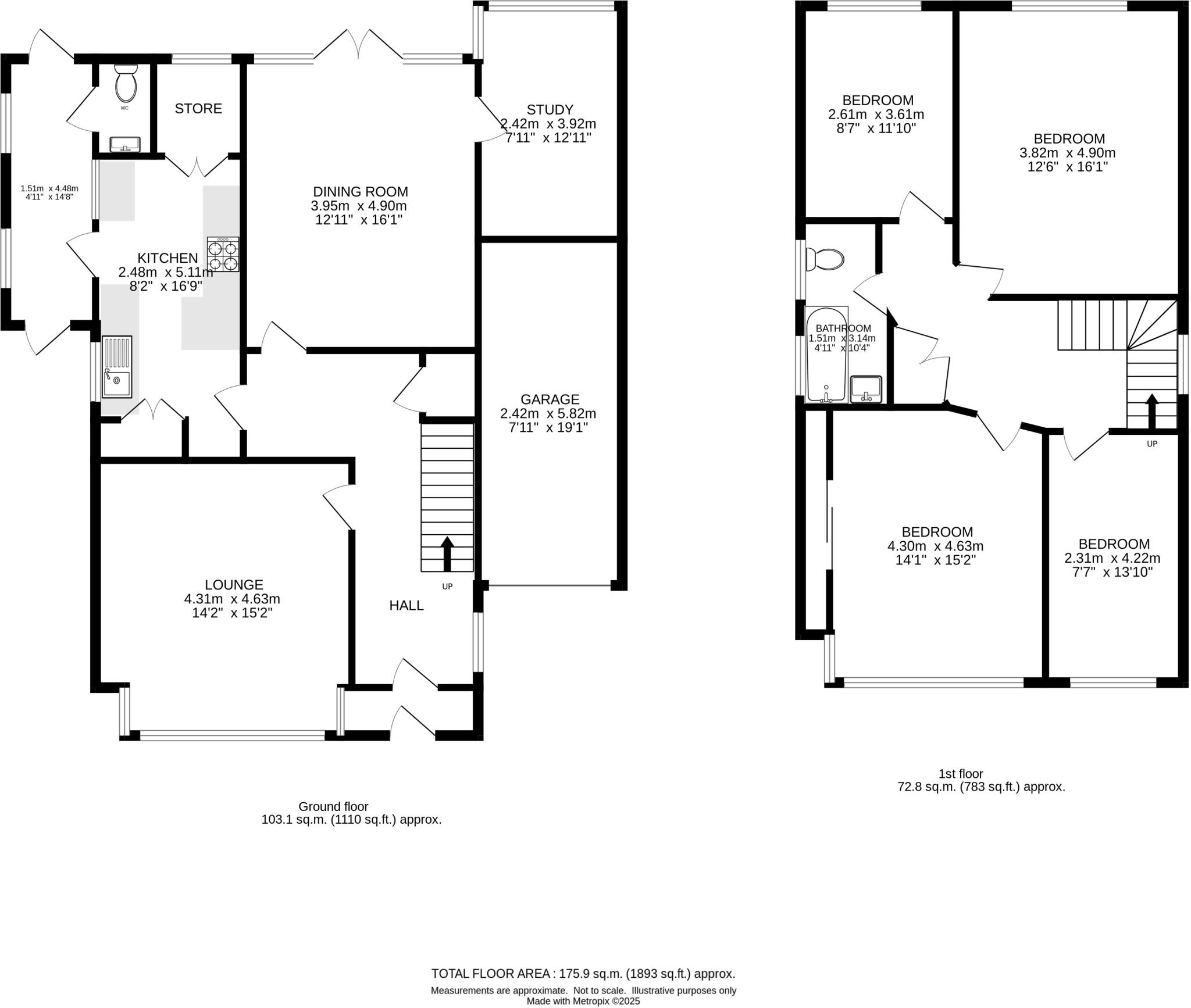
Nestled in a private corner of Willis Avenue is this well maintained four bedroom detached 1930s family home. It benefits from a large secluded driveway and garage at the front of the house, and an established garden behind, with hedged-off section at the end for a potential garden building, food...
Property Oracle says ..
This detached property is located on Willis Avenue in Sutton South, London. It features four bedrooms and offers 1,893.37 sqft of living space on a plot of 2,152.78 sqft.
The location benefits from proximity to several schools, including Barrow Hedges Primary School and St Philomena’s Catholic High School For Girls. Transportation options include Carshalton Beeches and Sutton railway stations.
The property appears to be a traditional build with some modernisation. The interior photos suggest that some rooms may benefit from updating, while others, like the office, kitchen and bathrooms, appear more modern. The property includes a garden.
The list price is £875,000. The average price per sqft in the area is £527.00. This property is listed at approximately £462 per sqft. Nearby properties on Willis Avenue, which are semi-detached, have recently sold for between £410,000 and £735,000. Considering the size and detached nature of the property, the price seems reasonable.
Therefore, we give this property 6 / 10. *Disclaimer: This is our option and does constitute a recommendation or financial advice. Do your own research. *
- Price
- 7
- Condition
- 6
- Location
- 8
- Land
- 6
- Bedrooms
- 4
- Bathrooms
- 0
- Sqft (est)
- 1,893.37
- Lot (est)
- 2,152.78
The heatmap indicates the level of crime in the area. The color of the heatmap indicates the crime severity and recency.
Metrics Year-on-Year
- Average area value
- 322,857.00 £Decreased by 19.08 %
- Est sale value
- 997,805.99 £Increased by 10.48 %
- Average area rental value
- 1,596.00 £/moDecreased by 5.17 %
- Est letting value
- 3,786.74 £/moUnchanged by 0.00 %
- Est rental Yield
- 5.93 %Increased by 17.19 %
- Crime Rate
- 1.00 %Unchanged by 0.00 %
Agent Activity
Goodfellows created the listing.
Nearby Schools
| Name | Type | Ofsted | Distance |
|---|---|---|---|
| Barrow Hedges Primary School | Academy Converter | 0.64 KM | |
| St Philomena'S Catholic High School For Girls | Voluntary Aided School | Outstanding | 1.09 KM |
| Seaton House School | Other Independent School | 1.34 KM | |
| St Mary'S Rc Junior School | Voluntary Aided School | Good | 1.36 KM |
| Manor Park Children'S Centre (Sutton Central East) | Children's Centre | 1.42 KM |
Images
Nearby Streets
| Name | Average Price | Average Sqft | Distance |
|---|---|---|---|
| Upland Road | £ 0 | 0 | 0.00 KM |
| Chalgrove Road | £ 850,000 | 0 | 0.00 KM |
| Waterloo Road | £ 590,000 | 0 | 0.00 KM |
| Mitre Close | £ 0 | 0 | 0.00 KM |
| Bishop's Place | £ 0 | 0 | 0.00 KM |
Nearby Transport
| Name | NLC | TLC | Distance |
|---|---|---|---|
| Carshalton Beeches | 5406 | CSB | 0.80 KM |
| Sutton | 5385 | SUO | 1.58 KM |
| Carshalton | 5405 | CSH | 1.68 KM |
| Sutton Common | 5436 | SUC | 2.87 KM |
| Belmont | 5350 | BLM | 2.87 KM |
Nearby Listings
| Address | Price | Type | Score | Distance |
|---|---|---|---|---|
| Willis Avenue, Sutton, SM2 | £ 875,000 | BUY | 6 / 10 | 0.00 KM |
| Willis Avenue, South Sutton | £ 800,000 | BUY | Unknown | 0.10 KM |
| Downside Road, South Sutton | £ 875,000 | BUY | 7 / 10 | 0.19 KM |
| Warren Park Road, Sutton, SM1 | £ 675,000 | BUY | Unknown | 0.24 KM |
| Upland Road, South Sutton | £ 1,350,000 | BUY | 7 / 10 | 0.25 KM |
Nearby Properties
| Address | Price | Distance |
|---|---|---|
| 6 Willis Avenue | £ 460,000 | 0.10 KM |
| 12 Willis Avenue | £ 650,000 | 0.10 KM |
| 38 Willis Avenue | £ 635,000 | 0.10 KM |
| 13 Willis Avenue | £ 655,000 | 0.10 KM |
| 32 Willis Avenue | £ 450,000 | 0.10 KM |