Summerfield Road, Chesterfield
ST

Summerfield Road, Chesterfield

By Strada Estates

£ 325,000

Reviews

3 out of 5 stars

Strada Estates says ..

Strada estates are delighted to offer this extended 4 bedroom property finished to a high standard throughout. The property is situated on the outskirts of Chesterfield Town Centre, convenient for local shopping facilities and within walking distance Chatsworth Road which boasts plenty of restaur...

Property Oracle says ..

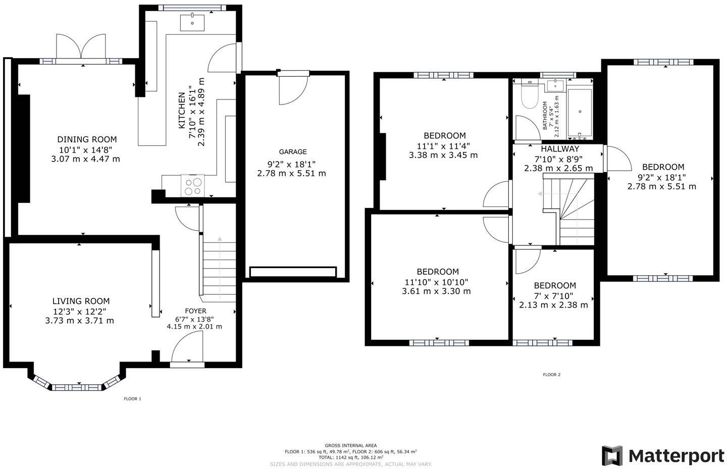
This four-bedroom detached property in Chesterfield’s St Leonard’s area presents itself as a well-maintained and updated home. The interior photographs showcase a recently renovated interior with a modern kitchen, updated bathrooms and comfortable living spaces. The property includes an attached garage. The exterior is well-kept with a brick facade and a garden, although the garden’s size appears modest in comparison to some other properties. The property’s location provides access to Chesterfield town centre’s amenities as well as several schools, including Parkside Community School (rated ‘Good’) and Spire Junior School (also rated ‘Good’). The proximity to Chesterfield train station may make it appealing to commuters. Overall, the property offers a modern and well-presented living space in a convenient location. However, the lack of precise square footage data for the property and the nearby listings makes it challenging to definitively assess the price-per-square-foot value compared to other properties in the immediate vicinity. Further information would improve this evaluation. The small plot size is another consideration that should not be overlooked. Although the garden is aesthetically pleasing, the space is compact.

Therefore, we give this property 6 / 10. *Disclaimer: This is our option and does constitute a recommendation or financial advice. Do your own research. *

Price
7
Condition
9
Location
7
Land
4
Bedrooms
4
Bathrooms
1
Sqft (est)
1,142.27

The heatmap indicates the level of crime in the area. The color of the heatmap indicates the crime severity and recency.

Metrics Year-on-Year

Average area value
487,285.00 £
Decreased by 7.65 %
from 527,656.00 £
Est sale value
581,415.43 £
Increased by 21.19 %
from 479,753.40 £
Average area rental value
1,920.00 £/mo
Increased by 13.27 %
from 1,695.00 £/mo
Est letting value
2,284.54 £/mo
Increased by 100.00 %
from 1,142.27 £/mo
Est rental Yield
4.73 %
Increased by 22.86 %
from 3.85 %
Crime Rate
2.00 %
Unchanged by 0.00 %
from 2.00 %

Agent Activity

  • Strada Estates created the listing.

Nearby Schools

NameTypeOfstedDistance
Parkside Community SchoolCommunity SchoolGood0.55 KM
Walton Peak Flying High AcademyAcademy Sponsor Led0.66 KM
Spire Junior SchoolCommunity SchoolGood0.79 KM
Birdholme Children'S CentreChildren's Centre1.13 KM
St Mary'S Catholic PrimaryVoluntary Aided SchoolGood1.19 KM

Images

DJI_20240411144103_0140_D-Enhanced-NR-Edit-Edit.jp P1236936.jpg P1236956.jpg P1236921.jpg P1236886.jpg DJI_20240411144307_0147_D-Enhanced-NR-Edit.jpg P1236828.jpg P1236833-Edit.jpg P1236793.jpg P1236808.jpg P1236773.jpg P1236891.jpg P1247073-HDR-Edit.jpg P1236906.jpg P1236901.jpg P1236788.jpg P1236783.jpg P1236823.jpg P1236916.jpg P1247048-HDR-Edit.jpg P1247065-HDR-Edit.jpg P1236911.jpg P1236866.jpg P1236871.jpg P1247060-HDR-Edit.jpg P1247055-HDR-Edit.jpg P1247043-HDR-Edit.jpg P1247033-HDR-Edit.jpg P1247016-HDR-Edit-Edit.jpg P1236986-HDR-Edit.jpg DJI_20240411144135_0142_D-Enhanced-NR-Edit.jpg P1236981-HDR-Edit.jpg P1236926.jpg P1236941.jpg P1236946.jpg P1236763.jpg P1247011-HDR-Edit.jpg P1247001-HDR-Edit.jpg P1236991-HDR-Edit.jpg P1236971-HDR-Edit.jpg DJI_20240411144215_0144_D-Enhanced-NR-Edit.jpg P1236778.jpg P1236911.jpg

Nearby Streets

NameAverage PriceAverage SqftDistance
Sitwell Avenue £ 000.00 KM
New Street £ 180,00000.00 KM
Melling Court £ 45,00000.00 KM
New Square £ 000.00 KM
Rose Hill £ 000.00 KM

Nearby Transport

NameNLCTLCDistance
Chesterfield6615CHD1.81 KM
Dronfield6616DRO8.88 KM

Nearby Listings

AddressPriceTypeScoreDistance
Summerfield Road, Chesterfield £ 325,000BUY6 / 100.00 KM
Summerfield Road, Chesterfield £ 235,000BUY6 / 100.06 KM
Summerfield Road, Chesterfield £ 270,000BUY6 / 100.14 KM
Park Road, Chesterfield, Derbyshire, S40 £ 230,000BUY7 / 100.17 KM
Park Road, CHESTERFIELD, Derbyshire, S40 £ 220,000BUY7 / 100.17 KM

Nearby Properties

AddressPriceDistance
1 Summerfield Road £ 167,0000.06 KM
25 Summerfield Road £ 309,0000.06 KM
14 Summerfield Road £ 139,9500.06 KM
12 Summerfield Road £ 132,5000.06 KM
30 Summerfield Road £ 143,0000.06 KM