Corondale Road, Milton - ROOMY EXTENDED SEMI
By Ashley Leahy Estate Agents
£ 289,950
Reviews
3 out of 5 stars
Ashley Leahy Estate Agents says ..
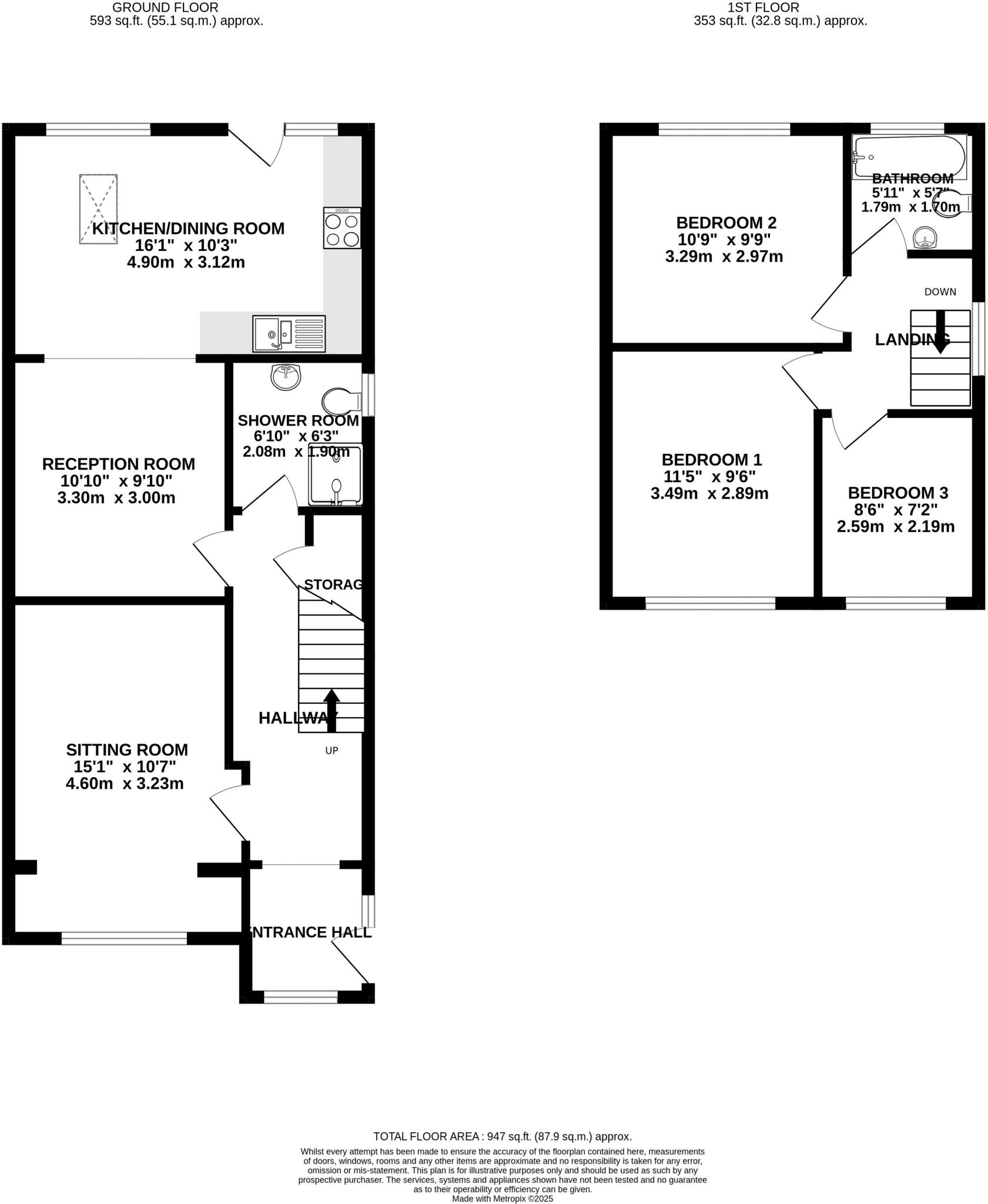
A particularly roomy semi detached house, having been extended to the ground floor & located in this hugely popular area. Corondale Road is always popular with buyers as it is located midway between the motorway and beach, affording very easy access to local shops and the train station, all ...
Property Oracle says ..
This property is a semi-detached house located in Weston-Super-Mare, Somerset. It features 3 bedrooms and 2 bathrooms and has been extended.
Therefore, we give this property 7 / 10. *Disclaimer: This is our option and does constitute a recommendation or financial advice. Do your own research. *
- Price
- 9
- Condition
- 6
- Location
- 8
- Land
- 7
- Bedrooms
- 3
- Bathrooms
- 2
- Sqft (est)
- 2,397.23
The heatmap indicates the level of crime in the area. The color of the heatmap indicates the crime severity and recency.
Metrics Year-on-Year
- Average area value
- 881,250.00 £Increased by 10.74 %
- Est sale value
- 1,654,088.70 £Increased by 54.71 %
- Average area rental value
- 1,300.00 £/moDecreased by 43.36 %
- Est letting value
- 2,397.23 £/moUnchanged by 0.00 %
- Est rental Yield
- 1.77 %Decreased by 48.84 %
- Crime Rate
- 6.00 %Unchanged by 0.00 %
Agent Activity
Ashley Leahy Estate Agents marked this listing as sold.
Ashley Leahy Estate Agents created the listing.
Nearby Schools
| Name | Type | Ofsted | Distance |
|---|---|---|---|
| Mead Vale Community Primary School | Academy Sponsor Led | 0.98 KM | |
| Winterstoke Hundred Academy | Free Schools | 1.04 KM | |
| St Martin'S Church Of England Primary School | Academy Converter | 1.06 KM | |
| Milton Park Primary School | Academy Converter | 1.13 KM | |
| Worle Community School | Academy Sponsor Led | Requires improvement | 1.27 KM |
Images
Nearby Streets
| Name | Average Price | Average Sqft | Distance |
|---|---|---|---|
| Clover Court | £ 0 | 0 | 0.00 KM |
| A370 | £ 184,950 | 0 | 0.00 KM |
| Baytree View | £ 0 | 0 | 0.00 KM |
| Magnolia Close | £ 240,000 | 0 | 0.00 KM |
| Linnet Close | £ 250,000 | 0 | 0.00 KM |
Nearby Transport
| Name | NLC | TLC | Distance |
|---|---|---|---|
| Weston Milton | 3388 | WNM | 0.37 KM |
| Worle | 3390 | WOR | 3.40 KM |
| Weston-Super-Mare | 3391 | WSM | 3.64 KM |
Nearby Listings
| Address | Price | Type | Score | Distance |
|---|---|---|---|---|
| Corondale Road, Milton - ROOMY EXTENDED SEMI | £ 289,950 | BUY | 7 / 10 | 0.00 KM |
| Corondale Road, Weston-super-Mare, Somerset, BS22 | £ 330,000 | BUY | 7 / 10 | 0.00 KM |
| Corondale Road, BS22 | £ 275,000 | BUY | 6 / 10 | 0.00 KM |
| Farndale Road, BS22 | £ 285,000 | BUY | 6 / 10 | 0.09 KM |
| Eskdale Close, Weston-Super-Mare, BS22 | £ 380,000 | BUY | 8 / 10 | 0.10 KM |
Nearby Properties
| Address | Price | Distance |
|---|---|---|
| 105 Corondale Road | £ 260,000 | 0.00 KM |
| 62 Corondale Road | £ 193,500 | 0.01 KM |
| 101 Corondale Road | £ 355,000 | 0.01 KM |
| 93 Corondale Road | £ 210,000 | 0.01 KM |
| 70 Corondale Road | £ 142,000 | 0.01 KM |