Neptune House, Olympian Court
By Churchills Estate Agents
£ 265,000
Reviews
4 out of 5 stars
Churchills Estate Agents says ..
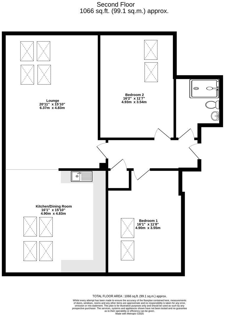
SUPERB LARGER THAN AVERAGE TOP FLOOR APARTMENT BOASTING OVER 1,000 SQ FT AND READY TO VIEW! Churchills are delighted to offer for sale this impressive 3rd floor apartment located in this central and convenient location of Olympian Court, just off Lawrence Street and close to York University, the ...
Property Oracle says ..
The property is a two-bedroom house located in the Guildhall area of York. While the exact square footage is unavailable, the average price per square foot in the area is £436. Nearby properties range significantly in price, from £53,000 to £265,000, suggesting a diverse housing market in the immediate vicinity. The average house price in the area is considerably higher at £459,234, indicating that this property may be more affordable than the average. However, without knowing the square footage of the subject property, a definitive price comparison is not possible. The proximity to York train station (3.56km) offers convenient access to transport links. Several schools are within a reasonable distance, including St Lawrence’s Church of England Primary Academy (0.56km) and Tang Hall Primary Academy (0.89km). The images reveal a modern, well-maintained interior with a contemporary kitchen and bathroom. The property appears to be in excellent condition, with no visible signs of disrepair or needing renovation. There is no evidence of a garden or outdoor space from the images provided.
Therefore, we give this property 8 / 10. *Disclaimer: This is our option and does constitute a recommendation or financial advice. Do your own research. *
- Price
- 8
- Condition
- 10
- Location
- 7
- Land
- 0
- Bedrooms
- 2
- Bathrooms
- 1
- Sqft (est)
- 944.78
- Lot (est)
- 1,066.00
The heatmap indicates the level of crime in the area. The color of the heatmap indicates the crime severity and recency.
Metrics Year-on-Year
- Average area value
- 366,047.00 £Decreased by 11.45 %
- Est sale value
- 425,151.00 £Increased by 3.21 %
- Average area rental value
- 1,355.00 £/moDecreased by 4.24 %
- Est letting value
- 944.78 £/moUnchanged by 0.00 %
- Est rental Yield
- 4.44 %Increased by 8.03 %
- Crime Rate
- 6.00 %Unchanged by 0.00 %
Agent Activity
Churchills Estate Agents created the listing.
Nearby Schools
| Name | Type | Ofsted | Distance |
|---|---|---|---|
| St Lawrence'S Children'S Centre | Children's Centre | 0.56 KM | |
| St Lawrence'S Church Of England Primary Academy | Academy Sponsor Led | Requires improvement | 0.56 KM |
| The Avenues Children'S Centre | Children's Centre | 0.85 KM | |
| Tang Hall Primary Academy | Academy Converter | Good | 0.89 KM |
| University Of York | Higher Education Institutions | 1.14 KM |
Images
Nearby Streets
| Name | Average Price | Average Sqft | Distance |
|---|---|---|---|
| St Nicholas Place | £ 0 | 0 | 0.00 KM |
| Thomas Street | £ 260,000 | 0 | 0.00 KM |
| James Street | £ 0 | 0 | 0.00 KM |
| Lawrence Lane | £ 0 | 0 | 0.00 KM |
| Rockingham Avenue | £ 0 | 0 | 0.00 KM |
Nearby Transport
| Name | NLC | TLC | Distance |
|---|---|---|---|
| York | 8263 | YRK | 3.56 KM |
| Poppleton | 8254 | POP | 9.94 KM |
Nearby Listings
| Address | Price | Type | Score | Distance |
|---|---|---|---|---|
| Neptune House, Olympian Court | £ 265,000 | BUY | 8 / 10 | 0.00 KM |
| Neptune House, Olympian Court, York | £ 200,000 | BUY | 5 / 10 | 0.00 KM |
| Neptune House | £ 210,000 | BUY | 5 / 10 | 0.00 KM |
| Minerve House, Olympian Court, York | £ 230,000 | BUY | 6 / 10 | 0.01 KM |
| Olympian Court, York | £ 250,000 | BUY | 5 / 10 | 0.04 KM |
Nearby Properties
| Address | Price | Distance |
|---|---|---|
| 18 Abbotsford Road | £ 125,000 | 0.09 KM |
| 27 Abbotsford Road | £ 53,000 | 0.09 KM |
| 26 Abbotsford Road | £ 130,000 | 0.09 KM |
| 34 Abbotsford Road | £ 222,000 | 0.09 KM |
| 31 Abbotsford Road | £ 169,950 | 0.09 KM |