Corum says ..
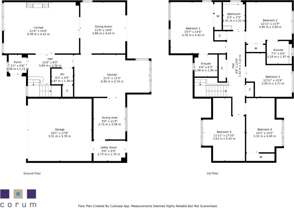
Fantastic five bedroom detached villa by Miller Homes, occupying an extremely attractive position within the St. Andrews Brae development and benefitting from generous driveway parking and an extremely useful, large garage.
Property Oracle says ..
This is a five-bedroom, four-bathroom detached house located in the desirable Bearsden suburb of Glasgow. The property boasts a contemporary design and appears to be well-maintained, as evidenced by the high-quality photographs. The interior is modern and bright, with a spacious open-plan living and dining area that flows seamlessly into a modern kitchen. A significant advantage is the inclusion of a garden, which is frequently sought after by buyers. The proximity to several ScotRail stations allows for easy commuting to Glasgow and beyond. Although precise distances to schools and local shops are not clearly detailed, Bearsden’s reputation as an affluent suburb with strong schools and amenities suggests that these services are likely within a reasonable commuting distance. The lack of available comparable properties in the immediate vicinity however, makes definitive comparison challenging and should be taken into account by potential buyers. The property presents well in terms of condition and location, making it an attractive offering, although further independent research into local comparables is recommended before making a final purchasing decision. The list price should be viewed as reasonable within the context of the Bearsden property market, but further investigation is suggested to confirm optimal value.
Therefore, we give this property 7 / 10. *Disclaimer: This is our option and does constitute a recommendation or financial advice. Do your own research. *
- Price
- 7
- Condition
- 8
- Location
- 7
- Land
- 6
- Bedrooms
- 5
- Bathrooms
- 4
- Sqft (est)
- 1,900.26
The heatmap indicates the level of crime in the area. The color of the heatmap indicates the crime severity and recency.
Metrics Year-on-Year
- Average area value
- 512,500.00 £Increased by 58.76 %
- Est sale value
- 1,301,678.10 £Increased by 135.40 %
- Average area rental value
- 1,100.00 £/moDecreased by 47.62 %
- Est letting value
- 1,900.26 £/moUnchanged by 0.00 %
- Est rental Yield
- 2.58 %Decreased by 66.97 %
- Crime Rate
- 0.00 %
Agent Activity
Corum created the listing.
Images
Nearby Streets
| Name | Average Price | Average Sqft | Distance |
|---|---|---|---|
| Morgan Wynd | £ 558,333 | 0 | 0.00 KM |
| St Andrews Drive | £ 345,000 | 0 | 0.00 KM |
| Peter's Gate | £ 0 | 0 | 0.00 KM |
| Stockiemuir Road | £ 0 | 0 | 0.00 KM |
| St Andrew's Way | £ 260,000 | 0 | 0.00 KM |
Nearby Transport
| Name | NLC | TLC | Distance |
|---|---|---|---|
| Bearsden | 9966 | BRN | 1.80 KM |
| Hillfoot | 9983 | HLF | 2.67 KM |
| Westerton | 9998 | WES | 2.88 KM |
| Milngavie | 9985 | MLN | 3.35 KM |
| Drumchapel | 9994 | DMC | 3.55 KM |
Nearby Listings
| Address | Price | Type | Score | Distance |
|---|---|---|---|---|
| 9 Morgan Wynd, Bearsden, G61 3RX | £ 540,000 | BUY | 7 / 10 | 0.00 KM |
| St. Andrews Drive, Bearsden, G61 | £ 340,000 | BUY | Unknown | 0.12 KM |
| St. Andrews Drive, Bearsden, G61 | £ 340,000 | BUY | Unknown | 0.12 KM |
| 6 Morgan Wynd, Bearsden, G61 3RX | £ 495,000 | BUY | 8 / 10 | 0.16 KM |
| Burncrooks Avenue, Bearsden | £ 298,000 | BUY | 7 / 10 | 0.21 KM |