Eckford Park, Wem.
Halls Estate Agents logo

Eckford Park, Wem.

By Halls Estate Agents

£ 217,500

Reviews

3 out of 5 stars

Halls Estate Agents says ..

A well designed two-bedroom semi-detached bungalow offering excellent potential for modernisation and improvement, whilst benefitting from easy care gardens, driveway parking, and a detached single garage, conveniently situated within a popular development close to the heart of Wem.

Property Oracle says ..

This is a two-bedroom semi-detached bungalow in Eckford Park, Wem, Shropshire. The property is in need of renovation, but it is located in a good location and has a garden and a garage. The property is listed for £217,500, which is below the average price for the area. The property is located close to local schools and transport links.

Therefore, we give this property 6 / 10. *Disclaimer: This is our option and does constitute a recommendation or financial advice. Do your own research. *

Price
7
Condition
4
Location
7
Land
6
Bedrooms
2
Bathrooms
1
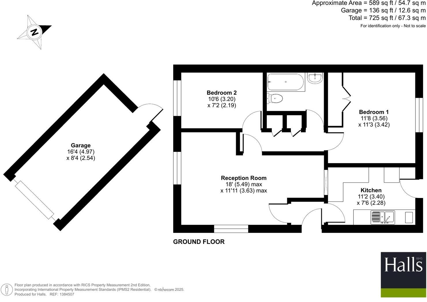
Sqft (est)
725.00

The heatmap indicates the level of crime in the area. The color of the heatmap indicates the crime severity and recency.

Metrics Year-on-Year

Average area value
338,325.00 £
Increased by 5.64 %
from 320,255.00 £
Est sale value
340,025.00 £
Increased by 76.98 %
from 192,125.00 £
Average area rental value
738.00 £/mo
Increased by 28.57 %
from 574.00 £/mo
Est letting value
725.00 £/mo
from 0.00 £/mo
Est rental Yield
2.62 %
Increased by 21.86 %
from 2.15 %
Crime Rate
2.00 %
Unchanged by 0.00 %
from 2.00 %

Agent Activity

  • Halls Estate Agents created the listing.

Nearby Schools

NameTypeOfstedDistance
The Thomas Adams SchoolAcademy Converter0.98 KM
St Peter'S Cofe Primary SchoolAcademy Converter1.02 KM
Wem Children'S Centre Delivery PointChildren's Centre Linked Site1.09 KM
Woodlands SchoolAcademy Special Sponsor Led1.61 KM
Access SchoolOther Independent Special SchoolRequires improvement4.08 KM

Images

1384507-1-692439969a292-1.jpg 1384507-10-69243defbb344.jpg 1384507-7-69243dcd2420b.jpg 1384507-14-69243e0a35400.jpg 1384507-4-69243badaeff0.jpg 1384507-13-69243e030073b.jpg 1384507-1-692439e8e8a6b.jpg 1384507-2-69243a4af0093.jpg 1384507-11-69243df5cb6ca.jpg 1384507-6-69243dbb95363.jpg 1384507-3-69243b74329ee.jpg

Nearby Streets

NameAverage PriceAverage SqftDistance
Garbett Close £ 325,00000.00 KM
Crown Street £ 000.00 KM
Rosemarie Court £ 000.00 KM
Maypole Court £ 000.00 KM
Bankhouse Lane £ 000.00 KM

Nearby Transport

NameNLCTLCDistance
Wem1347WEM1.09 KM
Yorton1351YRT4.80 KM
Prees1346PRS6.72 KM

Nearby Listings

AddressPriceTypeScoreDistance
Eckford Park, Wem. £ 217,500BUY6 / 100.00 KM
Eckford Park, Wem, Shrewsbury, Shropshire £ 250,000BUY7 / 100.01 KM
Eckford Park, Wem, Shrewsbury £ 115,000BUY5 / 100.05 KM
Mill Street, Wem, Shrewsbury, Shropshire £ 425,000BUY6 / 100.14 KM
Eckford Park, Wem, Shrewsbury, Shropshire £ 140,000BUY6 / 100.14 KM

Nearby Properties

AddressPriceDistance
87 Eckford Park £ 36,0000.10 KM
89 Eckford Park £ 112,5000.10 KM
110 Eckford Park £ 140,0000.10 KM
5 Eckford Park £ 200,0000.10 KM
98 Eckford Park £ 188,0000.10 KM