Mount Beacon, Bath, BA1
By Crisp Cowley (Bath) Ltd
£ 2,750,000
Reviews
3 out of 5 stars
Crisp Cowley (Bath) Ltd says ..
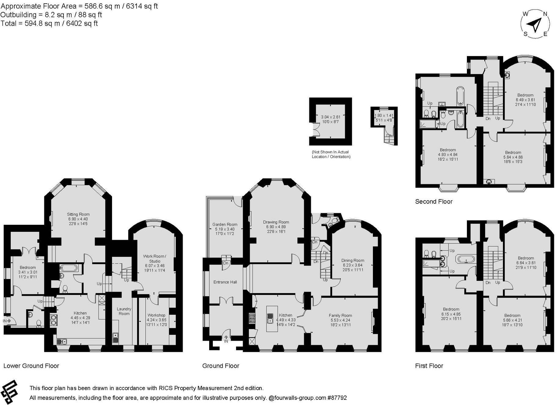
A grand Grade II listed end terrace house, built circa 1796 and providing in excess of 6,300 sq. ft. of accommodation
Property Oracle says ..
This is a substantial end-of-terrace property located in the Lansdown area of Bath. It features six bedrooms and four bathrooms, making it suitable for a large family. The property retains many period features, including fireplaces and large windows. While generally in good condition, some areas may benefit from updating. The property includes a garden. The asking price is high compared to the average price per square foot in the area.
Therefore, we give this property 7 / 10. *Disclaimer: This is our option and does constitute a recommendation or financial advice. Do your own research. *
- Price
- 6
- Condition
- 7
- Location
- 8
- Land
- 7
- Bedrooms
- 6
- Bathrooms
- 4
- Sqft (est)
- 3,772.70
The heatmap indicates the level of crime in the area. The color of the heatmap indicates the crime severity and recency.
Metrics Year-on-Year
- Average area value
- 411,214.00 £Decreased by 39.25 %
- Est sale value
- 1,825,986.80 £Decreased by 21.81 %
- Average area rental value
- 1,876.00 £/moIncreased by 11.40 %
- Est letting value
- 7,545.40 £/moIncreased by 100.00 %
- Est rental Yield
- 5.47 %Increased by 82.94 %
- Crime Rate
- 1.00 %Unchanged by 0.00 %
Agent Activity
Crisp Cowley (Bath) Ltd created the listing.
Nearby Schools
| Name | Type | Ofsted | Distance |
|---|---|---|---|
| St Stephens Church School | Academy Converter | 0.19 KM | |
| Royal High School Gdst | Other Independent School | 0.69 KM | |
| St Andrew'S Church School | Academy Converter | 0.96 KM | |
| Bath Academy | Other Independent School | 1.15 KM | |
| St Mark'S Cofe School | Academy Converter | 1.18 KM |
Images
Nearby Streets
| Name | Average Price | Average Sqft | Distance |
|---|---|---|---|
| Richmond Close | £ 0 | 0 | 0.00 KM |
| Mount Road | £ 0 | 0 | 0.00 KM |
| Margaret's Hill | £ 350,000 | 0 | 0.00 KM |
| Upper Hedgemead Road | £ 570,000 | 0 | 0.00 KM |
| Northfields | £ 0 | 0 | 0.00 KM |
Nearby Transport
| Name | NLC | TLC | Distance |
|---|---|---|---|
| Bath Spa | 3271 | BTH | 1.82 KM |
| Oldfield Park | 3219 | OLF | 2.77 KM |
| Freshford | 3344 | FFD | 8.71 KM |
Nearby Listings
| Address | Price | Type | Score | Distance |
|---|---|---|---|---|
| Mount Beacon, Bath, BA1 | £ 2,750,000 | BUY | 7 / 10 | 0.00 KM |
| Richmond Hill, Bath, Somerset, BA1 | £ 5,000,000 | BUY | 8 / 10 | 0.10 KM |
| Richmond Place, Bath | £ 560,000 | BUY | Unknown | 0.16 KM |
| Upper Camden Place, Bath, Somerset, BA1 | £ 1,250,000 | BUY | Unknown | 0.17 KM |
| Richmond Place, Bath, BA1 | £ 1,000,000 | BUY | 7 / 10 | 0.21 KM |
Nearby Properties
| Address | Price | Distance |
|---|---|---|
| 8 Mount Beacon | £ 604,000 | 0.01 KM |
| 6 Mount View | £ 743,500 | 0.10 KM |
| 2 Mount View | £ 107,000 | 0.10 KM |
| Birch House | £ 1,350,000 | 0.11 KM |
| Mountview House | £ 775,000 | 0.11 KM |