Hunters says ..
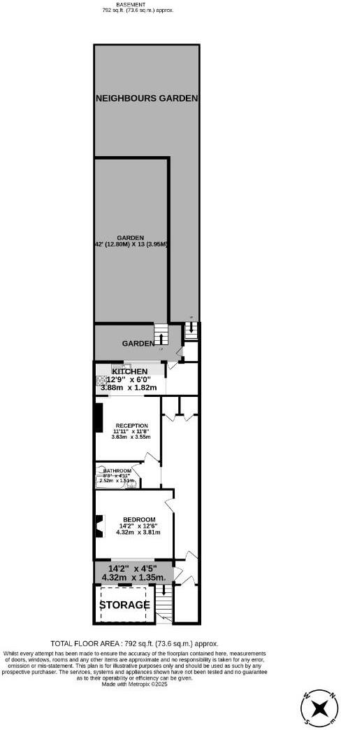
Available chain free, this spacious one bedroom period conversion with a private garden is set within an attractive period terrace on Mildmay Grove South, N1. Occupying the lower ground floor, the property offers well-proportioned accommodation extending to over 790 sq. ft (approximately...
Property Oracle says ..
This is a one-bedroom flat located in Mildmay Grove South, Islington, London. The property offers 1,058.90 sqft of living space and includes a garden. The flat appears to be in reasonable condition, with a modern bathroom and kitchen. The location is good, with access to local amenities, transportation, and schools. The asking price of £600,000 seems reasonable given the size, location, and condition of the property. The flat benefits from a garden, which is a desirable feature. Overall, this property presents a good opportunity for buyers looking for a well-located flat with outdoor space.
Therefore, we give this property 6 / 10. *Disclaimer: This is our option and does constitute a recommendation or financial advice. Do your own research. *
- Price
- 7
- Condition
- 7
- Location
- 7
- Land
- 6
- Bedrooms
- 1
- Bathrooms
- 1
- Sqft (est)
- 1,058.90
The heatmap indicates the level of crime in the area. The color of the heatmap indicates the crime severity and recency.
Metrics Year-on-Year
- Average area value
- 788,995.00 £Decreased by 7.48 %
- Est sale value
- 972,070.20 £Increased by 7.37 %
- Average area rental value
- 3,100.00 £/moIncreased by 13.06 %
- Est letting value
- 3,176.70 £/moIncreased by 50.00 %
- Est rental Yield
- 4.71 %Increased by 22.02 %
- Crime Rate
- 4.00 %Unchanged by 0.00 %
Agent Activity
Hunters created the listing.
Nearby Schools
| Name | Type | Ofsted | Distance |
|---|---|---|---|
| St Paul'S Steiner School | Other Independent School | Good | 0.33 KM |
| Newington Green Primary School | Community School | Good | 0.41 KM |
| The Factory Children'S Centre | Children's Centre | 0.44 KM | |
| New River Green Children'S Centre | Children's Centre | 0.60 KM | |
| The Children'S House Upper School | Other Independent School | 0.65 KM |
Images
Nearby Streets
| Name | Average Price | Average Sqft | Distance |
|---|---|---|---|
| Ball's Pond Place | £ 425,000 | 0 | 0.00 KM |
| Floral Place | £ 0 | 0 | 0.00 KM |
| Thorndike Road | £ 0 | 0 | 0.00 KM |
| Rona Walk | £ 490,000 | 0 | 0.00 KM |
| Nightingale Road | £ 487,500 | 0 | 0.00 KM |
Nearby Transport
| Name | NLC | TLC | Distance |
|---|---|---|---|
| Canonbury | 1441 | CNN | 0.69 KM |
| Dalston Kingsland | 1429 | DLK | 1.14 KM |
| Dalston Junction | 1443 | DLJ | 1.23 KM |
| Essex Road | 6004 | EXR | 1.45 KM |
| Haggerston | 1022 | HGG | 1.59 KM |
Nearby Listings
| Address | Price | Type | Score | Distance |
|---|---|---|---|---|
| Mildmay Grove South, London, N1 | £ 600,000 | BUY | 6 / 10 | 0.00 KM |
| Mildmay Grove South, Islington, London, N1 | £ 550,000 | BUY | 6 / 10 | 0.03 KM |
| Mildmay Grove South, London, N1 | £ 1,250,000 | BUY | 8 / 10 | 0.03 KM |
| Mildmay Grove South, Canonbury, London, N1 | £ 550,000 | BUY | 6 / 10 | 0.03 KM |
| Mildmay Grove South, London, N1 | £ 425,000 | BUY | Unknown | 0.03 KM |
Nearby Properties
| Address | Price | Distance |
|---|---|---|
| 18a Mildmay Grove South | £ 448,656 | 0.03 KM |
| 22 Mildmay Grove South | £ 677,500 | 0.03 KM |
| 10 Mildmay Grove South | £ 550,000 | 0.03 KM |
| 32d Mildmay Grove South | £ 405,000 | 0.03 KM |
| 32c Mildmay Grove South | £ 195,000 | 0.03 KM |