Falcon House, King Street, Castle Hedingham, Essex CO9 3ER
By eXp UK
£ 500,000
Reviews
2 out of 5 stars
eXp UK says ..
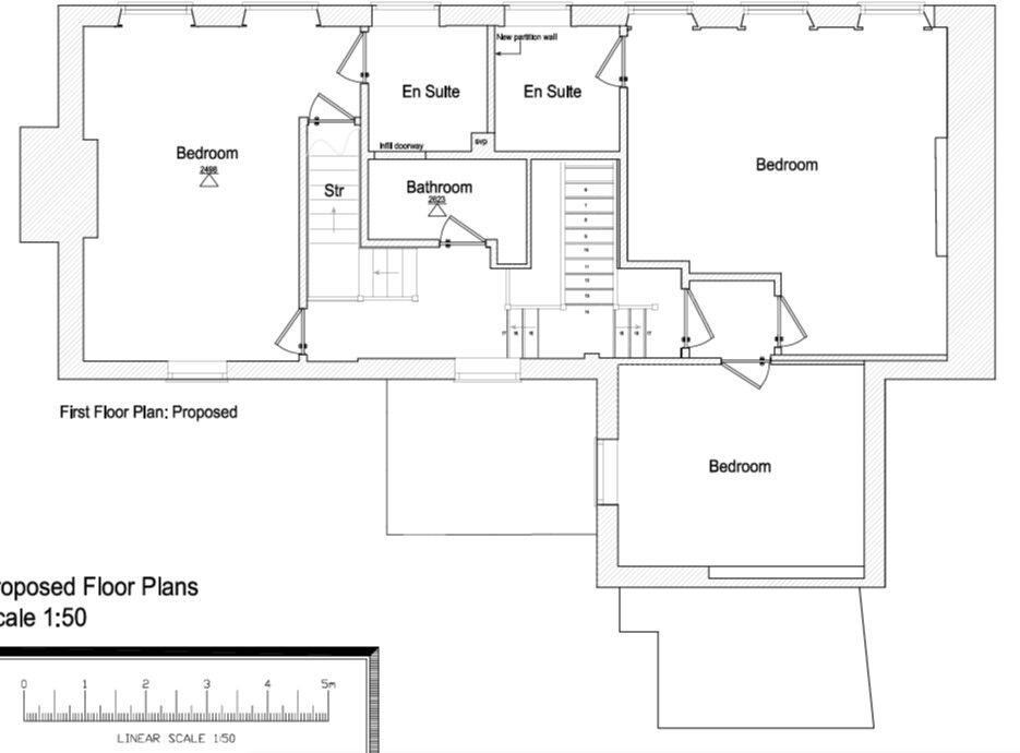
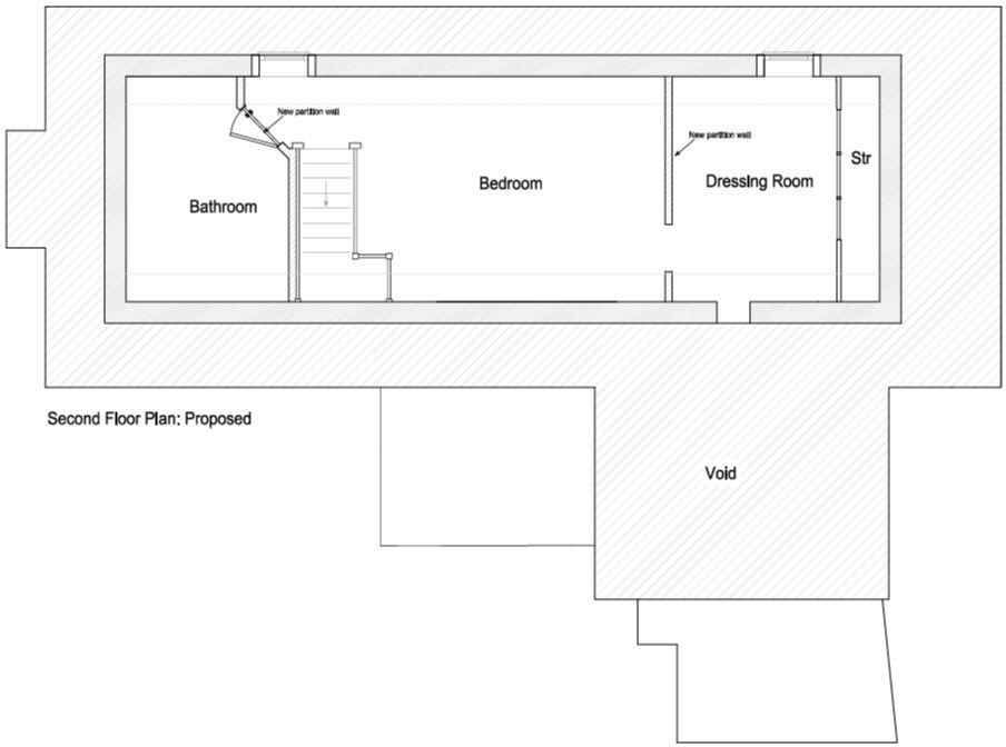
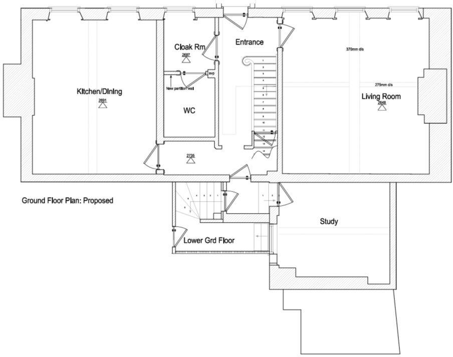
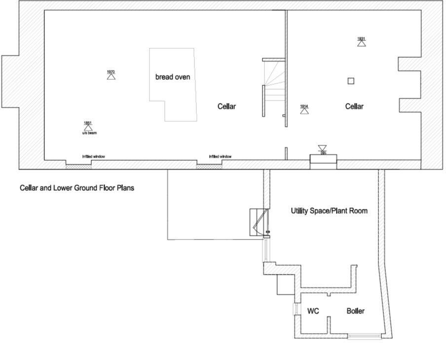
Quote Ref: DP0213 when requesting further details of the amazing opportunity to purchase this stunning Grade II listed property set in the heart of Castle Hedingham. The property has many 17th century character features to include ornate cornicing, many sash windows and marble fire surrounds a...
Property Oracle says ..
The property is a large period property in need of renovation. It is located in Castle Hedingham, Essex, close to several schools but lacks a garden. The asking price seems high given the required work and lack of outdoor space.
Therefore, we give this property 4 / 10. *Disclaimer: This is our option and does constitute a recommendation or financial advice. Do your own research. *
- Price
- 4
- Condition
- 4
- Location
- 7
- Land
- 1
- Bedrooms
- 4
- Bathrooms
- 2
- Sqft (est)
- 7,681.00
The heatmap indicates the level of crime in the area. The color of the heatmap indicates the crime severity and recency.
Metrics Year-on-Year
- Average area value
- 460,714.00 £Increased by 12.75 %
- Est sale value
- 3,901,948.00 £Increased by 63.34 %
- Average area rental value
- 995.00 £/moDecreased by 41.47 %
- Est letting value
- 7,681.00 £/moUnchanged by 0.00 %
- Est rental Yield
- 2.59 %Decreased by 48.10 %
- Crime Rate
- 33.00 %Unchanged by 0.00 %
Agent Activity
eXp UK created the listing.
Nearby Schools
| Name | Type | Ofsted | Distance |
|---|---|---|---|
| De Vere Primary School | Academy Sponsor Led | 0.70 KM | |
| Hedingham School And Sixth Form | Academy Converter | Good | 1.17 KM |
| Teaseldown School | Other Independent Special School | Good | 1.39 KM |
| The Yellow House School | Other Independent Special School | Good | 1.82 KM |
| St Peter'S Church Of England Voluntary Controlled Primary School, Sible Hedingham | Voluntary Controlled School | Good | 2.33 KM |
Images
Nearby Streets
| Name | Average Price | Average Sqft | Distance |
|---|---|---|---|
| Crown Street | £ 0 | 0 | 0.00 KM |
| Hosden's Lane | £ 0 | 0 | 0.00 KM |
Nearby Listings
| Address | Price | Type | Score | Distance |
|---|---|---|---|---|
| Falcon House, King Street, Castle Hedingham, Essex CO9 3ER | £ 500,000 | BUY | 4 / 10 | 0.00 KM |
| King Street, Castle Hedingham, Essex | £ 1,200,000 | BUY | Unknown | 0.03 KM |
| St. James Street, Castle Hedingham, Essex | £ 475,000 | BUY | Unknown | 0.05 KM |
| Queen Street, Castle Hedingham, Essex | £ 425,000 | BUY | 6 / 10 | 0.05 KM |
| Queen Street, Castle Hedingham, Essex, CO9 | £ 1,175,000 | BUY | 7 / 10 | 0.07 KM |
Nearby Properties
| Address | Price | Distance |
|---|---|---|
| 1 Falcon Square | £ 263,000 | 0.05 KM |
| 2 Falcon Square | £ 265,000 | 0.05 KM |
| 6 Queen Street | £ 249,000 | 0.05 KM |
| 1a Queen Street | £ 185,000 | 0.05 KM |
| 3 Queen Street | £ 121,000 | 0.05 KM |