Boroughbridge Road, Upper Poppleton, YO26 6BE
MI

Boroughbridge Road, Upper Poppleton, YO26 6BE

By Miller Homes Yorkshire

£ 584,995

Reviews

3 out of 5 stars

Miller Homes Yorkshire says ..

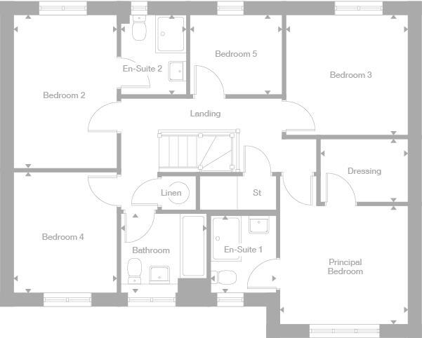
With features including FRENCH DOORS off the kitchen / diner / family room, a FEATURE BAY WINDOW in the lounge, a SEPARATE LAUNDRY ROOM, a DOWNSTAIRS WC, EN-SUITE TO TWO OF THE BEDROOMS, a DRESSING ROOM off the principal bedroom, an INTEGRAL GARAGE, a 10-YEAR NHBC WARRANTY included and the abilit...

Property Oracle says ..

Therefore, we give this property 7 / 10. *Disclaimer: This is our option and does constitute a recommendation or financial advice. Do your own research. *

Price
6
Condition
9
Location
8
Land
7
Bedrooms
5
Bathrooms
0
Sqft (est)
979.00

The heatmap indicates the level of crime in the area. The color of the heatmap indicates the crime severity and recency.

Metrics Year-on-Year

Average area value
571,732.00 £
Increased by 11.62 %
from 512,194.00 £
Est sale value
416,075.00 £
Decreased by 8.01 %
from 452,298.00 £
Average area rental value
1,116.00 £/mo
Decreased by 31.91 %
from 1,639.00 £/mo
Est letting value
0.00 £/mo
Decreased by 100.00 %
from 979.00 £/mo
Est rental Yield
2.34 %
Decreased by 39.06 %
from 3.84 %
Crime Rate
5.00 %
Unchanged by 0.00 %
from 5.00 %

Agent Activity

  • Miller Homes Yorkshire created the listing.

Nearby Schools

NameTypeOfstedDistance
Manor Church Of England AcademyAcademy Converter0.48 KM
Carr Infant SchoolCommunity SchoolGood1.03 KM
Carr Children'S CentreChildren's Centre1.21 KM
Carr Junior SchoolAcademy Converter1.21 KM
Poppleton Road Primary SchoolCommunity SchoolGood2.34 KM

Images

Representative image Representative image Representative image Representative image Representative image Representative image Representative image Representative image Representative image Representative image Representative image Representative image Representative image Representative image Representative image Representative image Representative image Representative image Representative image

Nearby Streets

NameAverage PriceAverage SqftDistance
Medley Road £ 000.00 KM
Carnoustie Close £ 000.00 KM
Woodlea Grove £ 000.00 KM
Ouse Acres £ 000.00 KM
Linton Road £ 000.00 KM

Nearby Transport

NameNLCTLCDistance
Poppleton8254POP1.61 KM
York8263YRK4.83 KM

Nearby Listings

AddressPriceTypeScoreDistance
Boroughbridge Road, Upper Poppleton, YO26 6BE £ 494,995BUYUnknown0.00 KM
Boroughbridge Road, Upper Poppleton, YO26 6BE £ 419,995BUY5 / 100.00 KM
Boroughbridge Road, Upper Poppleton, YO26 6BE £ 499,995BUYUnknown0.00 KM
Boroughbridge Road, Upper Poppleton, YO26 6BE £ 339,995BUY5 / 100.00 KM
Boroughbridge Road, Upper Poppleton, YO26 6BE £ 584,995BUY7 / 100.00 KM

Nearby Properties

AddressPriceDistance
3 Villa Court £ 260,0000.18 KM
1 Villa Court £ 425,0000.18 KM
9 Villa Court £ 248,0000.18 KM
15 Villa Court £ 100,0000.18 KM
13 Villa Court £ 83,0000.18 KM