SJD says ..
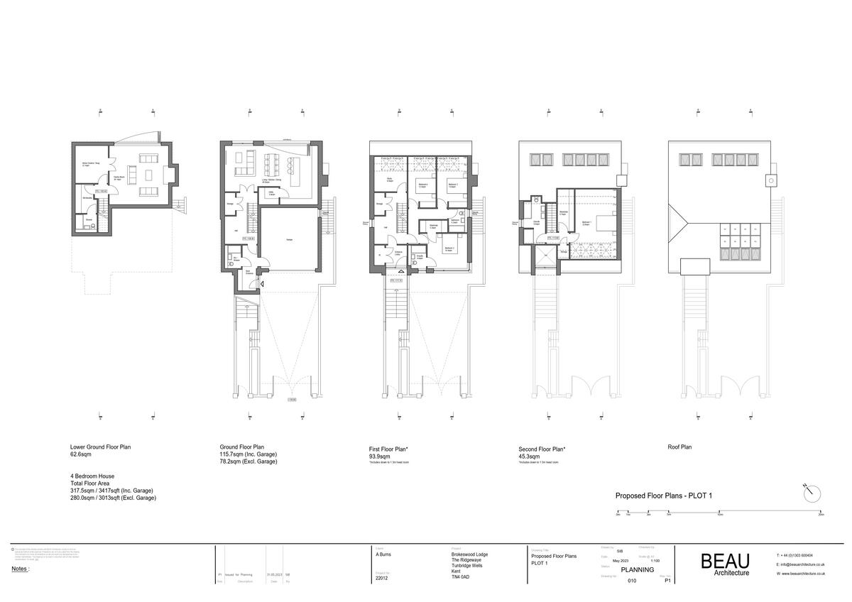
A site with planning permission granted for the erection of four dwellings together with associated drive and access alterations, following the demolition of the existing dwelling
Property Oracle says ..
The property is located on The Ridgewaye in Southborough, Kent. This area is known for its desirable residential properties and is generally considered a good location. The proximity to nearby schools, such as Two Bridges School (Outstanding Ofsted rating) and St Matthew’s High Brooms Church of England Voluntary Controlled Primary School (Good Ofsted rating), is a positive attribute for families. Transportation links are also relatively convenient, with High Brooms railway station being approximately 1.54 km away. However, a detailed analysis of the property’s condition and price requires more information. The provided architectural plans show a new build property, and therefore, the condition is assumed to be excellent. The land size is substantial, as indicated by the plans. The list price of £1,500,000 appears high compared to other properties in the area, especially considering the lack of information on the number of bedrooms and bathrooms. Further information on the property’s specifications and a comparison to similar recently sold properties in the area would be needed to provide a more comprehensive price analysis.
Therefore, we give this property 7 / 10. *Disclaimer: This is our option and does constitute a recommendation or financial advice. Do your own research. *
- Price
- 4
- Condition
- 10
- Location
- 8
- Land
- 8
- Bedrooms
- 0
- Bathrooms
- 0
- Sqft (est)
- 3,417.54
- Lot (est)
- 3,417.54
The heatmap indicates the level of crime in the area. The color of the heatmap indicates the crime severity and recency.
Metrics Year-on-Year
- Average area value
- 612,500.00 £Decreased by 8.85 %
- Est sale value
- 2,194,060.68 £Increased by 30.75 %
- Average area rental value
- 1,740.00 £/moDecreased by 4.45 %
- Est letting value
- 3,417.54 £/moUnchanged by 0.00 %
- Est rental Yield
- 3.41 %Increased by 4.92 %
- Crime Rate
- 1.00 %Unchanged by 0.00 %
Agent Activity
SJD created the listing.
Nearby Schools
| Name | Type | Ofsted | Distance |
|---|---|---|---|
| St Matthew'S High Brooms Church Of England Voluntary Controlled Primary School | Voluntary Controlled School | Good | 0.72 KM |
| Two Bridges School | Pupil Referral Unit | Outstanding | 0.81 KM |
| Tunbridge Wells Grammar School For Boys | Community School | Good | 0.84 KM |
| St Augustine'S Catholic Primary School | Academy Converter | Good | 0.90 KM |
| St John'S Church Of England Primary School | Voluntary Controlled School | Good | 0.93 KM |
Images
Nearby Streets
| Name | Average Price | Average Sqft | Distance |
|---|---|---|---|
| Bondfield Close | £ 0 | 0 | 0.00 KM |
| Argyle Road | £ 895,000 | 0 | 0.00 KM |
| The Fairways | £ 1,000,000 | 0 | 0.00 KM |
| Chestnut Close | £ 0 | 0 | 0.00 KM |
| Springfield Road | £ 475,000 | 0 | 0.00 KM |
Nearby Transport
| Name | NLC | TLC | Distance |
|---|---|---|---|
| High Brooms | 5235 | HIB | 1.54 KM |
| Tunbridge Wells | 5230 | TBW | 2.99 KM |
| Tonbridge | 5229 | TON | 3.88 KM |
| Frant | 5218 | FRT | 6.70 KM |
| Leigh (Kent) | 5294 | LIH | 7.35 KM |
Nearby Listings
| Address | Price | Type | Score | Distance |
|---|---|---|---|---|
| The Ridgewaye, Southborough, TN4 | £ 1,500,000 | BUY | 7 / 10 | 0.00 KM |
| The Ridgewaye, Southborough, Tunbridge Wells, TN4 0AD | £ 870,000 | BUY | 7 / 10 | 0.00 KM |
| The Springer, Southborough, Tunbridge Wells, Kent, TN4 0AD | £ 25,000 | BUY | 6 / 10 | 0.00 KM |
| The Ridgewaye, Southborough | £ 800,000 | BUY | 8 / 10 | 0.01 KM |
| The Ridgewaye, Southborough | £ 750,000 | BUY | 6 / 10 | 0.05 KM |
Nearby Properties
| Address | Price | Distance |
|---|---|---|
| 46a The Ridgewaye | £ 325,000 | 0.01 KM |
| 38 The Ridgewaye | £ 475,000 | 0.01 KM |
| 16 The Ridgewaye | £ 990,000 | 0.01 KM |
| 20 The Ridgewaye | £ 250,000 | 0.01 KM |
| 28a The Ridgewaye | £ 410,000 | 0.01 KM |