Gilbert Place, Lowry Way, SN3
By McFarlane Sales & Lettings
£ 195,000
Reviews
4 out of 5 stars
McFarlane Sales & Lettings says ..
Exclusively designed for the over 70s the apartments are ideal for people looking to maintain their independence in a home that you own. Care is provided by a qualified team, staff on-site 24/7 and facilities including a laundry, lounge, bistro, camera entry system and 24hr emergency call system.
Property Oracle says ..
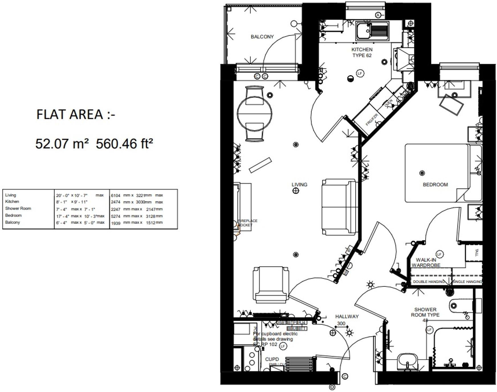
The property is a modern 1-bedroom apartment in a convenient location with good transport links and nearby schools. While the list price is significantly lower than the average for the area, the small size of the apartment and lack of private outdoor space should be considered. The communal garden is a positive feature.
Therefore, we give this property 8 / 10. *Disclaimer: This is our option and does constitute a recommendation or financial advice. Do your own research. *
- Price
- 8
- Condition
- 9
- Location
- 8
- Land
- 7
- Bedrooms
- 1
- Bathrooms
- 1
- Sqft (est)
- 560.00
- Lot (est)
- 560.46
The heatmap indicates the level of crime in the area. The color of the heatmap indicates the crime severity and recency.
Metrics Year-on-Year
- Average area value
- 364,023.00 £Increased by 8.60 %
- Est sale value
- 230,720.00 £Increased by 57.25 %
- Average area rental value
- 1,137.00 £/moDecreased by 2.15 %
- Est letting value
- 560.00 £/mo
- Est rental Yield
- 3.75 %Decreased by 9.86 %
- Crime Rate
- 11.00 %Unchanged by 0.00 %
Agent Activity
McFarlane Sales & Lettings created the listing.
Nearby Schools
| Name | Type | Ofsted | Distance |
|---|---|---|---|
| The Croft Primary School | Academy Sponsor Led | Outstanding | 0.70 KM |
| Lawn Primary | Community School | Good | 0.97 KM |
| Lethbridge Primary School | Academy Converter | Good | 1.27 KM |
| Lawn Manor Academy | Academy Converter | Requires improvement | 1.55 KM |
| King William Street Church Of England Primary School | Academy Converter | Good | 1.58 KM |
Images
Nearby Streets
| Name | Average Price | Average Sqft | Distance |
|---|---|---|---|
| Raglan Close | £ 500,000 | 0 | 0.00 KM |
| Collins Road | £ 250,000 | 0 | 0.00 KM |
| Ashlar Court | £ 191,667 | 0 | 0.00 KM |
| Mill Court | £ 302,500 | 0 | 0.00 KM |
| George Stevens Place | £ 0 | 0 | 0.00 KM |
Nearby Transport
| Name | NLC | TLC | Distance |
|---|---|---|---|
| Swindon (Wilts) | 3333 | SWI | 2.98 KM |
Nearby Listings
| Address | Price | Type | Score | Distance |
|---|---|---|---|---|
| Gilbert Place, Lowry Way, SN3 | £ 195,000 | BUY | 8 / 10 | 0.00 KM |
| Lowry Way, Old Town, Swindon, Wiltshire, SN3 | £ 225,000 | BUY | 6 / 10 | 0.00 KM |
| Gilbert Place, Lowry Way, SN3 | £ 130,000 | BUY | 8 / 10 | 0.00 KM |
| Lowry Way, Swindon, SN3 | £ 180,000 | BUY | 6 / 10 | 0.00 KM |
| Lowry Way, Swindon, SN3 | £ 198,750 | BUY | Unknown | 0.00 KM |
Nearby Properties
| Address | Price | Distance |
|---|---|---|
| 25 Gosse Court | £ 91,000 | 0.09 KM |
| 2 Gosse Court | £ 56,000 | 0.09 KM |
| 28 Gosse Court | £ 120,737 | 0.09 KM |
| 12 Gosse Court | £ 164,000 | 0.09 KM |
| 19 Gosse Court | £ 130,000 | 0.11 KM |