Sell My Group says ..
BRAND NEW Park Home Plots Available | Residential development | Exclusive for the over 50s | Fully furnished | Pet friendly | Countryside location | Village nearby | Community living | Part-exchange available
Property Oracle says ..
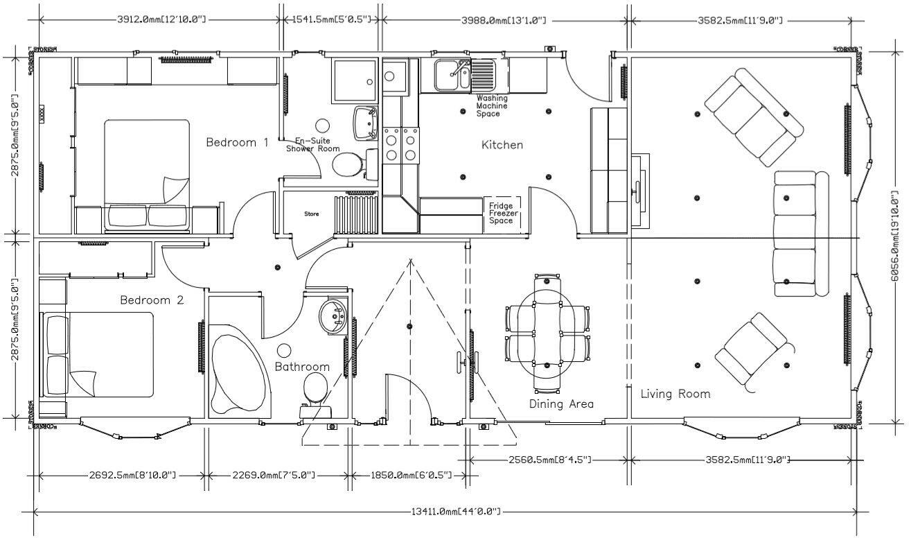
The property is a park home located in Horsham, West Sussex. Based on the provided images, the property appears to be in excellent condition, with modern fixtures and finishes. The property is situated within a well-maintained park, suggesting a good level of upkeep and community. The location is relatively close to several schools (Barns Green Primary School, Muntham House School, William Penn School, Shipley Cofe Primary School) and transportation options (Christs Hospital, Billingshurst, Horsham train stations). However, the lack of plot size information and the limited information on local pricing make it difficult to definitively assess the land and price aspects. The nearby property prices vary significantly, ranging from £77,000 to £1,200,000, indicating a wide range of property values in the area. More information is needed to accurately assess the value of this specific property.
Therefore, we give this property 6 / 10. *Disclaimer: This is our option and does constitute a recommendation or financial advice. Do your own research. *
- Price
- 6
- Condition
- 9
- Location
- 7
- Land
- 3
- Bedrooms
- 2
- Bathrooms
- 2
- Sqft (est)
- 20,728.50
The heatmap indicates the level of crime in the area. The color of the heatmap indicates the crime severity and recency.
Metrics Year-on-Year
- Average area value
- 511,071.00 £Increased by 4.04 %
- Est sale value
- 12,395,643.00 £Increased by 58.20 %
- Average area rental value
- 1,750.00 £/moIncreased by 11.96 %
- Est letting value
- 41,457.00 £/moIncreased by 100.00 %
- Est rental Yield
- 4.11 %Increased by 7.59 %
- Crime Rate
- 18.00 %Unchanged by 0.00 %
Agent Activity
Sell My Group created the listing.
Nearby Schools
| Name | Type | Ofsted | Distance |
|---|---|---|---|
| Barns Green Primary School | Community School | Good | 1.62 KM |
| Muntham House School | Non-maintained Special School | Good | 2.27 KM |
| William Penn School | Voluntary Controlled School | Good | 2.85 KM |
| Shipley Cofe Primary School | Voluntary Controlled School | Good | 3.92 KM |
| Christ'S Hospital | Other Independent School | 4.18 KM |
Images
Nearby Streets
| Name | Average Price | Average Sqft | Distance |
|---|---|---|---|
| Brooks Green Park | £ 0 | 0 | 0.00 KM |
| Woodland View | £ 0 | 0 | 0.00 KM |
| Salt Box Close | £ 475,000 | 0 | 0.00 KM |
Nearby Transport
| Name | NLC | TLC | Distance |
|---|---|---|---|
| Christs Hospital | 5319 | CHH | 4.81 KM |
| Billingshurst | 5464 | BIG | 6.54 KM |
| Horsham | 5309 | HRH | 9.63 KM |
Nearby Listings
| Address | Price | Type | Score | Distance |
|---|---|---|---|---|
| Emms Lane, Brooks Green, Horsham, West Sussex | £ 75,000 | BUY | 6 / 10 | 0.00 KM |
| Emms Lane, Brooks Green, Horsham, West Sussex | £ 270,000 | BUY | 5 / 10 | 0.00 KM |
| Emms Lane, Brooks Green, Horsham | £ 300,000 | BUY | 7 / 10 | 0.05 KM |
| Bluebell Park, Emms Lane, Brooks Green, Horsham, West Sussex | £ 199,000 | BUY | 6 / 10 | 0.09 KM |
| Emms Lane, Brooks Green, Horsham, West Sussex | £ 120,000 | BUY | Unknown | 0.09 KM |
Nearby Properties
| Address | Price | Distance |
|---|---|---|
| Oakhurst House | £ 1,260,000 | 0.10 KM |
| Dunnocks | £ 530,000 | 0.10 KM |
| Rust Oaks | £ 855,000 | 0.10 KM |
| Fairways | £ 735,000 | 0.10 KM |
| Field House | £ 1,080,000 | 0.10 KM |