Michel Dene Road, East Dean, BN20 0JZ
By Leaper Stanbrook
£ 530,000
Reviews
3 out of 5 stars
Leaper Stanbrook says ..
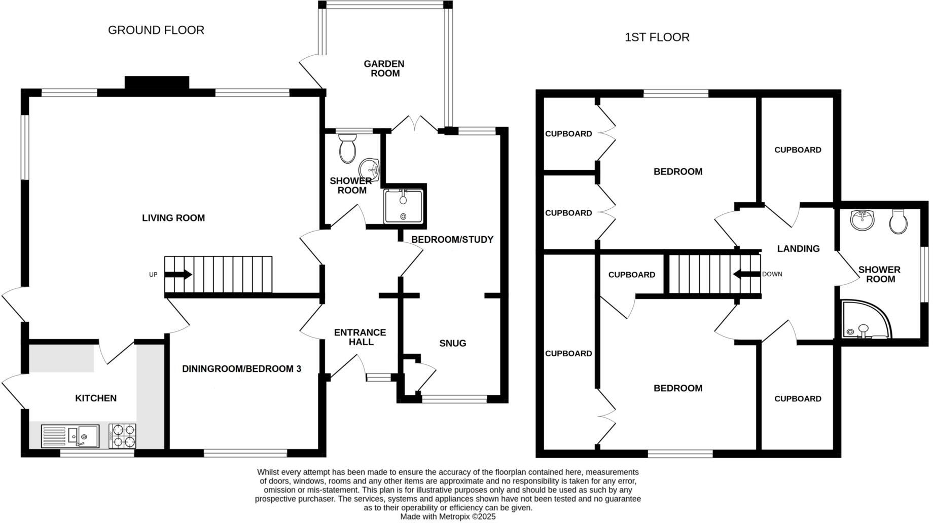
A well proportioned three/four bedroom detached chalet-style house taking advantage of its elevated position affording delightful views to Belle Tout lighthouse and the sea in the distance
Property Oracle says ..
This detached property in East Dean offers a blend of rural charm and potential. The location within the South Downs National Park is a major draw, providing scenic views and a tranquil lifestyle. However, its distance from major transportation hubs should be considered. The property itself, with 4 bedrooms and 2 bathrooms, offers ample living space, but it is in need of modernisation. The garden, while requiring some attention, adds to the appeal. Given the property’s condition and location, the asking price of £530,000 seems appropriately positioned, presenting an opportunity for buyers willing to invest in renovations to create a desirable home.
Therefore, we give this property 6 / 10. *Disclaimer: This is our option and does constitute a recommendation or financial advice. Do your own research. *
- Price
- 7
- Condition
- 5
- Location
- 7
- Land
- 7
- Bedrooms
- 4
- Bathrooms
- 2
- Sqft (est)
- 1,345.00
The heatmap indicates the level of crime in the area. The color of the heatmap indicates the crime severity and recency.
Metrics Year-on-Year
- Average area value
- 1,332,494.00 £Increased by 19.68 %
- Est sale value
- 1,877,620.00 £Increased by 164.90 %
- Average area rental value
- 1,800.00 £/moDecreased by 54.11 %
- Est letting value
- 1,345.00 £/moUnchanged by 0.00 %
- Est rental Yield
- 1.62 %Decreased by 61.70 %
- Crime Rate
- 29.00 %Unchanged by 0.00 %
Agent Activity
Leaper Stanbrook created the listing.
Nearby Schools
| Name | Type | Ofsted | Distance |
|---|---|---|---|
| Pashley Down Infant School | Community School | Good | 4.33 KM |
| The South Downs School | Academy Special Converter | Outstanding | 4.53 KM |
| Ocklynge Junior School | Academy Sponsor Led | 5.21 KM | |
| Motcombe Infants' School | Community School | Good | 5.45 KM |
| The Cavendish School | Academy Converter | Good | 5.50 KM |
Images
Nearby Streets
| Name | Average Price | Average Sqft | Distance |
|---|---|---|---|
| Dene Close | £ 650,000 | 0 | 0.00 KM |
| Warren Close | £ 0 | 0 | 0.00 KM |
| Upper Street | £ 0 | 0 | 0.00 KM |
Nearby Transport
| Name | NLC | TLC | Distance |
|---|---|---|---|
| Polegate | 5455 | PLG | 7.01 KM |
| Eastbourne | 5448 | EBN | 7.58 KM |
| Hampden Park (Sussex) | 5450 | HMD | 8.06 KM |
| Berwick (Sussex) | 5323 | BRK | 9.66 KM |
Nearby Listings
| Address | Price | Type | Score | Distance |
|---|---|---|---|---|
| Michel Dene Road, East Dean | £ 650,000 | BUY | 8 / 10 | 0.00 KM |
| Michel Dene Road, East Dean, BN20 0JZ | £ 530,000 | BUY | 6 / 10 | 0.00 KM |
| Michel Dene Road, East Dean | £ 700,000 | BUY | 7 / 10 | 0.15 KM |
| Peakdean Lane, Friston | £ 629,950 | BUY | 8 / 10 | 0.21 KM |
| Peakdean Lane, BN20 | £ 675,000 | BUY | 8 / 10 | 0.21 KM |
Nearby Properties
| Address | Price | Distance |
|---|---|---|
| 85 Michel Dene Road | £ 365,000 | 0.01 KM |
| 65 Michel Dene Road | £ 750,000 | 0.01 KM |
| 75 Michel Dene Road | £ 415,000 | 0.01 KM |
| 94 Michel Dene Road | £ 440,000 | 0.01 KM |
| 73 Michel Dene Road | £ 467,500 | 0.01 KM |