NE
Riverbank Laleham Road, Staines-upon-Thames, Surrey, TW18
By Nevin and Wells Residential
£ 250,000
Nevin and Wells Residential says ..
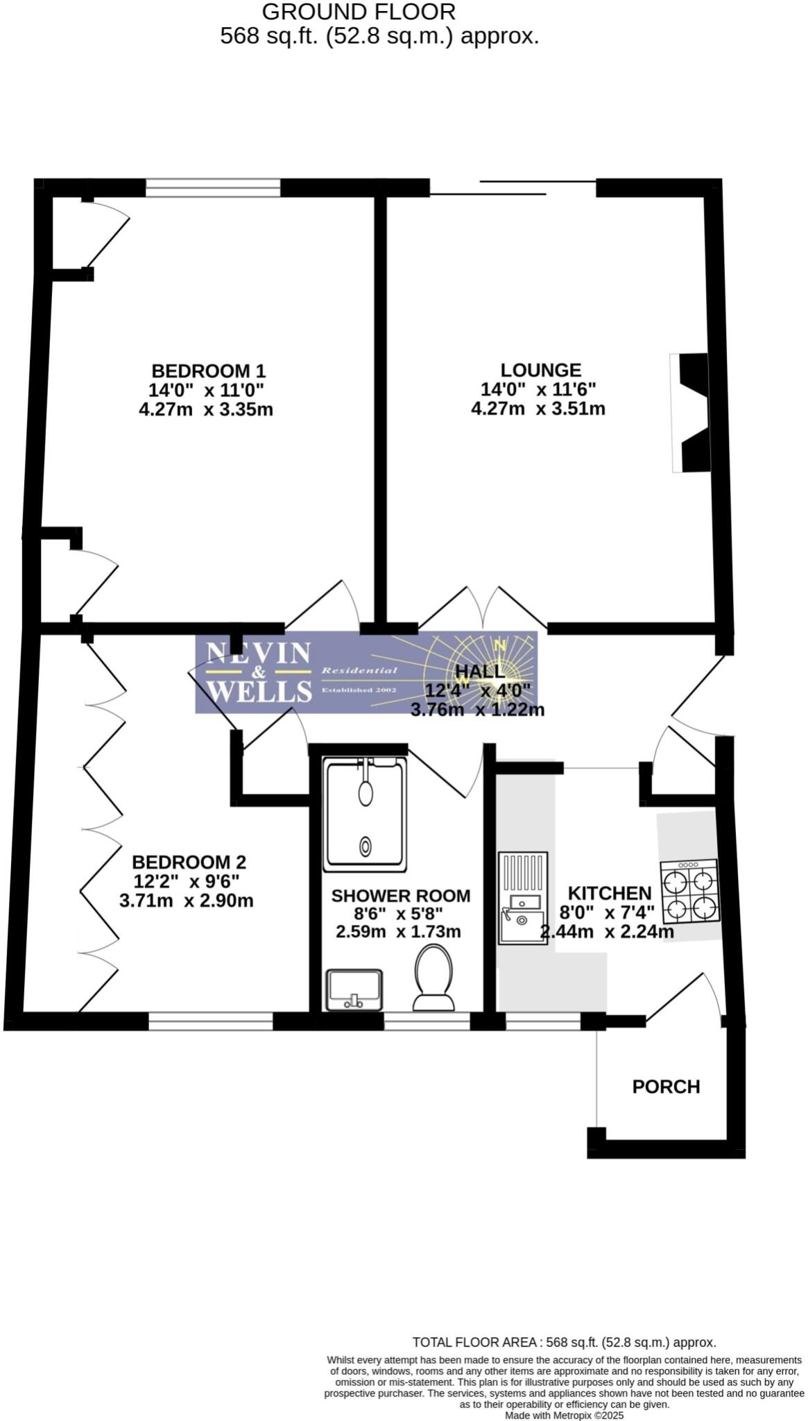
A spacious ground floor apartment, situated in a 1930's built development with two acre river view gardens. Benefits include two double bedrooms, lounge into private terrace, modern kitchen and bathroom, gas central heating and double glazing. Access to Staines station and High Street is...
- Bedrooms
- 2
- Bathrooms
- 1
- Sqft (est)
- 588.65
The heatmap indicates the level of crime in the area. The color of the heatmap indicates the crime severity and recency.
Metrics Year-on-Year
- Average area value
- 512,500.00 £Decreased by 7.89 %
- Est sale value
- 391,452.25 £Increased by 39.41 %
- Average area rental value
- 2,075.00 £/moIncreased by 3.18 %
- Est letting value
- 1,177.30 £/moIncreased by 100.00 %
- Est rental Yield
- 4.86 %Increased by 11.98 %
- Crime Rate
- 4.00 %Unchanged by 0.00 %
from 556,426.00 £
from 280,786.05 £
from 2,011.00 £/mo
from 588.65 £/mo
from 4.34 %
from 4.00 %
Agent Activity
Nevin and Wells Residential created the listing.
Nearby Schools
| Name | Type | Ofsted | Distance |
|---|---|---|---|
| Our Lady Of The Rosary Rc Primary School | Voluntary Aided School | Good | 0.48 KM |
| Riverbridge Primary School | Academy Converter | Good | 0.62 KM |
| Staines Preparatory School | Other Independent School | 1.12 KM | |
| The Magna Carta School | Academy Converter | Good | 1.48 KM |
| The Haven Sure Start Children'S Centre | Children's Centre | 1.54 KM |
Images
Nearby Streets
| Name | Average Price | Average Sqft | Distance |
|---|---|---|---|
| St Peter's Close | £ 700,000 | 0 | 0.00 KM |
| Thames Side | £ 0 | 0 | 0.00 KM |
| Park Avenue | £ 0 | 0 | 0.00 KM |
| Elmsleigh Road | £ 0 | 0 | 0.00 KM |
| Parkside Place | £ 0 | 0 | 0.00 KM |
Nearby Transport
| Name | NLC | TLC | Distance |
|---|---|---|---|
| Staines | 5670 | SNS | 0.94 KM |
| Egham | 5669 | EGH | 4.24 KM |
| Chertsey | 5553 | CHY | 4.31 KM |
| Ashford (Surrey) | 5667 | AFS | 4.62 KM |
| Wraysbury | 5673 | WRY | 5.14 KM |
Nearby Listings
| Address | Price | Type | Score | Distance |
|---|---|---|---|---|
| Riverbank Laleham Road, Staines-upon-Thames, Surrey, TW18 | £ 250,000 | BUY | Unknown | 0.00 KM |
| Riverbank, Laleham Road, Staines, Surrey, TW18 | £ 300,000 | BUY | 7 / 10 | 0.03 KM |
| Laleham Road, Staines-upon-Thames, TW18 | £ 400,000 | BUY | 6 / 10 | 0.03 KM |
| Penton Court, Jamnagar Close, Staines-upon-Thames, Surrey, TW18 | £ 280,000 | BUY | Unknown | 0.09 KM |
| Laleham Road, Staines-upon-Thames, TW18 | £ 295,000 | BUY | 8 / 10 | 0.10 KM |
Nearby Properties
| Address | Price | Distance |
|---|---|---|
| 18b Penton Road | £ 280,000 | 0.15 KM |
| 18a Penton Road | £ 186,000 | 0.15 KM |
| 12 Penton Road | £ 520,000 | 0.15 KM |
| 28 Penton Road | £ 325,000 | 0.15 KM |
| 16 Penton Road | £ 600,000 | 0.15 KM |