Cooksleys says ..
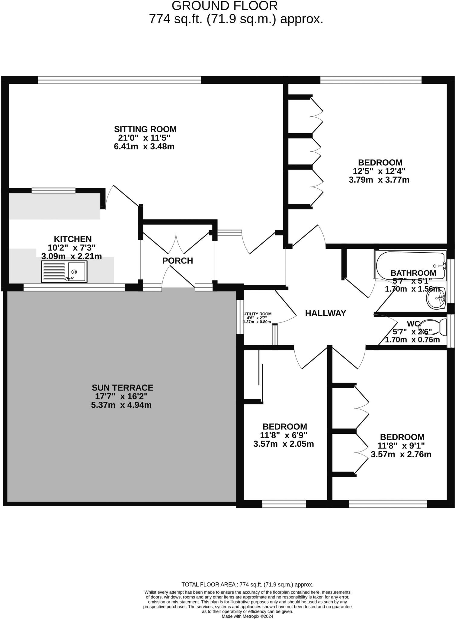
In need of full modernisation this spacious three bedroom first floor apartment with a large private patio area. Situated in a convenient location close to shops, schools and with good access in and out of the city. The accommodation comprises entrance hall, large lounge, kitchen, three bedrooms,...
Property Oracle says ..
This three-bedroom property located on Whipton Village Road in Exeter presents a mixed proposition. Its location offers convenience, with proximity to shops, schools, and train stations. The presence of schools such as Vranch House School (rated Outstanding) is a clear advantage for families. However, the property’s condition is a significant concern. The photographs clearly showcase the need for substantial renovation and repair, notably addressing damp issues apparent in some rooms. The interior finishes are outdated, and a complete refurbishment would be essential. Additionally, the absence of a traditional garden and the presence only of a small paved rooftop area represents a limitation. The listing price of £145,000 requires careful consideration in light of the considerable investment needed to bring this property up to a desirable standard. While comparable properties exist nearby, their condition and features must be carefully examined to determine a fair market valuation. Potential buyers should factor in significant renovation costs before making a purchase decision. A comprehensive survey would be essential to ascertain the extent of necessary works and associated costs. Overall, the property is suitable for buyers with the resources and expertise to undertake extensive refurbishment projects. There is potential value here, but substantial risks must be weighed.
Therefore, we give this property 4 / 10. *Disclaimer: This is our option and does constitute a recommendation or financial advice. Do your own research. *
- Price
- 6
- Condition
- 4
- Location
- 7
- Land
- 2
- Bedrooms
- 3
- Bathrooms
- 1
- Sqft (est)
- 773.93
The heatmap indicates the level of crime in the area. The color of the heatmap indicates the crime severity and recency.
Metrics Year-on-Year
- Average area value
- 327,422.00 £Increased by 3.98 %
- Est sale value
- 326,598.46 £Increased by 33.97 %
- Average area rental value
- 950.00 £/moDecreased by 6.40 %
- Est letting value
- 773.93 £/moUnchanged by 0.00 %
- Est rental Yield
- 3.48 %Decreased by 10.08 %
- Crime Rate
- 8.00 %Unchanged by 0.00 %
Agent Activity
Cooksleys marked this listing as sold.
Cooksleys created the listing.
Nearby Schools
| Name | Type | Ofsted | Distance |
|---|---|---|---|
| Vranch House School | Other Independent Special School | Outstanding | 0.13 KM |
| Whipton Barton Infants And Nursery School | Academy Converter | 0.20 KM | |
| Whipton Children'S Centre | Children's Centre | 0.23 KM | |
| Whipton Barton Junior School | Academy Converter | 0.26 KM | |
| Willowbrook School | Community School | Requires improvement | 0.44 KM |
Images
Nearby Streets
| Name | Average Price | Average Sqft | Distance |
|---|---|---|---|
| Summer Lane | £ 362,500 | 0 | 0.00 KM |
| Heather Close | £ 269,500 | 0 | 0.00 KM |
| Masefield Road | £ 0 | 0 | 0.00 KM |
| Hill Rise | £ 0 | 0 | 0.00 KM |
| Beacon Avenue | £ 0 | 0 | 0.00 KM |
Nearby Transport
| Name | NLC | TLC | Distance |
|---|---|---|---|
| Polsloe Bridge | 3422 | POL | 0.96 KM |
| Pinhoe | 5757 | PIN | 2.72 KM |
| Digby And Sowton | 5753 | DIG | 3.01 KM |
| St James Park (Exeter) | 5751 | SJP | 3.17 KM |
| Newcourt | 9589 | NCO | 3.82 KM |
Nearby Listings
| Address | Price | Type | Score | Distance |
|---|---|---|---|---|
| Whipton Village Road, Exeter | £ 145,000 | BUY | 4 / 10 | 0.00 KM |
| Micawbers Mews, Exeter, EX4 8BS | £ 425,000 | BUY | 7 / 10 | 0.07 KM |
| Pinhoe Road, Exeter | £ 380,000 | BUY | 6 / 10 | 0.11 KM |
| Pinhoe Road, Exeter, EX4 | £ 242,500 | BUY | 6 / 10 | 0.13 KM |
| Woolsery Avenue, Exeter | £ 400,000 | BUY | 7 / 10 | 0.13 KM |
Nearby Properties
| Address | Price | Distance |
|---|---|---|
| 18 Whipton Village Road | £ 345,000 | 0.01 KM |
| 22a Whipton Village Road | £ 280,000 | 0.01 KM |
| 24a Whipton Village Road | £ 129,000 | 0.01 KM |
| 16 Whipton Village Road | £ 410,000 | 0.01 KM |
| 44 Whipton Village Road | £ 205,000 | 0.01 KM |