Birchway, Bramhall, SK7
By Snapes Estate Agents
£ 525,000
Reviews
4 out of 5 stars
Snapes Estate Agents says ..
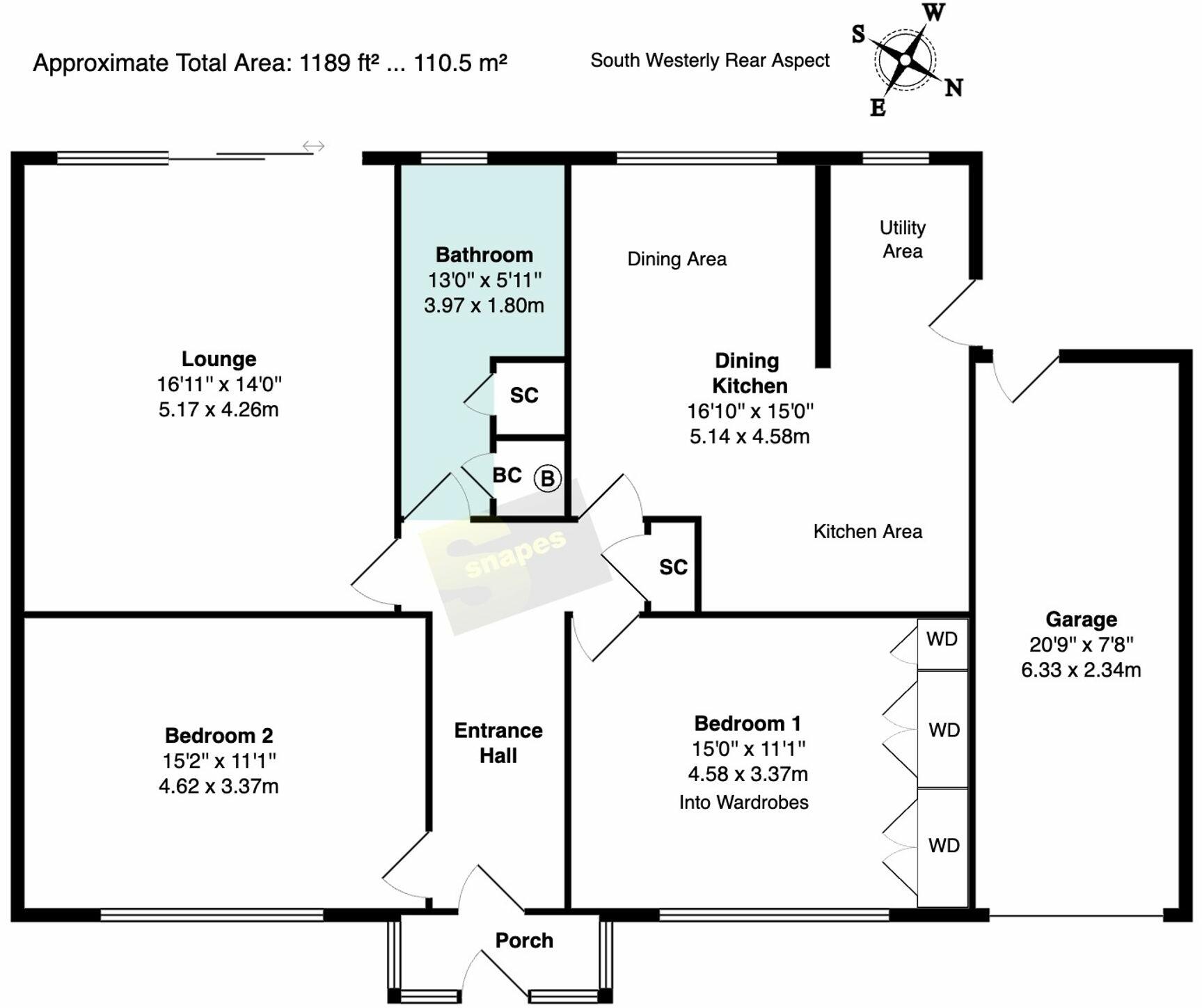
Detached Bungalow ** 2 Double Bedrooms ** Large Lounge ** Open Plan Dining Kitchen ** Modern Kitchen Area ** Dining Area ** Utility Area ** Modern Bathroom ** Ample Storage ** Driveway Parking ** Front Garden ** South West Facing Rear Garden ** Attached 20'9 Garage ** Cul-de-sac Location
Property Oracle says ..
The property is a well-maintained 2-bedroom, 1-bathroom bungalow in the desirable Bramhall location. The interior decor might be considered dated by some buyers, but there is no evidence of significant repair needs. The property includes a reasonably substantial garden. More data is needed on local property prices per square foot to assess the list price competitiveness.
Therefore, we give this property 8 / 10. *Disclaimer: This is our option and does constitute a recommendation or financial advice. Do your own research. *
- Price
- 0
- Condition
- 7
- Location
- 9
- Land
- 8
- Bedrooms
- 2
- Bathrooms
- 1
- Sqft (est)
- 1,587.40
- Lot (est)
- 1,189.41
The heatmap indicates the level of crime in the area. The color of the heatmap indicates the crime severity and recency.
Metrics Year-on-Year
- Average area value
- 646,429.00 £Increased by 3.01 %
- Est sale value
- 746,078.00 £Increased by 44.62 %
- Average area rental value
- 2,000.00 £/moDecreased by 6.06 %
- Est letting value
- 1,587.40 £/moUnchanged by 0.00 %
- Est rental Yield
- 3.71 %Decreased by 8.85 %
- Crime Rate
- 0.00 %
Agent Activity
Snapes Estate Agents created the listing.
Nearby Schools
| Name | Type | Ofsted | Distance |
|---|---|---|---|
| Hursthead Junior School | Academy Converter | Good | 0.96 KM |
| Hursthead Infant School | Community School | Outstanding | 1.00 KM |
| Moss Hey Primary School | Community School | Good | 1.18 KM |
| Valley School | Community Special School | Outstanding | 1.28 KM |
| Pownall Green Primary School | Community School | Outstanding | 1.28 KM |
Images
Nearby Streets
| Name | Average Price | Average Sqft | Distance |
|---|---|---|---|
| Holland Park | £ 925,000 | 0 | 0.00 KM |
| Oak Drive | £ 672,500 | 0 | 0.00 KM |
| Stoke Abbott Close | £ 0 | 0 | 0.00 KM |
| Cromwell Road | £ 0 | 0 | 0.00 KM |
| Keswick Drive | £ 475,000 | 0 | 0.00 KM |
Nearby Transport
| Name | NLC | TLC | Distance |
|---|---|---|---|
| Bramhall | 2944 | BML | 1.02 KM |
| Cheadle Hulme | 2870 | CHU | 2.22 KM |
| Davenport | 2770 | DVN | 3.63 KM |
| Woodsmoor | 2773 | WSR | 4.12 KM |
| Poynton | 2874 | PYT | 4.44 KM |
Nearby Listings
| Address | Price | Type | Score | Distance |
|---|---|---|---|---|
| Birchway, Bramhall, SK7 | £ 525,000 | BUY | 8 / 10 | 0.00 KM |
| Birchway, Bramhall | £ 485,000 | BUY | Unknown | 0.02 KM |
| Birchway, Bramhall, Stockport, Greater Manchester, SK7 | £ 510,000 | BUY | 7 / 10 | 0.03 KM |
| Birchway, Bramhall, SK7 | £ 510,000 | BUY | 7 / 10 | 0.06 KM |
| Thornway, Bramhall | £ 800,000 | BUY | Unknown | 0.11 KM |
Nearby Properties
| Address | Price | Distance |
|---|---|---|
| 26 Birchway | £ 300,000 | 0.02 KM |
| 5 Birchway | £ 285,000 | 0.02 KM |
| 14 Birchway | £ 511,000 | 0.02 KM |
| 7 Birchway | £ 249,950 | 0.02 KM |
| 2 Birchway | £ 379,116 | 0.02 KM |