NG
Wenlock Road, Edgware, Middlesex, HA8
By NGU Estates
£ 589,950
Reviews
3 out of 5 stars
NGU Estates says ..
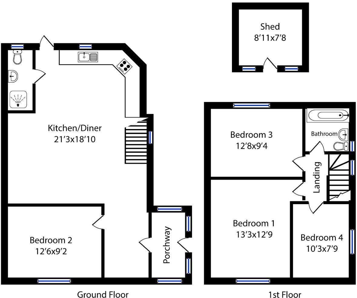
A rarely available 4 bedroom 2 bathroom gated corner house situated on the border of Edgware and Mill Hill within walking distance of Burnt Oak and Mill Hill Stations. The property benefits from a modern fitted kitchen/diner, large lounge, 4 good size bedrooms, off street parking for multiple vehicl
Property Oracle says ..
Therefore, we give this property 6 / 10. *Disclaimer: This is our option and does constitute a recommendation or financial advice. Do your own research. *
- Price
- 6
- Condition
- 7
- Location
- 7
- Land
- 6
- Bedrooms
- 4
- Bathrooms
- 2
- Sqft (est)
- 878.74
The heatmap indicates the level of crime in the area. The color of the heatmap indicates the crime severity and recency.
Metrics Year-on-Year
- Average area value
- 758,663.00 £Increased by 3.95 %
- Est sale value
- 418,280.24 £Decreased by 26.99 %
- Average area rental value
- 2,364.00 £/moDecreased by 11.43 %
- Est letting value
- 878.74 £/moDecreased by 50.00 %
- Est rental Yield
- 3.74 %Decreased by 14.81 %
- Crime Rate
- 6.00 %Unchanged by 0.00 %
from 729,814.00 £
from 572,938.48 £
from 2,669.00 £/mo
from 1,757.48 £/mo
from 4.39 %
from 6.00 %
Agent Activity
NGU Estates created the listing.
Nearby Schools
| Name | Type | Ofsted | Distance |
|---|---|---|---|
| Watling Park School | Free Schools | Good | 0.29 KM |
| Menorah Foundation School | Voluntary Aided School | Good | 0.50 KM |
| Menorah Grammar School | Other Independent School | Inadequate | 0.50 KM |
| The Northgate School | Miscellaneous | 0.63 KM | |
| Northgate School | Pupil Referral Unit | Outstanding | 0.63 KM |
Images
Nearby Streets
| Name | Average Price | Average Sqft | Distance |
|---|---|---|---|
| Compton Close | £ 339,000 | 0 | 0.00 KM |
| Langham Road | £ 350,000 | 0 | 0.00 KM |
| A5 | £ 441,650 | 0 | 0.00 KM |
| Barnfield Road | £ 0 | 0 | 0.00 KM |
| Columbia Avenue | £ 349,950 | 0 | 0.00 KM |
Nearby Transport
| Name | NLC | TLC | Distance |
|---|---|---|---|
| Mill Hill Broadway | 1527 | MIL | 2.10 KM |
| Hendon | 1522 | HEN | 4.64 KM |
| Elstree And Borehamwood | 1542 | ELS | 4.99 KM |
| Kenton | 1399 | KNT | 6.26 KM |
| South Kenton | 1453 | SOK | 6.29 KM |
Nearby Listings
| Address | Price | Type | Score | Distance |
|---|---|---|---|---|
| Wenlock Road, Edgware, Middlesex, HA8 | £ 589,950 | BUY | 6 / 10 | 0.00 KM |
| 54 Wenlock Road, Edgware, HA8 9JF | £ 275,000 | BUY | 5 / 10 | 0.00 KM |
| Wenlock Road, Edgware, Middlesex, HA8 | £ 399,950 | BUY | 5 / 10 | 0.00 KM |
| Wenlock Road, Edgware | £ 450,000 | BUY | 7 / 10 | 0.03 KM |
| Wenlock Road, Edgware | £ 489,950 | BUY | Unknown | 0.04 KM |
Nearby Properties
| Address | Price | Distance |
|---|---|---|
| 49 Edrick Road | £ 150,000 | 0.03 KM |
| 21 Edrick Road | £ 475,000 | 0.03 KM |
| 51 Edrick Road | £ 210,000 | 0.03 KM |
| 41 Edrick Road | £ 370,000 | 0.03 KM |
| 27 Edrick Road | £ 104,000 | 0.03 KM |