HIGHVIEW HOUSE, 6 QUEENS ROAD, LONDON, NW4
By Dreamview Estates
£ 690,000
Reviews
3 out of 5 stars
Dreamview Estates says ..
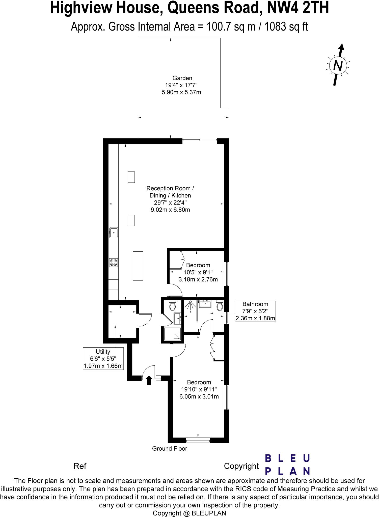
*DREAMVIEW ESTATES ARE PLEASED TO OFFER this SELF CONTAINED 2 bedroom GROUND floor apartment WITH OWN COURTYARD which extends to some 1083 Sq ft/100 Sq Mt opposite Hendon Park and just 5 minutes walk to Hendon Central Underground Station, providing access to Central London in 20 minutes. *T...
Property Oracle says ..
This 2-bedroom, 1-bathroom apartment located at HIGHVIEW HOUSE, 6 QUEENS ROAD, LONDON, NW4 is presented in excellent condition. The property boasts a contemporary interior design with a modern kitchen and bathroom. Images showcase a bright and airy space, indicative of a well-maintained home. The apartment is situated close to Hendon Central Underground Station, providing quick access to central London, a significant advantage for commuters. Furthermore, Hendon Park is in close proximity, offering green space and recreational opportunities. The inclusion of a private courtyard, though its size is not specified, provides additional outdoor space.
While the property exhibits a high standard of condition and is conveniently located, the available information does not allow a precise determination of the average price per square foot for comparable properties in the immediate vicinity. This makes a definitive conclusion regarding its value relative to other properties in the area challenging. Further information on the property and surrounding market data would lead to a more accurate and detailed assessment.
The nearby presence of several schools adds family appeal. However, the lack of detail in the provided data restricts a full analysis of the location’s desirability and the property’s suitability for a range of prospective buyers. A detailed comparison with other comparable properties would give a more accurate view of this property’s market value. The lack of detailed plot size information limits the overall assessment of the property.
Therefore, we give this property 6 / 10. *Disclaimer: This is our option and does constitute a recommendation or financial advice. Do your own research. *
- Price
- 7
- Condition
- 9
- Location
- 7
- Land
- 4
- Bedrooms
- 2
- Bathrooms
- 1
- Sqft (est)
- 1,083.00
The heatmap indicates the level of crime in the area. The color of the heatmap indicates the crime severity and recency.
Metrics Year-on-Year
- Average area value
- 502,893.00 £Increased by 16.71 %
- Est sale value
- 355,224.00 £Increased by 0.92 %
- Average area rental value
- 1,587.00 £/moDecreased by 12.80 %
- Est letting value
- 1,083.00 £/moUnchanged by 0.00 %
- Est rental Yield
- 3.79 %Decreased by 25.25 %
- Crime Rate
- 2.00 %Unchanged by 0.00 %
Agent Activity
Dreamview Estates created the listing.
Nearby Schools
| Name | Type | Ofsted | Distance |
|---|---|---|---|
| Tiferes High School | Other Independent School | Requires improvement | 0.24 KM |
| Brampton College | Other Independent School | 0.60 KM | |
| Hendon School | Academy Converter | Outstanding | 0.67 KM |
| Beth Jacob Grammar School For Girls | Other Independent School | Good | 0.74 KM |
| Hasmonean Primary School | Voluntary Aided School | Good | 0.84 KM |
Images
Nearby Streets
| Name | Average Price | Average Sqft | Distance |
|---|---|---|---|
| North Street | £ 0 | 0 | 0.00 KM |
| Allington Road | £ 1,000,000 | 0 | 0.00 KM |
| Haley Road | £ 0 | 0 | 0.00 KM |
| Brent Green | £ 0 | 0 | 0.00 KM |
| Bethel Close | £ 0 | 0 | 0.00 KM |
Nearby Transport
| Name | NLC | TLC | Distance |
|---|---|---|---|
| Hendon | 1522 | HEN | 1.72 KM |
| Cricklewood | 1519 | CRI | 3.02 KM |
| Mill Hill Broadway | 1527 | MIL | 4.37 KM |
| Brondesbury | 1437 | BSY | 4.86 KM |
| Brondesbury Park | 1438 | BSP | 4.98 KM |
Nearby Listings
| Address | Price | Type | Score | Distance |
|---|---|---|---|---|
| HIGHVIEW HOUSE, 6 QUEENS ROAD, LONDON, NW4 | £ 625,000 | BUY | Unknown | 0.00 KM |
| HIGHVIEW HOUSE, 6 QUEENS ROAD, LONDON, NW4 | £ 690,000 | BUY | 6 / 10 | 0.00 KM |
| HIGHVIEW HOUSE, 6 QUEENS ROAD, LONDON, NW4 | £ 1,100,000 | BUY | 7 / 10 | 0.00 KM |
| Queens Road, Hendon, NW4 | £ 1,190,000 | BUY | 5 / 10 | 0.02 KM |
| Hendon Park Mansions, Queens Road | £ 535,000 | BUY | Unknown | 0.14 KM |
Nearby Properties
| Address | Price | Distance |
|---|---|---|
| 7 Queens Road | £ 1,175,000 | 0.01 KM |
| 10 Sydney Grove | £ 300,000 | 0.09 KM |
| 42a Sydney Grove | £ 249,950 | 0.09 KM |
| 12 Sydney Grove | £ 960,000 | 0.09 KM |
| 40 Sydney Grove | £ 410,000 | 0.09 KM |