Yopa says ..
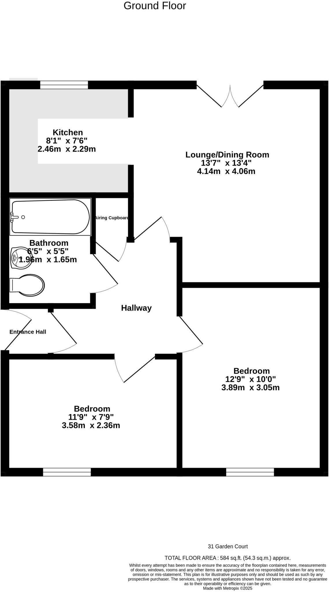
A smartly presented ground floor apartment in this sought after development. In great condition throughout, this spacious property is ready to move straight into and perfect for a professional couple or first time buyer. It comes with allocated parking and a long lease. Viewing essential.
Property Oracle says ..
Therefore, we give this property 7 / 10. *Disclaimer: This is our option and does constitute a recommendation or financial advice. Do your own research. *
- Price
- 9
- Condition
- 8
- Location
- 8
- Land
- 5
- Bedrooms
- 2
- Bathrooms
- 1
- Sqft (est)
- 499.10
The heatmap indicates the level of crime in the area. The color of the heatmap indicates the crime severity and recency.
Metrics Year-on-Year
- Average area value
- 305,488.00 £Decreased by 9.52 %
- Est sale value
- 175,683.20 £Increased by 33.84 %
- Average area rental value
- 1,004.00 £/moDecreased by 1.08 %
- Est letting value
- 499.10 £/mo
- Est rental Yield
- 3.94 %Increased by 9.14 %
- Crime Rate
- 4.00 %Unchanged by 0.00 %
from 337,636.00 £
from 131,263.30 £
from 1,015.00 £/mo
from 0.00 £/mo
from 3.61 %
from 4.00 %
Agent Activity
Yopa created the listing.
Nearby Schools
| Name | Type | Ofsted | Distance |
|---|---|---|---|
| Charford First School | Community School | Good | 0.59 KM |
| Sunny Fields Children'S Centre | Children's Centre | 0.65 KM | |
| South Bromsgrove High | Academy Converter | 1.09 KM | |
| Lokrum Fields | Other Independent Special School | 1.33 KM | |
| Aston Fields Middle School | Community School | Outstanding | 1.52 KM |
Images
Nearby Streets
| Name | Average Price | Average Sqft | Distance |
|---|---|---|---|
| Warwick Avenue | £ 375,000 | 0 | 0.00 KM |
| A38 | £ 450,000 | 0 | 0.00 KM |
| Stone House Road | £ 0 | 0 | 0.00 KM |
| Bromsgrove Eastern Bypass | £ 0 | 0 | 0.00 KM |
| Chaucer Road | £ 0 | 0 | 0.00 KM |
Nearby Transport
| Name | NLC | TLC | Distance |
|---|---|---|---|
| Bromsgrove | 4715 | BMV | 1.07 KM |
| Barnt Green | 1096 | BTG | 8.49 KM |
Nearby Listings
| Address | Price | Type | Score | Distance |
|---|---|---|---|---|
| Design Close, Bromsgrove, B60 | £ 175,000 | BUY | 7 / 10 | 0.00 KM |
| Design Close, Bromsgrove, B60 | £ 170,000 | BUY | 6 / 10 | 0.02 KM |
| Design Close, Bromsgrove, Worcestershire, B60 | £ 85,000 | BUY | 6 / 10 | 0.02 KM |
| Flat 9, Garden Court, Design Close, Bromsgrove B60 3GS | £ 127,500 | BUY | 6 / 10 | 0.03 KM |
| Flat 3, Garden Court, Design Close, Bromsgrove. B60 3GS | £ 170,000 | BUY | Unknown | 0.07 KM |
Nearby Properties
| Address | Price | Distance |
|---|---|---|
| 20 Compass Way | £ 410,000 | 0.11 KM |
| 3 Compass Way | £ 285,000 | 0.11 KM |
| 6 Compass Way | £ 362,000 | 0.11 KM |
| 23 Compass Way | £ 472,000 | 0.11 KM |
| 1 Compass Way | £ 249,950 | 0.11 KM |