Hunters says ..
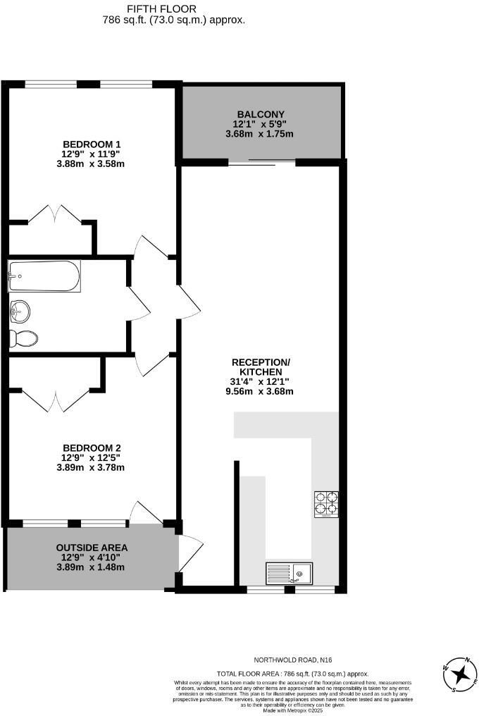
Available to view by appointment only, this exceptionally large two bedroom apartment is presented in excellent condition throughout boasting over 785 sq. ft. (73 sqm) of internal accommodation, private south-facing balcony and superb location. Situated on the fifth floor (top) with lif...
Property Oracle says ..
This property is a 2 bedroom, 1 bathroom apartment located in Hackney, London. The apartment is modern and well-presented, with a neutral decor and good-sized rooms. It benefits from a balcony and appears to be in excellent condition. The location is convenient, with good transport links and several schools nearby. The price is slightly below the average price for the area, but the square footage is significantly smaller than average, making the price per square foot higher. Overall, it is a desirable property in a good location, but potential buyers should carefully consider the smaller size in relation to the price.
Therefore, we give this property 7 / 10. *Disclaimer: This is our option and does constitute a recommendation or financial advice. Do your own research. *
- Price
- 7
- Condition
- 9
- Location
- 8
- Land
- 4
- Bedrooms
- 2
- Bathrooms
- 1
- Sqft (est)
- 811.00
- Lot (est)
- 786.00
The heatmap indicates the level of crime in the area. The color of the heatmap indicates the crime severity and recency.
Metrics Year-on-Year
- Average area value
- 475,000.00 £Decreased by 35.62 %
- Est sale value
- 726,656.00 £Increased by 35.55 %
- Average area rental value
- 1,997.00 £/moIncreased by 6.91 %
- Est letting value
- 2,433.00 £/moIncreased by 200.00 %
- Est rental Yield
- 5.05 %Increased by 66.12 %
- Crime Rate
- 6.00 %Unchanged by 0.00 %
Agent Activity
Hunters created the listing.
Nearby Schools
| Name | Type | Ofsted | Distance |
|---|---|---|---|
| Tawhid Boys School, Tawhid Educational Trust | Other Independent School | Good | 0.19 KM |
| William Patten Primary School | Community School | Outstanding | 0.41 KM |
| Beis Malka Girls' School | Other Independent School | Good | 0.43 KM |
| Ttd Gur School | Other Independent School | Inadequate | 0.43 KM |
| Simon Marks Jewish Primary School | Voluntary Aided School | Good | 0.45 KM |
Images
Nearby Streets
| Name | Average Price | Average Sqft | Distance |
|---|---|---|---|
| Sandford Walk | £ 0 | 0 | 0.00 KM |
| Sanford Lane | £ 0 | 0 | 0.00 KM |
| Station Approach | £ 0 | 0 | 0.00 KM |
| Scholars' Place | £ 825,000 | 0 | 0.00 KM |
| Scoble Place | £ 285,000 | 0 | 0.00 KM |
Nearby Transport
| Name | NLC | TLC | Distance |
|---|---|---|---|
| Stoke Newington | 6934 | SKW | 0.30 KM |
| Rectory Road | 6967 | REC | 0.61 KM |
| Stamford Hill | 6968 | SMH | 1.41 KM |
| Clapton | 6926 | CPT | 1.60 KM |
| Dalston Kingsland | 1429 | DLK | 1.71 KM |
Nearby Listings
| Address | Price | Type | Score | Distance |
|---|---|---|---|---|
| Northwold Road, London, N16 | £ 565,000 | BUY | 7 / 10 | 0.00 KM |
| Raines Court, Northwold Road, N16 | £ 535,000 | BUY | 6 / 10 | 0.00 KM |
| Raines Court, Northwold Road, Stoke Newington, London, N16 | £ 540,000 | BUY | Unknown | 0.01 KM |
| Northwold Road, Raines Court, N16 | £ 500,000 | BUY | Unknown | 0.01 KM |
| Gibson Gardens, Stoke Newington, N16 | £ 375,000 | BUY | 6 / 10 | 0.07 KM |
Nearby Properties
| Address | Price | Distance |
|---|---|---|
| 100 Gibson Gardens | £ 70,000 | 0.06 KM |
| 95 Gibson Gardens | £ 350,000 | 0.06 KM |
| 77 Gibson Gardens | £ 165,000 | 0.06 KM |
| 97 Gibson Gardens | £ 52,000 | 0.06 KM |
| 63 Gibson Gardens | £ 44,500 | 0.06 KM |