SPRINGVALE CLOSE, GREAT BOOKHAM, KT23
By Patrick Gardner
£ 599,950
Reviews
3 out of 5 stars
Patrick Gardner says ..
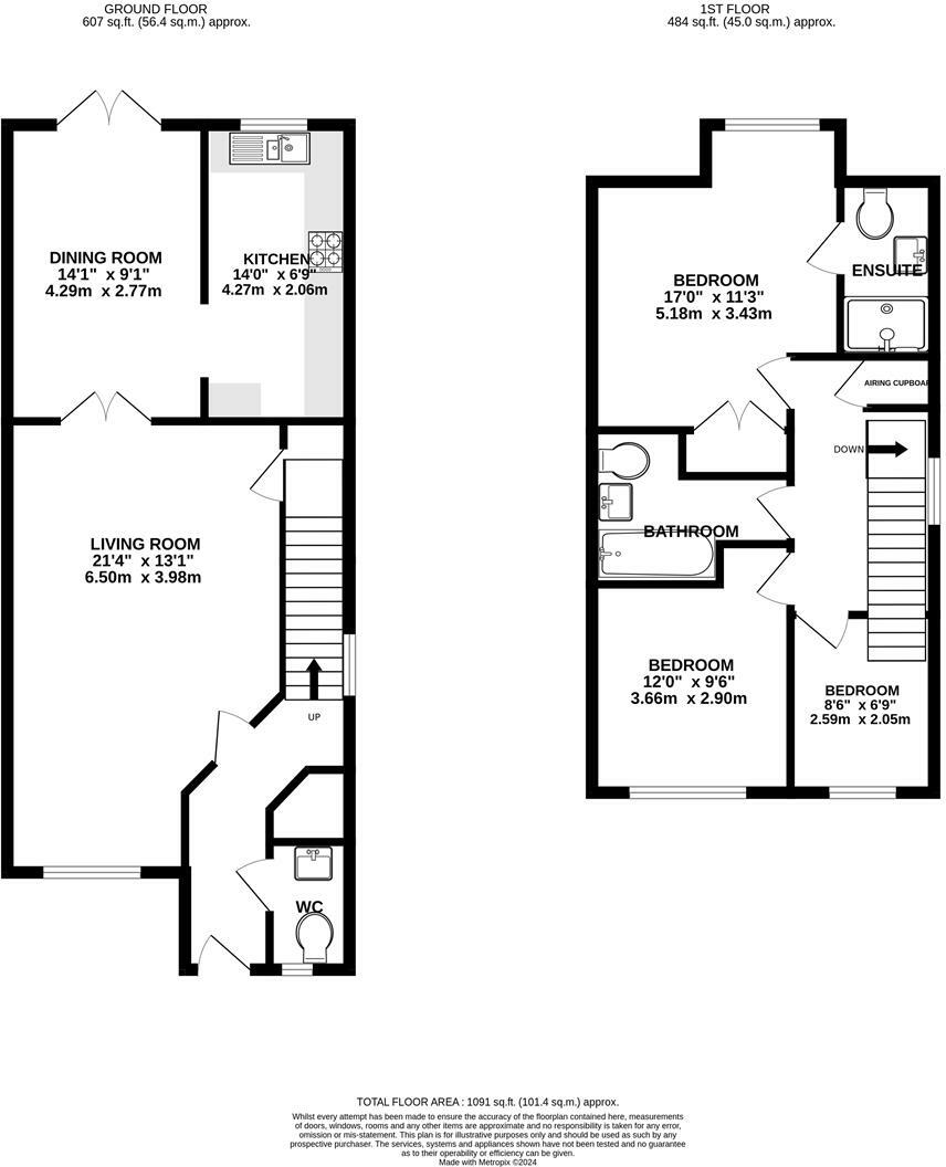
This three bedroom house is situated in a private cul-de-sac just minutes walk from Bookham High Street and offers a secluded garden and driveway parking. As you walk through the front door you are welcomed into the entrance hall with a downstairs cloakroom, coats cupboard and a door lea...
Property Oracle says ..
Therefore, we give this property 7 / 10. *Disclaimer: This is our option and does constitute a recommendation or financial advice. Do your own research. *
- Price
- 7
- Condition
- 8
- Location
- 8
- Land
- 7
- Bedrooms
- 3
- Bathrooms
- 2
- Sqft (est)
- 866.79
The heatmap indicates the level of crime in the area. The color of the heatmap indicates the crime severity and recency.
Metrics Year-on-Year
- Average area value
- 687,990.00 £Decreased by 14.61 %
- Est sale value
- 731,570.76 £Increased by 75.10 %
- Average area rental value
- 2,950.00 £/moIncreased by 25.21 %
- Est letting value
- 2,600.37 £/moIncreased by 200.00 %
- Est rental Yield
- 5.15 %Increased by 46.72 %
- Crime Rate
- 5.00 %Unchanged by 0.00 %
from 805,711.00 £
from 417,792.78 £
from 2,356.00 £/mo
from 866.79 £/mo
from 3.51 %
from 5.00 %
Agent Activity
Patrick Gardner created the listing.
Nearby Schools
| Name | Type | Ofsted | Distance |
|---|---|---|---|
| Eastwick Infant School | Academy Converter | Good | 0.69 KM |
| Eastwick Junior School | Academy Converter | Good | 0.69 KM |
| The Dawnay School | Community School | Requires improvement | 0.71 KM |
| Polesden Lacey Infant School | Community School | Outstanding | 0.73 KM |
| Wellspring Sure Start Children'S Centre | Children's Centre Linked Site | 0.83 KM |
Images
Nearby Streets
| Name | Average Price | Average Sqft | Distance |
|---|---|---|---|
| The Paddocks | £ 0 | 0 | 0.00 KM |
| Maple Drive | £ 0 | 0 | 0.00 KM |
| Church Road | £ 1,162,500 | 0 | 0.00 KM |
| The Spinney | £ 0 | 0 | 0.00 KM |
| Brodrick Grove | £ 500,000 | 0 | 0.00 KM |
Nearby Transport
| Name | NLC | TLC | Distance |
|---|---|---|---|
| Bookham | 5626 | BKA | 2.01 KM |
| Leatherhead | 5368 | LHD | 4.60 KM |
| Cobham And Stoke D'Abernon | 5557 | CSD | 4.97 KM |
| Box Hill And Westhumble | 5403 | BXW | 5.25 KM |
| Dorking West | 5297 | DKT | 5.68 KM |
Nearby Listings
| Address | Price | Type | Score | Distance |
|---|---|---|---|---|
| SPRINGVALE CLOSE, GREAT BOOKHAM, KT23 | £ 599,950 | BUY | 7 / 10 | 0.00 KM |
| Springvale Close, Bookham | £ 575,000 | BUY | Unknown | 0.04 KM |
| Proctor Gardens, Great Bookham, Leatherhead, KT23 | £ 625,000 | BUY | 7 / 10 | 0.04 KM |
| CANDY CROFT, GREAT BOOKHAM, KT23 | £ 655,000 | BUY | 7 / 10 | 0.10 KM |
| Leatherhead Road, Great Bookham, KT23 | £ 625,000 | BUY | Unknown | 0.13 KM |
Nearby Properties
| Address | Price | Distance |
|---|---|---|
| 3 Springvale Close | £ 497,500 | 0.08 KM |
| 4 Springvale Close | £ 545,000 | 0.08 KM |
| 16 Springvale Close | £ 550,000 | 0.08 KM |
| 12 Springvale Close | £ 550,000 | 0.08 KM |
| 10 Springvale Close | £ 560,000 | 0.08 KM |