Crystal Place, Worcester Park
By SeOUL Residential
£ 365,000
Reviews
3 out of 5 stars
SeOUL Residential says ..
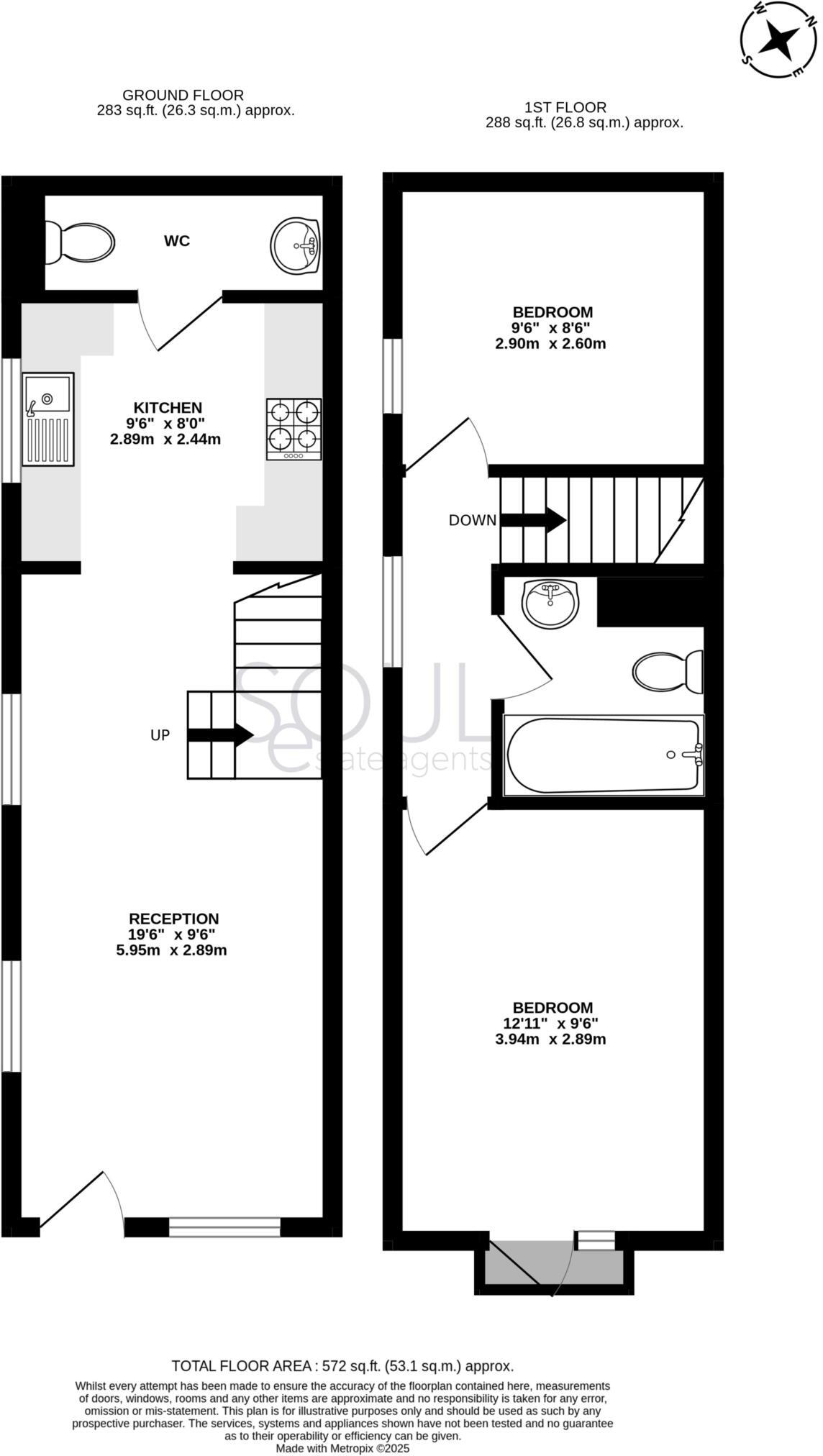
Two-bedroom house in a quiet Worcester Park cul-de-sac, offering 572 sq. ft. across two floors. Ready to move in with no chain Close to local amenities and transport links. Allocated parking space. Open Day - 29th November between 11am and 12.30pm
Property Oracle says ..
This is a 2-bedroom end-of-terrace property located in Worcester Park, Sutton. The property is in good condition and has a modern interior. It is situated within a reasonable distance of local schools and transportation links. The property has a small outdoor area. The asking price is £365,000, which is above the average price per square foot for the area, but the property appears to be in good condition.
Therefore, we give this property 6 / 10. *Disclaimer: This is our option and does constitute a recommendation or financial advice. Do your own research. *
- Price
- 7
- Condition
- 8
- Location
- 7
- Land
- 3
- Bedrooms
- 2
- Bathrooms
- 1
- Sqft (est)
- 571.56
The heatmap indicates the level of crime in the area. The color of the heatmap indicates the crime severity and recency.
Metrics Year-on-Year
- Average area value
- 866,667.00 £Increased by 67.38 %
- Est sale value
- 265,775.40 £Decreased by 8.10 %
- Average area rental value
- 2,225.00 £/moIncreased by 16.19 %
- Est letting value
- 571.56 £/moUnchanged by 0.00 %
- Est rental Yield
- 3.08 %Decreased by 30.63 %
- Crime Rate
- 8.00 %Unchanged by 0.00 %
Agent Activity
SeOUL Residential created the listing.
Nearby Schools
| Name | Type | Ofsted | Distance |
|---|---|---|---|
| Cheam Common Junior Academy | Academy Sponsor Led | Good | 0.22 KM |
| Cheam Common Infants' Academy | Academy Converter | 0.27 KM | |
| Dorchester Primary School | Foundation School | Good | 0.66 KM |
| Green Lane Primary And Nursery School | Academy Converter | 1.17 KM | |
| Meadow Primary School | Academy Converter | 1.18 KM |
Images
Nearby Streets
| Name | Average Price | Average Sqft | Distance |
|---|---|---|---|
| Woodbine Lane | £ 520,000 | 0 | 0.00 KM |
| Caldbeck Avenue | £ 335,000 | 0 | 0.00 KM |
| Chiltern Close | £ 500,000 | 0 | 0.00 KM |
| Richlands Avenue | £ 0 | 0 | 0.00 KM |
| Stanton Close | £ 0 | 0 | 0.00 KM |
Nearby Transport
| Name | NLC | TLC | Distance |
|---|---|---|---|
| Worcester Park | 5579 | WCP | 1.10 KM |
| Stoneleigh | 5606 | SNL | 2.02 KM |
| Motspur Park | 5645 | MOT | 2.08 KM |
| Malden Manor | 5599 | MAL | 2.90 KM |
| Cheam | 5352 | CHE | 3.41 KM |
Nearby Listings
| Address | Price | Type | Score | Distance |
|---|---|---|---|---|
| Crystal Place, Worcester Park | £ 365,000 | BUY | 6 / 10 | 0.00 KM |
| Crystal Place, Worcester Park, KT4 | £ 435,000 | BUY | 7 / 10 | 0.03 KM |
| Crystal Place, Worcester Park | £ 435,000 | BUY | 7 / 10 | 0.04 KM |
| Lindsay Road, Worcester Park, KT4 | £ 850,000 | BUY | 7 / 10 | 0.09 KM |
| Timberyard Mews, Worcester Park | £ 715,000 | BUY | Unknown | 0.12 KM |
Nearby Properties
| Address | Price | Distance |
|---|---|---|
| 194 - 196 Cheam Common Road | £ 280,000 | 0.04 KM |
| 235 Cheam Common Road | £ 405,000 | 0.09 KM |
| 237 Cheam Common Road | £ 370,000 | 0.09 KM |
| 241a Cheam Common Road | £ 332,500 | 0.09 KM |
| 233 Cheam Common Road | £ 76,000 | 0.09 KM |