Harper & Woods says ..
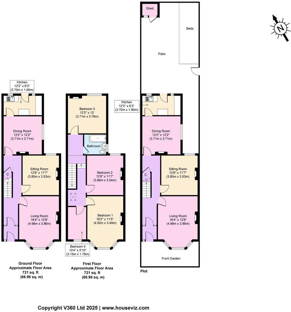
Sold with no chain, this property in a quiet cul-de-sac, should be very appealing to investors or for first time buyers looking to put their own stamp on a property. In need of some upgrading in parts but full of potential, this four bedroom semi detached property has three recep...
Property Oracle says ..
This semi-detached property in Liscard, Wallasey, presents a promising opportunity for buyers willing to undertake renovation work. The house boasts four bedrooms and a generous 1,442 sqft of living space. While the interior requires modernization, the property’s location near schools and transportation links adds to its appeal. The garden, though currently overgrown, offers significant potential. Considering the asking price of £165,000 and the average property values in the area, this property represents good value for those prepared to invest in improvements.
Therefore, we give this property 6 / 10. *Disclaimer: This is our option and does constitute a recommendation or financial advice. Do your own research. *
- Price
- 8
- Condition
- 4
- Location
- 7
- Land
- 6
- Bedrooms
- 4
- Bathrooms
- 1
- Sqft (est)
- 1,442.00
The heatmap indicates the level of crime in the area. The color of the heatmap indicates the crime severity and recency.
Metrics Year-on-Year
- Average area value
- 158,667.00 £Decreased by 12.47 %
- Est sale value
- 308,588.00 £Increased by 35.44 %
- Average area rental value
- 606.00 £/moDecreased by 22.70 %
- Est letting value
- 0.00 £/mo
- Est rental Yield
- 4.58 %Decreased by 11.75 %
- Crime Rate
- 7.00 %Unchanged by 0.00 %
Agent Activity
Harper & Woods created the listing.
Nearby Schools
| Name | Type | Ofsted | Distance |
|---|---|---|---|
| Liscard Children'S Centre | Children's Centre Linked Site | 0.47 KM | |
| Liscard Primary School | Community School | Outstanding | 0.59 KM |
| Egremont Primary School | Academy Converter | 0.82 KM | |
| Somerville Primary School | Community School | Good | 0.83 KM |
| Somerville Nursery School | Local Authority Nursery School | Good | 0.92 KM |
Images
Nearby Streets
| Name | Average Price | Average Sqft | Distance |
|---|---|---|---|
| The Grange | £ 0 | 0 | 0.00 KM |
| Brook Close | £ 179,995 | 0 | 0.00 KM |
| Wellesley Road | £ 205,000 | 0 | 0.00 KM |
| Marsden Close | £ 130,000 | 0 | 0.00 KM |
| Deveraux Drive | £ 0 | 0 | 0.00 KM |
Nearby Transport
| Name | NLC | TLC | Distance |
|---|---|---|---|
| Birkenhead Park | 2220 | BKP | 2.40 KM |
| New Brighton | 2152 | NBN | 2.41 KM |
| Birkenhead North | 2145 | BKN | 2.81 KM |
| Conway Park | 3624 | CNP | 3.23 KM |
| Wallasey Village | 2265 | WLV | 3.62 KM |
Nearby Listings
| Address | Price | Type | Score | Distance |
|---|---|---|---|---|
| The Mount, Wallasey | £ 165,000 | BUY | 6 / 10 | 0.00 KM |
| Empress Road, Wallasey, Merseyside, CH44 | £ 150,000 | BUY | 5 / 10 | 0.05 KM |
| Martins Lane, Wallasey, Merseyside, CH44 | £ 230,000 | BUY | 5 / 10 | 0.06 KM |
| The Grange, Wallasey, Wirral | £ 185,000 | BUY | 6 / 10 | 0.06 KM |
| Central Park Avenue, Wallasey | £ 215,000 | BUY | 6 / 10 | 0.07 KM |
Nearby Properties
| Address | Price | Distance |
|---|---|---|
| 4 The Mount | £ 122,000 | 0.01 KM |
| 3 The Mount | £ 149,950 | 0.01 KM |
| 6 The Mount | £ 165,000 | 0.01 KM |
| 12 The Mount | £ 68,500 | 0.01 KM |
| 52 Martins Lane | £ 158,000 | 0.06 KM |