Laleham Road, Staines-upon-Thames, Surrey, TW18
OA

Laleham Road, Staines-upon-Thames, Surrey, TW18

By Oasis Estate Agents

£ 750,000

Reviews

3 out of 5 stars

Oasis Estate Agents says ..

The Grand Reveal – Exclusive Property Launch, Sat 18th Oct | Viewings Available By Appointment Only Discover Your New Home ASHWOOD – A New & Exclusive Four-Bedroom Home on Laleham Road – Modern Three-Storey Luxury Living with Elegant Interiors, Private Garde...

Property Oracle says ..

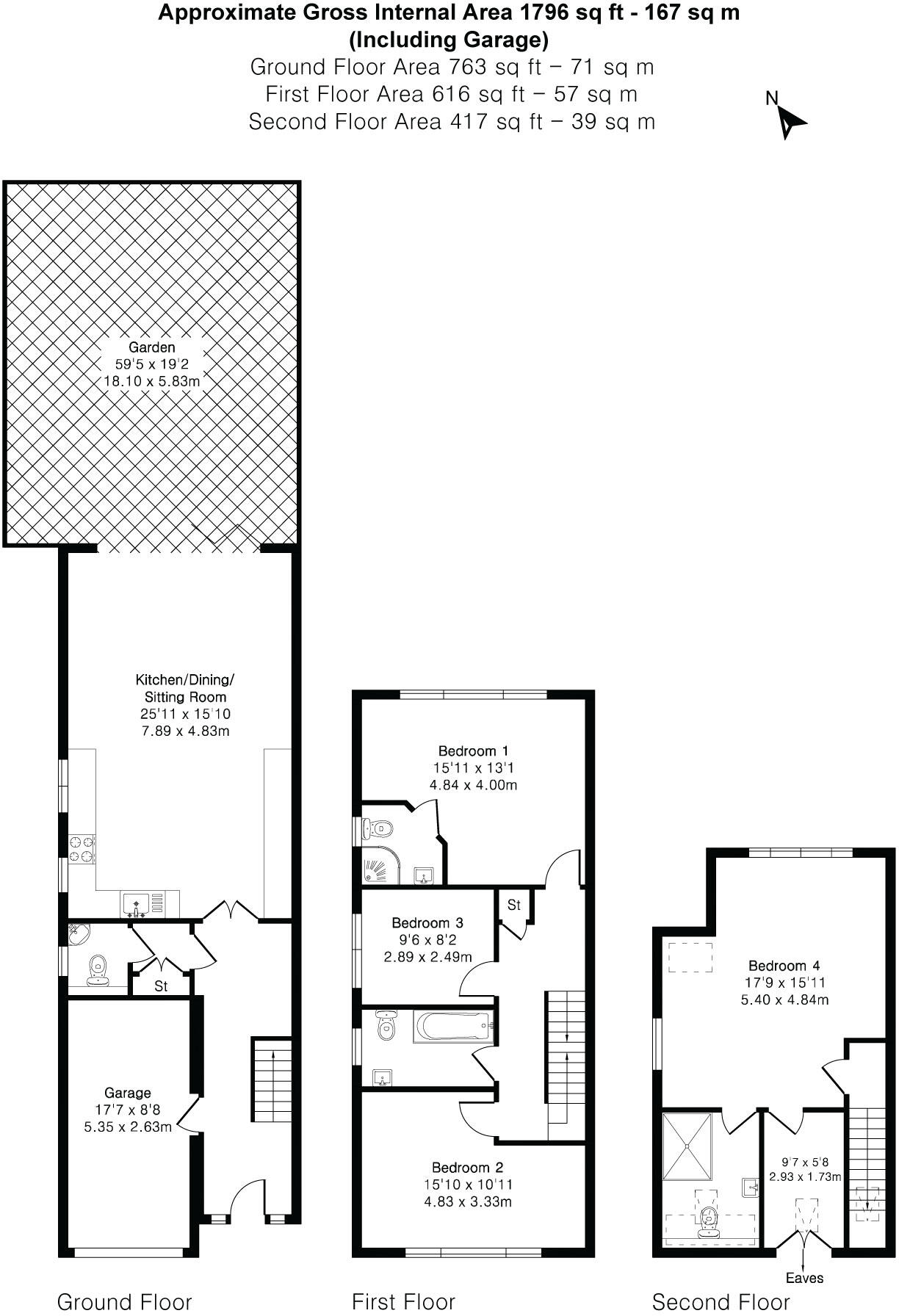
This is a modern, semi-detached property located on Laleham Road in Staines-upon-Thames. The house features four bedrooms and three bathrooms, offering ample space for a family. The property has been recently renovated and is in excellent condition, with a modern kitchen, stylish bathrooms, and well-finished rooms. It also benefits from a garden with a paved patio area and off-street parking. The property is located close to local schools and transportation links, making it a desirable location for families and commuters. While the list price is above the average for the area, the property’s size, condition, and features justify the price.

Therefore, we give this property 7 / 10. *Disclaimer: This is our option and does constitute a recommendation or financial advice. Do your own research. *

Price
7
Condition
9
Location
7
Land
7
Bedrooms
4
Bathrooms
3
Sqft (est)
1,356.47
Lot (est)
1,136.02

The heatmap indicates the level of crime in the area. The color of the heatmap indicates the crime severity and recency.

Metrics Year-on-Year

Average area value
475,335.00 £
Increased by 9.77 %
from 433,047.00 £
Est sale value
843,724.34 £
Increased by 17.36 %
from 718,929.10 £
Average area rental value
1,773.00 £/mo
Increased by 5.54 %
from 1,680.00 £/mo
Est letting value
2,712.94 £/mo
Unchanged by 0.00 %
from 2,712.94 £/mo
Est rental Yield
4.48 %
Decreased by 3.86 %
from 4.66 %
Crime Rate
6.00 %
Unchanged by 0.00 %
from 6.00 %

Agent Activity

  • Oasis Estate Agents created the listing.

Nearby Schools

NameTypeOfstedDistance
Our Lady Of The Rosary Rc Primary SchoolVoluntary Aided SchoolGood0.20 KM
Riverbridge Primary SchoolAcademy ConverterGood0.34 KM
Staines Preparatory SchoolOther Independent School0.87 KM
The Magna Carta SchoolAcademy ConverterGood1.75 KM
The Haven Sure Start Children'S CentreChildren's Centre1.79 KM

Images

Front Patio Kitchen/Living Hallway Kitchen Kitchen Kitchen Bedroom 1 Bedroom 1 Kitchen Bi-Fold Doors Bedroom 2 Front Front Front Front Kitchen Kitchen Kitchen/Living Bi-Fold Doors Ground Floor Wc Hallway Bedroom 1 En Suite Bedroom 3 Bathroom Stairs Bedroom 4 Bedroom 4 Bedroom 4 Bedroom 4 Principal En Suite Garden Garden Patio Rear Rear Principal En Suite Storage Utility/Wc Garden Rear

Nearby Streets

NameAverage PriceAverage SqftDistance
Park Avenue £ 000.00 KM
St Peter's Close £ 700,00000.00 KM
Thames Side £ 000.00 KM
Parkside Place £ 000.00 KM
Pinewood Drive £ 215,00000.00 KM

Nearby Transport

NameNLCTLCDistance
Staines5670SNS0.74 KM
Ashford (Surrey)5667AFS4.34 KM
Chertsey5553CHY4.39 KM
Egham5669EGH4.50 KM
Heathrow Terminal 59846HWV5.15 KM

Nearby Listings

AddressPriceTypeScoreDistance
Laleham Road, Staines-upon-Thames, Surrey, TW18 £ 750,000BUY7 / 100.00 KM
Laleham Road, Staines-upon-Thames, Surrey, TW18 £ 750,000BUY7 / 100.00 KM
Laleham Road, Staines-upon-Thames, Surrey, TW18 £ 750,000BUY7 / 100.01 KM
Edgecumbe Court, Laleham Road £ 288,000BUY5 / 100.07 KM
Laleham Road, Staines, Surrey, TW18 £ 275,000BUY8 / 100.08 KM

Nearby Properties

AddressPriceDistance
137 Laleham Road £ 605,0000.01 KM
139 Laleham Road £ 325,0000.01 KM
119 Laleham Road £ 460,0000.01 KM
179 Laleham Road £ 170,0000.14 KM
191 Laleham Road £ 430,0000.14 KM