Minors & Brady says ..
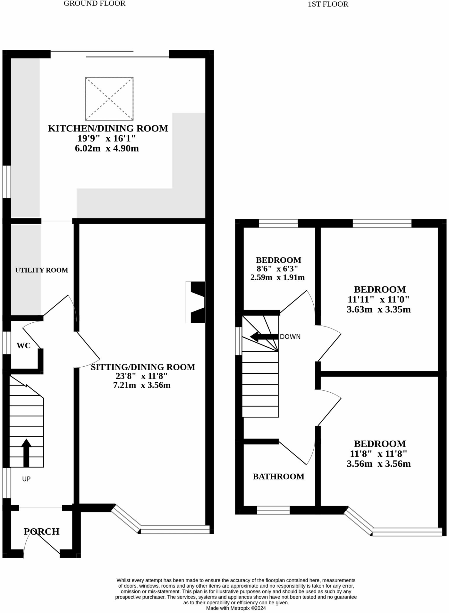
This stunning semi-detached extended residence offers an exceptional living experience for its next fortunate owners. The bespoke porch leads into a welcoming entrance hall, setting the tone for the stylish and contemporary interiors that await within. The open-plan sitting/dining room and extend...
Property Oracle says ..
This property is a 3 bedroom, 1 bathroom semi-detached house located in Oulton Broad, Lowestoft. The property has been recently extended and boasts a modern kitchen and a good-sized garden. It is conveniently located near Oulton Broad North train station (0.72km) and several primary schools, including Woods Loke Primary School (0.77km). The asking price of £320,000 is slightly higher than the average price for the area (£274,097), but the property’s modern condition and extension justify this to some extent. The average price per sqft in the area is £293, and while the sqft for this property is not provided, the overall price seems reasonable considering the improvements made.
Therefore, we give this property 7 / 10. *Disclaimer: This is our option and does constitute a recommendation or financial advice. Do your own research. *
- Price
- 7
- Condition
- 8
- Location
- 8
- Land
- 7
- Bedrooms
- 3
- Bathrooms
- 1
- Sqft (est)
- 1,146.25
The heatmap indicates the level of crime in the area. The color of the heatmap indicates the crime severity and recency.
Metrics Year-on-Year
- Average area value
- 223,471.00 £Decreased by 26.58 %
- Est sale value
- 271,661.25 £Decreased by 14.13 %
- Average area rental value
- 1,004.00 £/moDecreased by 12.47 %
- Est letting value
- 1,146.25 £/moUnchanged by 0.00 %
- Est rental Yield
- 5.39 %Increased by 19.25 %
- Crime Rate
- 3.00 %Unchanged by 0.00 %
Agent Activity
Minors & Brady created the listing.
Nearby Schools
| Name | Type | Ofsted | Distance |
|---|---|---|---|
| Woods Loke Primary School | Academy Converter | 0.77 KM | |
| The Limes Primary Academy | Free Schools | 1.38 KM | |
| Dell Primary School | Academy Sponsor Led | Requires improvement | 1.71 KM |
| East Point Academy | Academy Sponsor Led | Good | 1.78 KM |
| Benjamin Britten Academy Of Music And Mathematics | Academy Sponsor Led | Good | 2.01 KM |
Images
Nearby Streets
| Name | Average Price | Average Sqft | Distance |
|---|---|---|---|
| Burgess Close | £ 270,000 | 0 | 0.00 KM |
| Coppice Close | £ 270,000 | 0 | 0.00 KM |
| Penny Lane | £ 0 | 0 | 0.00 KM |
| Pennine Way | £ 0 | 0 | 0.00 KM |
| Nursery Close | £ 0 | 0 | 0.00 KM |
Nearby Transport
| Name | NLC | TLC | Distance |
|---|---|---|---|
| Oulton Broad North | 7273 | OUN | 0.72 KM |
| Oulton Broad South | 7274 | OUS | 1.99 KM |
| Lowestoft | 7268 | LWT | 3.35 KM |
| Somerleyton | 7320 | SYT | 8.16 KM |
Nearby Listings
| Address | Price | Type | Score | Distance |
|---|---|---|---|---|
| Higher Drive, Lowestoft | £ 320,000 | BUY | 7 / 10 | 0.00 KM |
| Marlborough Road, Lowestoft | £ 290,000 | BUY | 7 / 10 | 0.16 KM |
| Longden Avenue, Lowestoft | £ 220,000 | BUY | 6 / 10 | 0.18 KM |
| Gresham Close, Lowestoft, Suffolk, NR32 | £ 300,000 | BUY | 8 / 10 | 0.19 KM |
| Normanston Drive, NR32 2PR | £ 375,000 | BUY | Unknown | 0.20 KM |
Nearby Properties
| Address | Price | Distance |
|---|---|---|
| 20 Higher Drive | £ 192,500 | 0.08 KM |
| 3 Higher Drive | £ 152,500 | 0.08 KM |
| 18 Higher Drive | £ 140,000 | 0.08 KM |
| 22 Higher Drive | £ 165,000 | 0.08 KM |
| 43 Higher Drive | £ 120,000 | 0.08 KM |