eXp UK says ..
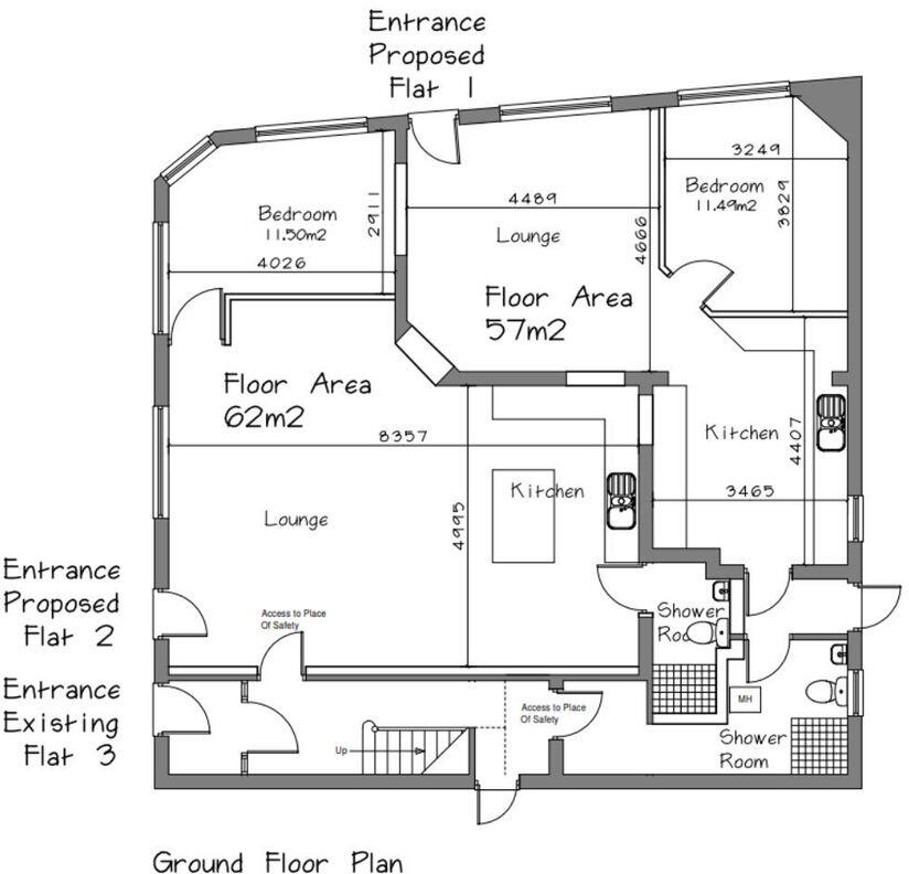
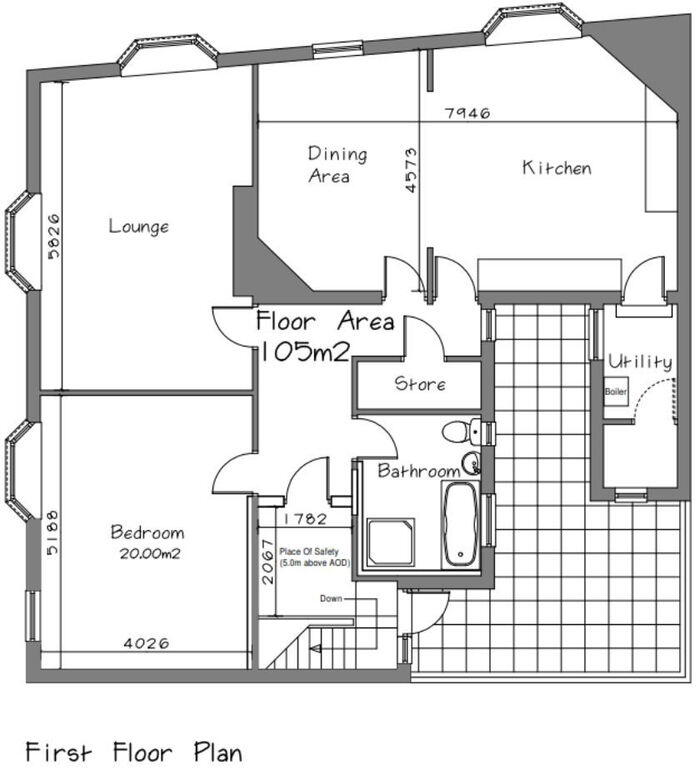
Rare Central Hull Development Opportunity – Former Pub with Planning for 3 Flats! Own a piece of Hull’s history with this locally listed building just minutes from the city centre. The top-floor flat is ready to move into, with two further flats on the ground fl...
Property Oracle says ..
This is a large flat, formerly The Wellington Inn, located in a central area of Hull. The property offers a substantial amount of space with four bedrooms and three bathrooms. However, it requires significant renovation to bring it up to modern standards. The property includes a large paved area instead of a traditional garden. The location is convenient for accessing local amenities and transportation, with several schools nearby. The asking price appears reasonable given the property’s size and potential.
Therefore, we give this property 5 / 10. *Disclaimer: This is our option and does constitute a recommendation or financial advice. Do your own research. *
- Price
- 7
- Condition
- 4
- Location
- 6
- Land
- 3
- Bedrooms
- 4
- Bathrooms
- 3
- Sqft (est)
- 1,528.37
The heatmap indicates the level of crime in the area. The color of the heatmap indicates the crime severity and recency.
Metrics Year-on-Year
- Average area value
- 487,124.00 £Increased by 94.35 %
- Est sale value
- 941,475.92 £Increased by 112.41 %
- Average area rental value
- 1,220.00 £/moIncreased by 6.46 %
- Est letting value
- 1,528.37 £/moUnchanged by 0.00 %
- Est rental Yield
- 3.01 %Decreased by 45.17 %
- Crime Rate
- 11.00 %Unchanged by 0.00 %
Agent Activity
eXp UK created the listing.
Nearby Schools
| Name | Type | Ofsted | Distance |
|---|---|---|---|
| Clifton Children'S Centre | Children's Centre Linked Site | 0.20 KM | |
| St Charles Voluntary Catholic Academy | Academy Sponsor Led | 0.23 KM | |
| Clifton Primary School | Academy Converter | 0.41 KM | |
| Tlg Hull | Other Independent School | 0.51 KM | |
| Ron Dearing Utc | University Technical College | Outstanding | 0.74 KM |
Images
Nearby Streets
| Name | Average Price | Average Sqft | Distance |
|---|---|---|---|
| Russell Street | £ 0 | 0 | 0.00 KM |
| Norfolk Street | £ 0 | 0 | 0.00 KM |
| Liddell Street | £ 0 | 0 | 0.00 KM |
| College Street | £ 0 | 0 | 0.00 KM |
| Little Reed Street | £ 0 | 0 | 0.00 KM |
Nearby Transport
| Name | NLC | TLC | Distance |
|---|---|---|---|
| Hull | 8126 | HUL | 0.61 KM |
| New Holland | 6209 | NHL | 5.58 KM |
| Cottingham | 8056 | CGM | 7.80 KM |
| Barrow Haven | 6212 | BAV | 7.93 KM |
| Goxhill | 6206 | GOX | 8.12 KM |
Nearby Listings
| Address | Price | Type | Score | Distance |
|---|---|---|---|---|
| Russell Street, Hull HU2 | £ 135,000 | BUY | 5 / 10 | 0.00 KM |
| Norfolk Street, Hull | £ 114,950 | BUY | Unknown | 0.15 KM |
| City Central, 22 Wright Street, Hull, East Yorkshire, HU2 | £ 65,000 | BUY | 5 / 10 | 0.16 KM |
| Wright Street, Hull, East Riding Of Yorkshire, HU2 | £ 1,850,000 | BUY | 4 / 10 | 0.16 KM |
| Wright Street, Hull HU2 | £ 115,000 | BUY | 5 / 10 | 0.16 KM |
Nearby Properties
| Address | Price | Distance |
|---|---|---|
| 32 Norfolk Street | £ 50,000 | 0.15 KM |
| 30 Norfolk Street | £ 90,000 | 0.15 KM |
| 4 Norfolk Street | £ 75,000 | 0.15 KM |
| 27 Blake Close | £ 83,000 | 0.16 KM |
| 23 Blake Close | £ 82,000 | 0.16 KM |