Rotherfield, Shrewsbury
MO

Rotherfield, Shrewsbury

By Monks Estate & Letting Agents

£ 350,000

Reviews

3 out of 5 stars

Monks Estate & Letting Agents says ..

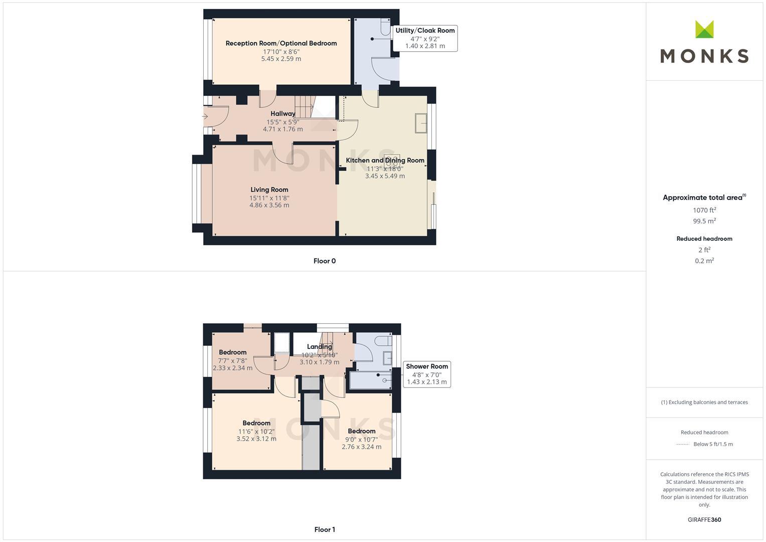
*** STAGGERING VIEWS OF HAUGHMOND HILL AND VERSATILE LIVING *** An exciting opportunity to acquire this attractively presented and much improved 3/4 bedroom detached house situated at the end of a peaceful no through road backing onto conservation land. Ideally placed for local...

Property Oracle says ..

Therefore, we give this property 7 / 10. *Disclaimer: This is our option and does constitute a recommendation or financial advice. Do your own research. *

Price
7
Condition
8
Location
7
Land
8
Bedrooms
3
Bathrooms
1

The heatmap indicates the level of crime in the area. The color of the heatmap indicates the crime severity and recency.

Metrics Year-on-Year

Average area value
243,278.00 £
Decreased by 3.15 %
from 251,196.00 £
Average area rental value
1,186.00 £/mo
Increased by 12.42 %
from 1,055.00 £/mo
Est rental Yield
5.85 %
Increased by 16.07 %
from 5.04 %
Crime Rate
4.00 %
Unchanged by 0.00 %
from 4.00 %

Agent Activity

  • Monks Estate & Letting Agents marked this listing as sold.

  • Monks Estate & Letting Agents created the listing.

Nearby Schools

NameTypeOfstedDistance
The Martin Wilson SchoolFoundation SchoolGood0.92 KM
Severndale Specialist AcademyAcademy Special ConverterGood0.93 KM
The Wilfred Owen SchoolAcademy Converter0.98 KM
Shrewsbury Cathedral Catholic Primary School And NurseryVoluntary Aided SchoolGood1.03 KM
Wilfred Owen School Cc Delivery PointChildren's Centre Linked Site1.05 KM

Images

CAM01348G0-PR0716-STILL022 V2.jpg CAM01348G0-PR0716-STILL015.jpg CAM01348G0-PR0716-STILL017.jpg CAM01348G0-PR0716-STILL009.jpg CAM01348G0-PR0716-STILL010.jpg CAM01348G0-PR0716-STILL012.jpg CAM01348G0-PR0716-STILL011.jpg CAM01348G0-PR0716-STILL013.jpg CAM01348G0-PR0716-STILL001.jpg CAM01348G0-PR0716-STILL003.jpg CAM01348G0-PR0716-STILL016.jpg CAM01348G0-PR0716-STILL018.jpg CAM01348G0-PR0716-STILL023.jpg CAM01348G0-PR0716-STILL019.jpg CAM01348G0-PR0716-STILL008.jpg CAM01348G0-PR0716-STILL021.jpg CAM01348G0-PR0716-STILL007.jpg CAM01348G0-PR0716-STILL014.jpg CAM01348G0-PR0716-STILL005.jpg CAM01348G0-PR0716-STILL002.jpg CAM01348G0-PR0716-STILL004.jpg CAM01348G0-PR0716-STILL006.jpg CAM01348G0-PR0716-STILL020.jpg Boundary.JPG

Nearby Streets

NameAverage PriceAverage SqftDistance
Whitchurch Road £ 299,99500.00 KM
Arden Close £ 000.00 KM
Sundorne Avenue £ 280,00000.00 KM
Holyoake Close £ 290,00000.00 KM
Mount Pleasant Road £ 160,00000.00 KM

Nearby Transport

NameNLCTLCDistance
Shrewsbury4387SHR2.43 KM
Yorton1351YRT9.32 KM

Nearby Listings

AddressPriceTypeScoreDistance
Rotherfield, Shrewsbury £ 350,000BUY7 / 100.00 KM
Beachley, Sundorne Heights, Shrewsbury, SY1 4SJ £ 220,000BUY6 / 100.17 KM
Sundorne Road, Shrewsbury £ 240,000BUY6 / 100.25 KM
Sundorne Road, Shrewsbury, SY1 4RT £ 375,000BUY7 / 100.26 KM
Sundorne Road, Shrewsbury, SY1 4RT £ 395,000BUY6 / 100.26 KM

Nearby Properties

AddressPriceDistance
18 Rotherfield £ 189,9950.03 KM
3 Rotherfield £ 210,0000.03 KM
4 Rotherfield £ 185,0000.03 KM
11 Rotherfield £ 185,9500.03 KM
8 Rotherfield £ 227,0000.03 KM