Taylor Gibbs says ..
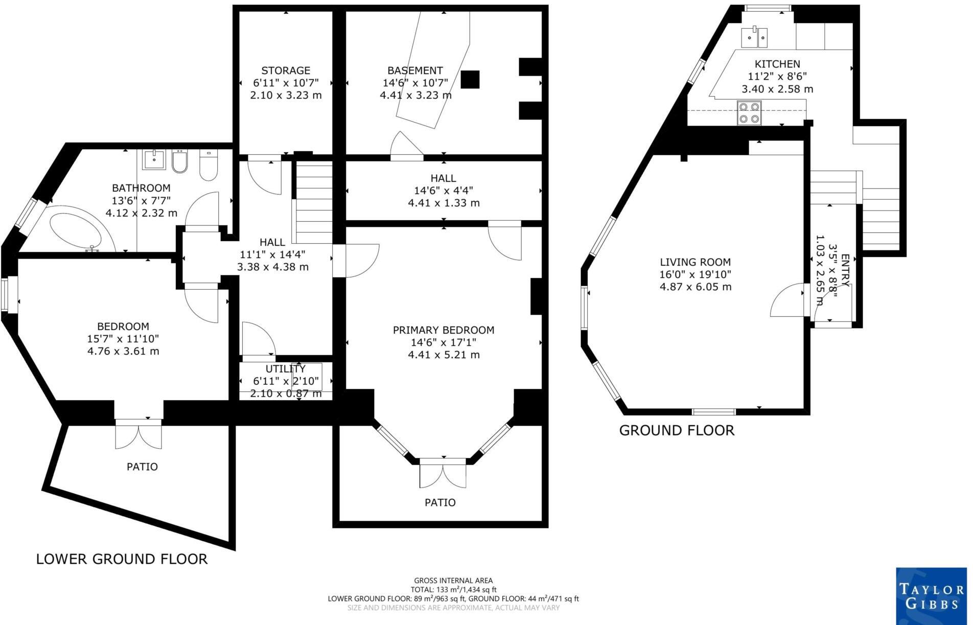
An extremely spacious two bedroom apartment occupying the raised and lower ground floors of an Edwardian conversion with two patio areas, situated within walking distance to Highgate Underground Station
Property Oracle says ..
Therefore, we give this property 7 / 10. *Disclaimer: This is our option and does constitute a recommendation or financial advice. Do your own research. *
- Price
- 7
- Condition
- 8
- Location
- 8
- Land
- 6
- Bedrooms
- 2
- Bathrooms
- 1
The heatmap indicates the level of crime in the area. The color of the heatmap indicates the crime severity and recency.
Metrics Year-on-Year
- Average area value
- 1,309,500.00 £Decreased by 14.68 %
- Average area rental value
- 2,427.00 £/moDecreased by 19.07 %
- Est rental Yield
- 2.22 %Decreased by 5.13 %
- Crime Rate
- 4.00 %Unchanged by 0.00 %
from 1,534,806.00 £
from 2,999.00 £/mo
from 2.34 %
from 4.00 %
Agent Activity
Taylor Gibbs created the listing.
Nearby Schools
| Name | Type | Ofsted | Distance |
|---|---|---|---|
| Odyssey House School | Other Independent School | 0.42 KM | |
| Whitehall Park School | Free Schools | Good | 0.42 KM |
| St Aloysius Rc College | Voluntary Aided School | Requires improvement | 0.48 KM |
| St Joseph'S Catholic Primary School | Voluntary Aided School | Outstanding | 0.78 KM |
| New River College Medical | Pupil Referral Unit | Outstanding | 0.79 KM |
Images
Nearby Streets
| Name | Average Price | Average Sqft | Distance |
|---|---|---|---|
| Stanhope Road | £ 550,000 | 0 | 0.00 KM |
| Highgate Hill | £ 0 | 0 | 0.00 KM |
| A1 | £ 0 | 0 | 0.00 KM |
| A1 | £ 0 | 0 | 0.00 KM |
| Parkland Walk | £ 1,333,333 | 0 | 0.00 KM |
Nearby Transport
| Name | NLC | TLC | Distance |
|---|---|---|---|
| Upper Holloway | 1524 | UHL | 1.38 KM |
| Crouch Hill | 7406 | CRH | 2.20 KM |
| Gospel Oak | 1409 | GPO | 2.56 KM |
| Kentish Town | 1553 | KTN | 2.61 KM |
| Hornsey | 6015 | HRN | 3.10 KM |
Nearby Listings
| Address | Price | Type | Score | Distance |
|---|---|---|---|---|
| Milton Road, Highgate, N6 | £ 700,000 | BUY | 7 / 10 | 0.00 KM |
| Milton Road, N8 | £ 495,000 | BUY | 7 / 10 | 0.00 KM |
| Milton Road, London, N6 | £ 590,000 | BUY | 7 / 10 | 0.02 KM |
| Milton Road, Highgate | £ 725,000 | BUY | Unknown | 0.05 KM |
| Milton Road, London, N6 | £ 380,000 | BUY | 5 / 10 | 0.07 KM |
Nearby Properties
| Address | Price | Distance |
|---|---|---|
| 10a Milton Road | £ 250,000 | 0.00 KM |
| 21b Milton Road | £ 438,000 | 0.00 KM |
| 23 Milton Road | £ 555,000 | 0.00 KM |
| 12c Milton Road | £ 520,000 | 0.00 KM |
| 1 Milton Road | £ 125,000 | 0.00 KM |