Kings Estates says ..
*GARDEN APARTMENT* Ground Floor Garden Apartment with Share of Freehold. Situated on the highly sought-after Callcott Road in NW6, this beautifully presented ground floor garden apartment offers an exceptional blend of period charm and modern convenience. Benefiting from a share of the freehold, ...
Property Oracle says ..
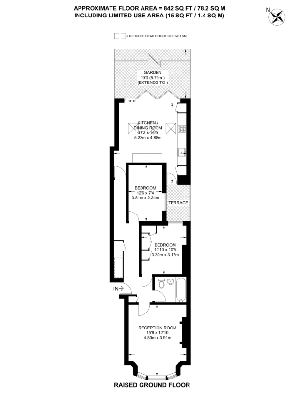
The property is a 2 bedroom apartment located on Callcott Road in Queens Park, London. It has a list price of £775,000 and is 841.74 square feet. The property benefits from a private garden. The property appears to be in excellent condition, with a recently renovated kitchen and modern fixtures and fittings throughout. The garden is well-maintained and provides a pleasant outdoor space. The location is excellent, with good transport links to central London via the Overground and Underground. There are also several highly-rated schools within a short distance of the property. This makes the property attractive to families and professionals alike. Considering the property’s excellent condition, desirable location, and inclusion of a private garden, the list price of £775,000 appears to be in line with the average price per square foot in the area (£856). While some nearby properties have sold for higher prices, these are often larger or of a different property type. The property represents good value for money in this sought-after location.
Therefore, we give this property 9 / 10. *Disclaimer: This is our option and does constitute a recommendation or financial advice. Do your own research. *
- Price
- 9
- Condition
- 9
- Location
- 10
- Land
- 8
- Bedrooms
- 2
- Bathrooms
- 1
- Sqft (est)
- 841.74
The heatmap indicates the level of crime in the area. The color of the heatmap indicates the crime severity and recency.
Metrics Year-on-Year
- Average area value
- 598,568.00 £Decreased by 21.57 %
- Est sale value
- 596,793.66 £Decreased by 22.77 %
- Average area rental value
- 2,229.00 £/moIncreased by 6.80 %
- Est letting value
- 1,683.48 £/moUnchanged by 0.00 %
- Est rental Yield
- 4.47 %Increased by 36.28 %
- Crime Rate
- 7.00 %Unchanged by 0.00 %
Agent Activity
Kings Estates created the listing.
Nearby Schools
| Name | Type | Ofsted | Distance |
|---|---|---|---|
| Christ Church Cofe Primary School | Voluntary Aided School | Good | 0.24 KM |
| Kilburn Grange Childrens Centre | Children's Centre | 0.58 KM | |
| Kilburn Grange School | Free Schools | Good | 0.64 KM |
| Salusbury Primary School | Community School | Good | 0.65 KM |
| Kingsgate Primary School | Community School | Outstanding | 0.66 KM |
Images
Nearby Streets
| Name | Average Price | Average Sqft | Distance |
|---|---|---|---|
| Gladstone Mews | £ 0 | 0 | 0.00 KM |
| Aldershot Road | £ 0 | 0 | 0.00 KM |
| Grangeway | £ 0 | 0 | 0.00 KM |
| Kilburn High Road | £ 0 | 0 | 0.00 KM |
| Carlisle Road | £ 0 | 0 | 0.00 KM |
Nearby Transport
| Name | NLC | TLC | Distance |
|---|---|---|---|
| Brondesbury | 1437 | BSY | 0.34 KM |
| Brondesbury Park | 1438 | BSP | 0.84 KM |
| Queens Park (London) | 1419 | QPW | 0.94 KM |
| Kilburn High Road | 1415 | KBN | 1.27 KM |
| West Hampstead Thameslink | 1525 | WHP | 1.39 KM |
Nearby Listings
| Address | Price | Type | Score | Distance |
|---|---|---|---|---|
| Callcott Road, Queens Park | £ 775,000 | BUY | 9 / 10 | 0.00 KM |
| Flat B, 34 Callcott Road, Kilburn, London NW6 7EA | £ 220,000 | BUY | 4 / 10 | 0.00 KM |
| Streatley Road, Brondesbury, London, NW6 | £ 1,400,000 | BUY | 5 / 10 | 0.06 KM |
| Callcott Road, Queens Park, London NW6 | £ 1,750,000 | BUY | 7 / 10 | 0.07 KM |
| Callcott Road, Brondesbury, NW6 | £ 950,000 | BUY | 5 / 10 | 0.07 KM |
Nearby Properties
| Address | Price | Distance |
|---|---|---|
| 18 Callcott Road | £ 230,000 | 0.00 KM |
| 38a Callcott Road | £ 515,000 | 0.00 KM |
| 40 Callcott Road | £ 1,820,000 | 0.00 KM |
| 36 Callcott Road | £ 1,730,000 | 0.02 KM |
| 32 Callcott Road | £ 1,125,000 | 0.02 KM |