Victoria Way, Formby
AB

Victoria Way, Formby

By Abode

£ 900,000

Reviews

3 out of 5 stars

Abode says ..

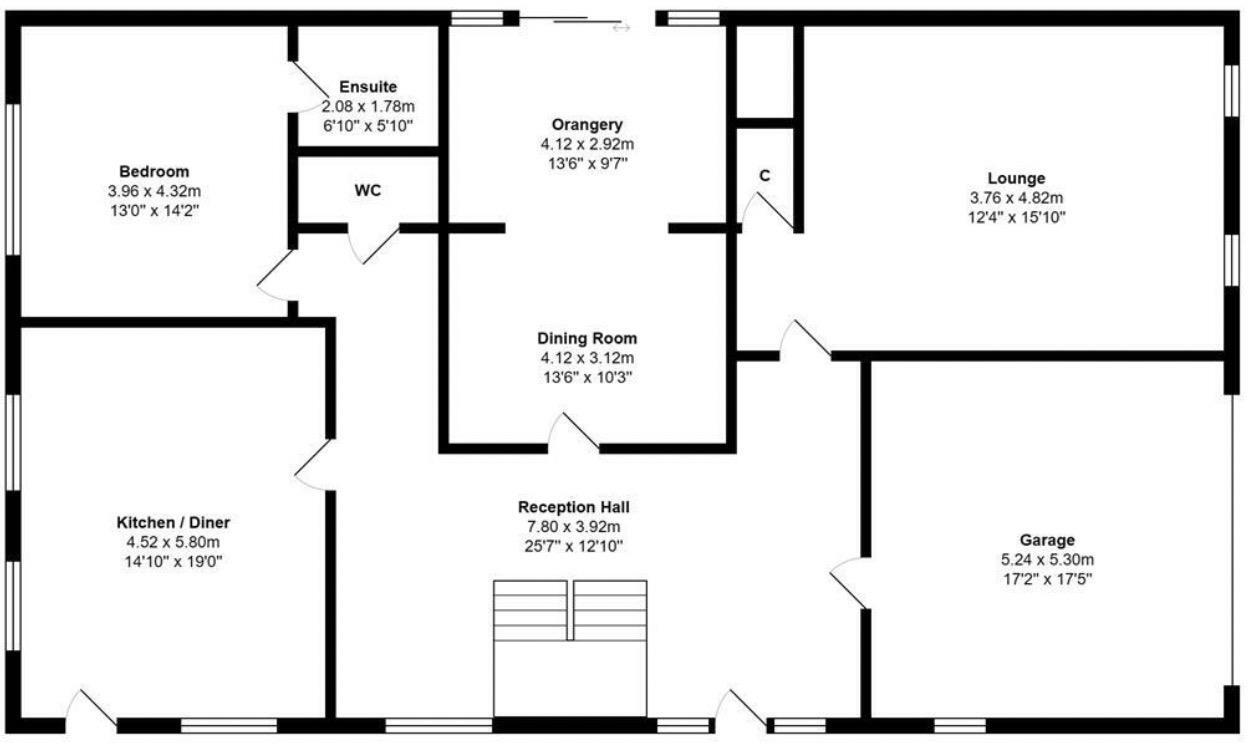
Victoria Way, Formby. Located in one of Formby’s most prestigious Freshfield addresses, this spacious family home is ideally positioned close to the train station, Formby Village, the coast, and the Pinewoods. The property features a gated driveway providing parking for several vehicles ...

Property Oracle says ..

The property is a detached house in Formby, Merseyside. It has 5 bedrooms and 2 bathrooms. The property is in need of significant renovation. The property has a large garden and a driveway. The property is located in a desirable area with good transport links and access to schooling. The property is listed for £900,000, which is lower than the average price in the area, but this is justified by the condition of the property.

Therefore, we give this property 6 / 10. *Disclaimer: This is our option and does constitute a recommendation or financial advice. Do your own research. *

Price
7
Condition
3
Location
7
Land
7
Bedrooms
5
Bathrooms
2
Sqft (est)
611.61

The heatmap indicates the level of crime in the area. The color of the heatmap indicates the crime severity and recency.

Metrics Year-on-Year

Average area value
971,667.00 £
Increased by 80.27 %
from 539,015.00 £
Est sale value
399,381.33 £
Increased by 79.89 %
from 222,014.43 £
Average area rental value
4,667.00 £/mo
Increased by 20.81 %
from 3,863.00 £/mo
Est letting value
1,834.83 £/mo
Increased by 50.00 %
from 1,223.22 £/mo
Est rental Yield
5.76 %
Decreased by 33.02 %
from 8.60 %
Crime Rate
27.00 %
Unchanged by 0.00 %
from 27.00 %

Agent Activity

  • Abode created the listing.

Nearby Schools

NameTypeOfstedDistance
Formby High SchoolAcademy Converter0.81 KM
Woodlands Primary SchoolCommunity SchoolGood1.24 KM
St Jerome'S Catholic Primary SchoolVoluntary Aided SchoolGood1.81 KM
St Luke'S Church Of England Primary SchoolVoluntary Controlled SchoolGood1.85 KM
Trinity St Peter'S Cofe Primary SchoolVoluntary Aided SchoolGood1.92 KM

Images

DSC08249-HDR.jpg DSC08199-HDR.jpg DSC08209-HDR.jpg DSC08214-HDR.jpg DSC08219-HDR.jpg DSC08224-HDR.jpg DSC08229-HDR.jpg DSC08234-HDR.jpg DSC08239-HDR.jpg DSC08244-HDR.jpg DSC08259-HDR.jpg DSC08189-HDR.jpg DSC08194-HDR.jpg DSC08274-HDR.jpg DSC08254-HDR.jpg DSC08264-HDR.jpg DSC08269-HDR.jpg DSC08279-HDR.jpg

Nearby Streets

NameAverage PriceAverage SqftDistance
Acorn Gardens £ 000.00 KM
The Copse £ 000.00 KM
Queens Avenue £ 525,00000.00 KM
Saint Peter's Close £ 000.00 KM
Fisherman's Path £ 1,950,00000.00 KM

Nearby Transport

NameNLCTLCDistance
Freshfield2355FRE0.13 KM
Formby2354FBY1.43 KM
Hightown2356HTO4.89 KM
Ainsdale2350ANS5.21 KM
Hall Road2229HLR8.06 KM

Nearby Listings

AddressPriceTypeScoreDistance
Victoria Way, Formby £ 900,000BUY6 / 100.00 KM
College Avenue, Formby, L37 £ 1,200,000BUY7 / 100.08 KM
College Avenue, Formby, Liverpool, L37 £ 1,000,000BUYUnknown0.14 KM
Victoria Road, Formby, Liverpool, Merseyside, L37 £ 165,000BUY5 / 100.19 KM
Freshfield Road, Formby, Liverpool, L37 £ 2,250,000BUYUnknown0.27 KM

Nearby Properties

AddressPriceDistance
7 Victoria Way £ 600,0000.06 KM
4 Victoria Way £ 580,0000.06 KM
1 Victoria Way £ 750,0000.06 KM
3b College Path £ 677,5000.16 KM
60 Victoria Road £ 749,9500.17 KM