Pevensey Road, Brighton
By Kendrick Property Services
£ 325,000
Reviews
2 out of 5 stars
Kendrick Property Services says ..
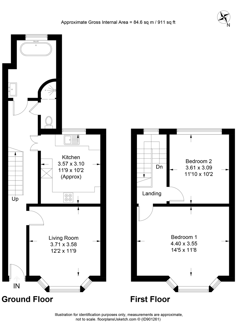
Kendrick Property Services are delighted to offer for sale this versatile 2 double bedroom ground and first floor maisonette that occupies a prime central location, just off Lewes Road and therefore within immediate proximity of all amenities, including bus routes to the seafront and City centre....
Property Oracle says ..
This 2-bedroom maisonette in Brighton’s Hanover and Elm Grove area presents a mixed bag. Positively, its location near good schools and convenient transportation links is a major plus. The proximity to Lewes Road provides excellent access to amenities and public transit, making it suitable for families or commuters. The bathroom appears to have been recently updated, while the kitchen is functional if dated. However, the property shows signs of needing some cosmetic upgrades throughout, including repainting and flooring updates in several rooms. The exterior scaffolding might suggest current renovations or recent work. Noteworthy is the lack of any outdoor space, a significant drawback for many buyers. The price of £325,000 appears reasonable compared to other properties in the immediate area, but not exceptionally good value given the age and minor refurbishment needs. Overall, this property offers good potential, especially for buyers who are comfortable undertaking minor improvements to suit their tastes and are prioritising location and transport links.
Therefore, we give this property 5 / 10. *Disclaimer: This is our option and does constitute a recommendation or financial advice. Do your own research. *
- Price
- 7
- Condition
- 6
- Location
- 7
- Land
- 1
- Bedrooms
- 2
- Bathrooms
- 1
- Sqft (est)
- 911.00
The heatmap indicates the level of crime in the area. The color of the heatmap indicates the crime severity and recency.
Metrics Year-on-Year
- Average area value
- 485,964.00 £Increased by 6.04 %
- Est sale value
- 552,977.00 £Increased by 26.20 %
- Average area rental value
- 2,153.00 £/moIncreased by 8.63 %
- Est letting value
- 1,822.00 £/moUnchanged by 0.00 %
- Est rental Yield
- 5.32 %Increased by 2.50 %
- Crime Rate
- 10.00 %Unchanged by 0.00 %
Agent Activity
Kendrick Property Services created the listing.
Nearby Schools
| Name | Type | Ofsted | Distance |
|---|---|---|---|
| Fairlight Primary School | Community School | Good | 0.02 KM |
| St Martin'S Cofe Primary School | Voluntary Aided School | Good | 0.14 KM |
| Elm Grove Primary School | Community School | Good | 0.58 KM |
| St Joseph'S Catholic Primary School | Voluntary Aided School | Good | 0.77 KM |
| Downs Infant School | Community School | Outstanding | 0.95 KM |
Images
Nearby Streets
| Name | Average Price | Average Sqft | Distance |
|---|---|---|---|
| Saint Leonard's Road | £ 550,000 | 0 | 0.00 KM |
| St Martin's Place | £ 0 | 0 | 0.00 KM |
| Saint Paul's Street | £ 220,000 | 0 | 0.00 KM |
| St Paul's Street | £ 0 | 0 | 0.00 KM |
| Brighton Mews | £ 0 | 0 | 0.00 KM |
Nearby Transport
| Name | NLC | TLC | Distance |
|---|---|---|---|
| London Road (Brighton) | 5281 | LRB | 1.26 KM |
| Moulsecoomb | 5312 | MCB | 1.47 KM |
| Brighton | 5268 | BTN | 1.90 KM |
| Preston Park | 5285 | PRP | 3.52 KM |
| Hove | 5273 | HOV | 5.03 KM |
Nearby Listings
| Address | Price | Type | Score | Distance |
|---|---|---|---|---|
| Flat 145 Lewes Road Brighton BN2 3LG | £ 249,950 | BUY | 5 / 10 | 0.05 KM |
| Fairlight Place, Brighton | £ 200,000 | BUY | Unknown | 0.06 KM |
| Lewes Road, Brighton, East Sussex, BN2 | £ 249,950 | BUY | 6 / 10 | 0.07 KM |
| Melbourne Street, BN2 | £ 472,500 | BUY | 7 / 10 | 0.07 KM |
| St. Leonards Road, Brighton BN2 3AJ | £ 339,950 | BUY | 7 / 10 | 0.07 KM |
Nearby Properties
| Address | Price | Distance |
|---|---|---|
| 7 Pevensey Road | £ 149,000 | 0.01 KM |
| 16a Pevensey Road | £ 68,000 | 0.01 KM |
| 12 Pevensey Road | £ 490,000 | 0.01 KM |
| 1 Pevensey Road | £ 248,250 | 0.01 KM |
| 14 Pevensey Road | £ 319,000 | 0.01 KM |