Haven Close, Swanley, Kent
By Langford Russell
£ 425,000
Reviews
3 out of 5 stars
Langford Russell says ..
A stone's throw away from the Swanley town centre, Langford Russell welcome this three bedroom extended semi-detached bungalow to the sales market. Offered to the market CHAIN FREE! In a fantastic location for all local amenities, some to include – White Oak Leisure C...
Property Oracle says ..
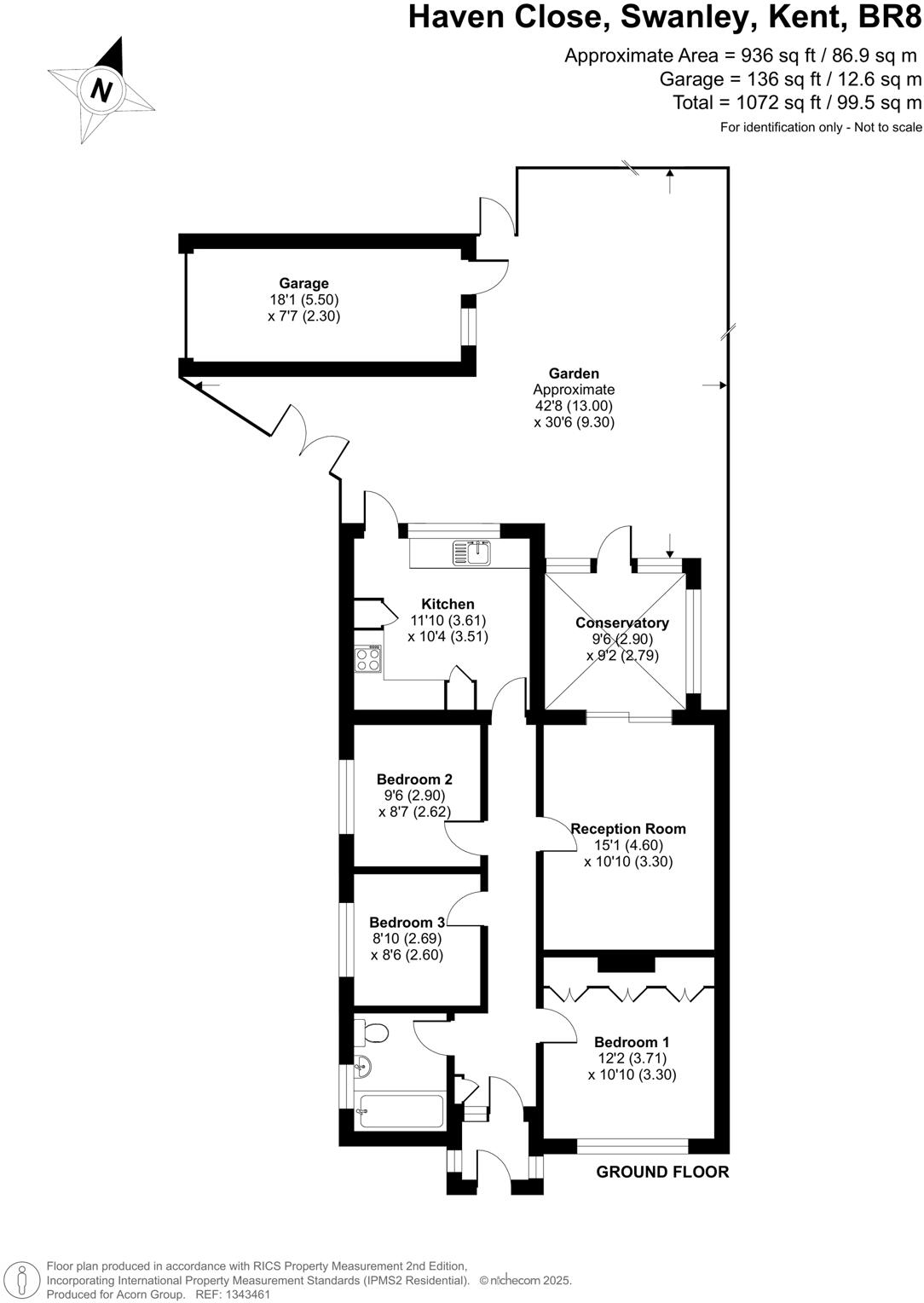
This is a three-bedroom semi-detached property located in Haven Close, Swanley, Kent. The property offers 1,071.01 sqft of living space and sits on a plot of 139.93 sqft. It features one bathroom, a garden, and is conveniently located near schools and transportation links. While the property is in a habitable condition, it would benefit from some modernisation to enhance its appeal and value. The property is listed with Langford Russell.
Therefore, we give this property 6 / 10. *Disclaimer: This is our option and does constitute a recommendation or financial advice. Do your own research. *
- Price
- 7
- Condition
- 5
- Location
- 7
- Land
- 6
- Bedrooms
- 3
- Bathrooms
- 1
- Sqft (est)
- 1,071.01
- Lot (est)
- 139.93
The heatmap indicates the level of crime in the area. The color of the heatmap indicates the crime severity and recency.
Metrics Year-on-Year
- Average area value
- 1,145,000.00 £Increased by 51.85 %
- Est sale value
- 854,665.98 £Increased by 52.58 %
- Average area rental value
- 1,717.00 £/moDecreased by 6.07 %
- Est letting value
- 1,071.01 £/moUnchanged by 0.00 %
- Est rental Yield
- 1.80 %Decreased by 38.14 %
- Crime Rate
- 1.00 %Unchanged by 0.00 %
Agent Activity
Langford Russell created the listing.
Nearby Schools
| Name | Type | Ofsted | Distance |
|---|---|---|---|
| St Bartholomew'S Catholic Primary School, Swanley | Voluntary Aided School | Good | 0.62 KM |
| Swanley Children'S Centre | Children's Centre | 0.83 KM | |
| Horizon Primary Academy | Academy Sponsor Led | Good | 0.83 KM |
| Downsview Community Primary School | Community School | Good | 0.90 KM |
| High Firs Primary School | Community School | Good | 1.16 KM |
Images
Nearby Streets
| Name | Average Price | Average Sqft | Distance |
|---|---|---|---|
| Alexandra Close | £ 350,000 | 0 | 0.00 KM |
| New Barn Road | £ 0 | 0 | 0.00 KM |
| Pemberton Gardens | £ 400,000 | 0 | 0.00 KM |
| Sycamore Drive | £ 0 | 0 | 0.00 KM |
| Montague Place | £ 425,000 | 0 | 0.00 KM |
Nearby Transport
| Name | NLC | TLC | Distance |
|---|---|---|---|
| Swanley | 5075 | SAY | 1.43 KM |
| Eynsford | 5065 | EYN | 5.13 KM |
| Crayford | 5100 | CRY | 5.22 KM |
| Bexley | 5093 | BXY | 5.54 KM |
| Farningham Road | 5105 | FNR | 6.21 KM |
Nearby Listings
| Address | Price | Type | Score | Distance |
|---|---|---|---|---|
| Haven Close, Swanley, Kent | £ 425,000 | BUY | 6 / 10 | 0.00 KM |
| Haven Close, Swanley, BR8 | £ 400,000 | BUY | 5 / 10 | 0.00 KM |
| Kettlewell Court, Swanley | £ 395,000 | BUY | 6 / 10 | 0.06 KM |
| Haven Close, Swanley, Kent, BR8 | £ 450,000 | BUY | 6 / 10 | 0.07 KM |
| Haven Close, Swanley, Kent, BR8 | £ 475,000 | BUY | 7 / 10 | 0.08 KM |
Nearby Properties
| Address | Price | Distance |
|---|---|---|
| 15 Haven Close | £ 216,000 | 0.01 KM |
| 35 Haven Close | £ 297,500 | 0.01 KM |
| 33 Haven Close | £ 286,500 | 0.01 KM |
| 39 Haven Close | £ 360,000 | 0.01 KM |
| 37 Haven Close | £ 237,500 | 0.01 KM |