Acorn says ..
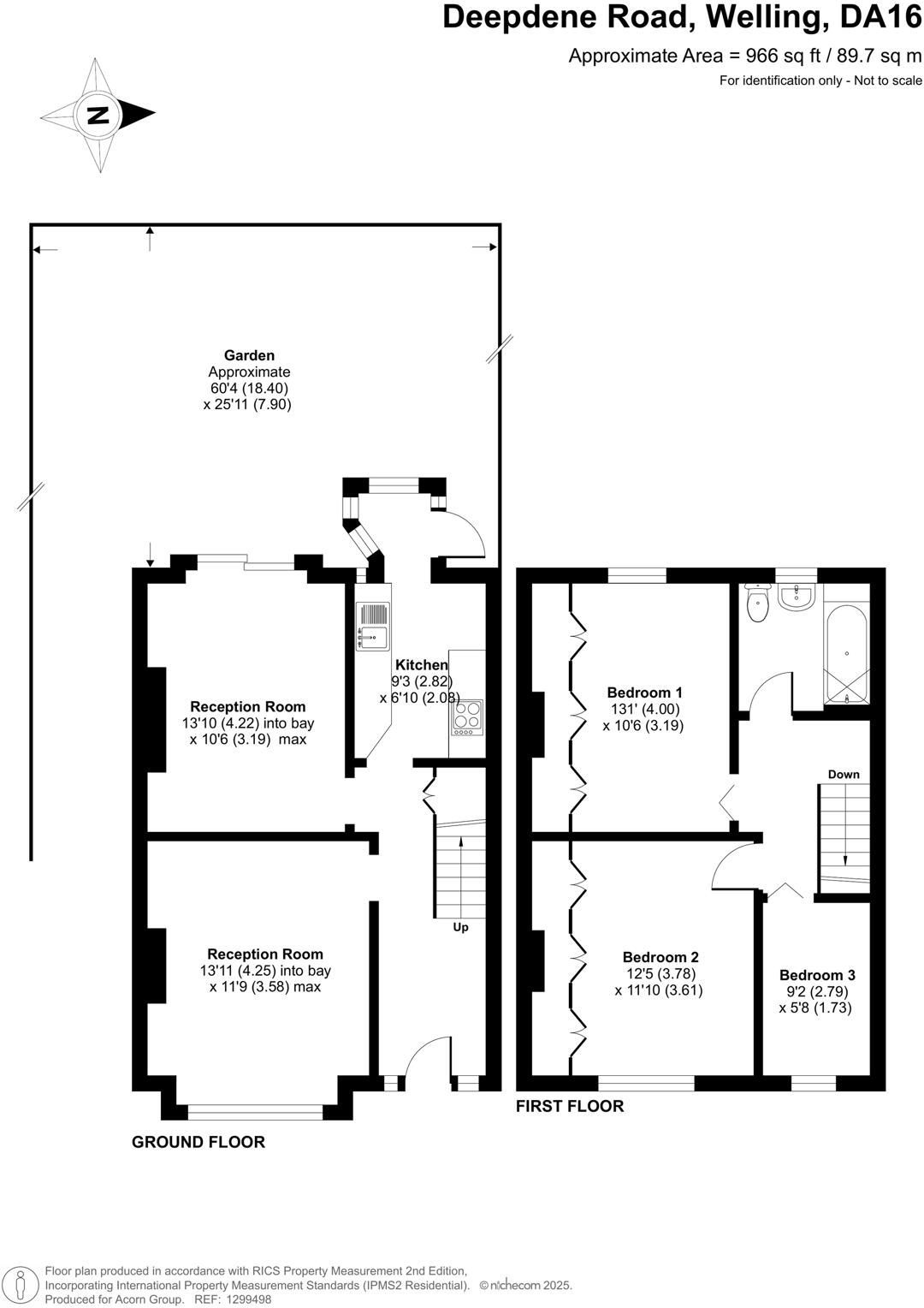
Acorn are delighted to welcome to the market this three bedroom Semi-Detached family home situated on a popular road in Welling. Requiring modernisation throughout but offering extensive scope for extension (subject to the necessary planning consents) this would make a great family hom...
Property Oracle says ..
Therefore, we give this property 6 / 10. *Disclaimer: This is our option and does constitute a recommendation or financial advice. Do your own research. *
- Price
- 6
- Condition
- 6
- Location
- 8
- Land
- 7
- Bedrooms
- 3
- Bathrooms
- 1
- Sqft (est)
- 966.00
- Lot (est)
- 1,552.58
The heatmap indicates the level of crime in the area. The color of the heatmap indicates the crime severity and recency.
Metrics Year-on-Year
- Average area value
- 396,111.00 £Decreased by 12.15 %
- Est sale value
- 384,468.00 £Decreased by 3.86 %
- Average area rental value
- 1,783.00 £/moDecreased by 6.60 %
- Est letting value
- 966.00 £/moUnchanged by 0.00 %
- Est rental Yield
- 5.40 %Increased by 6.30 %
- Crime Rate
- 17.00 %Unchanged by 0.00 %
from 450,895.00 £
from 399,924.00 £
from 1,909.00 £/mo
from 966.00 £/mo
from 5.08 %
from 17.00 %
Agent Activity
Acorn marked this listing as sold.
Acorn created the listing.
Nearby Schools
| Name | Type | Ofsted | Distance |
|---|---|---|---|
| St Stephen'S Catholic Primary School | Voluntary Aided School | Outstanding | 0.18 KM |
| Hook Lane Primary School | Academy Converter | 0.41 KM | |
| Danson Primary School | Community School | Good | 0.71 KM |
| East Wickham Primary Academy | Academy Converter | Good | 0.72 KM |
| Bexley Grammar School | Academy Converter | 0.80 KM |
Images
Nearby Streets
| Name | Average Price | Average Sqft | Distance |
|---|---|---|---|
| Coton Road | £ 0 | 0 | 0.00 KM |
| Lime Tree terrace | £ 0 | 0 | 0.00 KM |
| New Road | £ 450,000 | 0 | 0.00 KM |
| Newton Road | £ 660,000 | 0 | 0.00 KM |
| Yew Tree Close | £ 455,000 | 0 | 0.00 KM |
Nearby Transport
| Name | NLC | TLC | Distance |
|---|---|---|---|
| Welling | 5128 | WLI | 0.48 KM |
| Falconwood | 5137 | FCN | 2.98 KM |
| Bexleyheath | 5094 | BXH | 3.08 KM |
| Sidcup | 5125 | SID | 3.32 KM |
| Abbey Wood | 5131 | ABW | 3.50 KM |
Nearby Listings
| Address | Price | Type | Score | Distance |
|---|---|---|---|---|
| Deepdene Road, Welling, Kent, DA16 | £ 675,000 | BUY | 7 / 10 | 0.00 KM |
| Deepdene Road, Welling | £ 450,000 | BUY | 6 / 10 | 0.00 KM |
| Woodville Grove, Welling, Kent | £ 90,000 | BUY | 4 / 10 | 0.13 KM |
| Woodville Grove, Welling, DA16 | £ 205,000 | BUY | 7 / 10 | 0.16 KM |
| Woodville Grove, Welling, DA16 | £ 140,000 | BUY | 5 / 10 | 0.16 KM |
Nearby Properties
| Address | Price | Distance |
|---|---|---|
| 6 Deepdene Road | £ 265,000 | 0.01 KM |
| 22 Deepdene Road | £ 265,000 | 0.01 KM |
| 25 Edmund Road | £ 238,000 | 0.12 KM |
| 19 Edmund Road | £ 260,000 | 0.12 KM |
| 14 Edmund Road | £ 338,500 | 0.12 KM |