Dundridge Lane, Bristol
By Parks Estate Agents
£ 159,000
Reviews
3 out of 5 stars
Parks Estate Agents says ..
Parks Estate Agents are delighted to offer to the market this lovely and well proportioned one bedroom flat in the popular BS5 postcode. Situated in close proximity of the wonderful Troopers Hill Nature Reserve, Conham River Park with its stunning woodland walks and coffee van, and las...
Property Oracle says ..
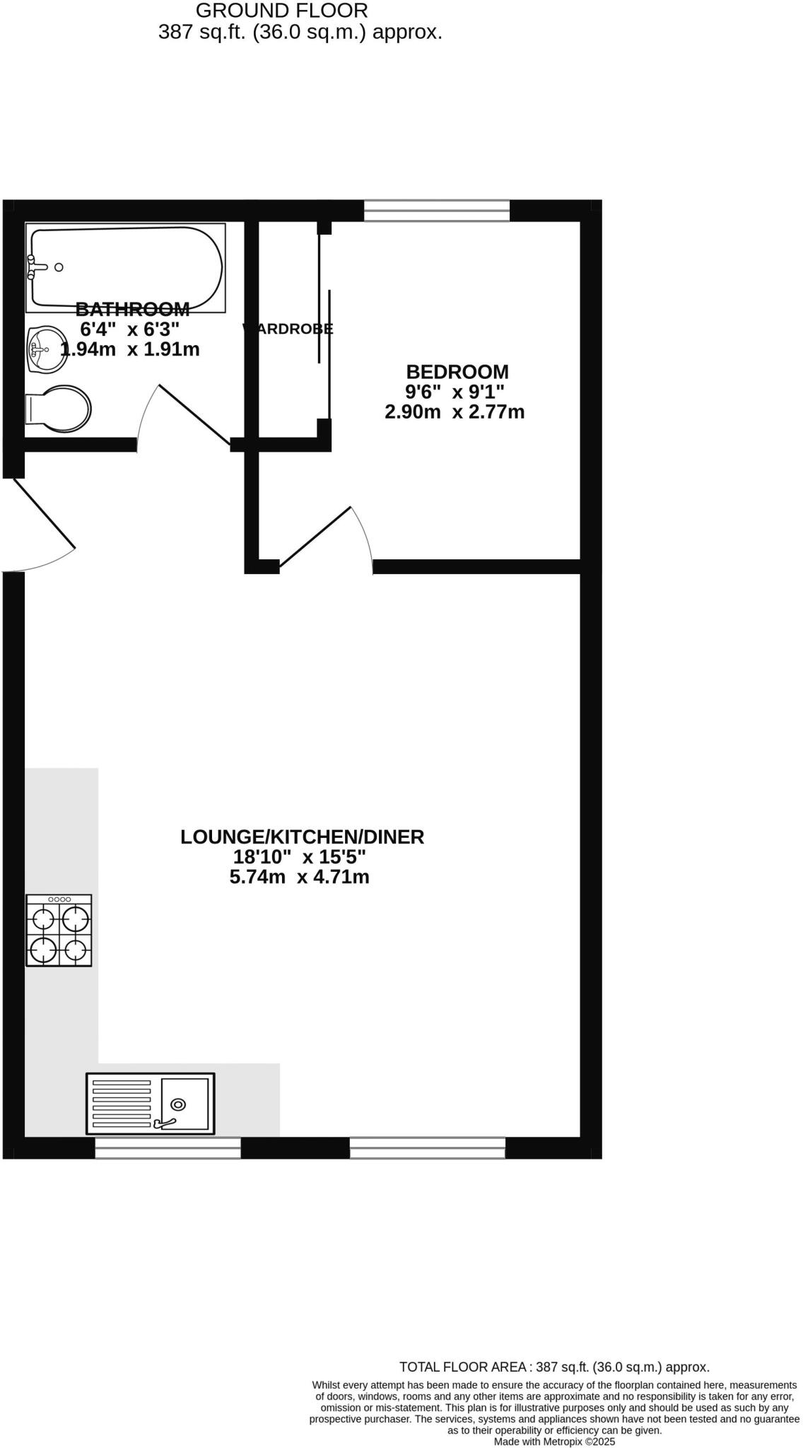
The property is a one bedroom, one bathroom detached house located on Dundridge Lane in Bristol. The list price is £159,000. The property has a plot size of 387 sqft. The property appears to be in good condition, with a modern kitchen and bathroom. The interior is well-presented and shows no obvious signs of disrepair. There is a small garden area, which is relatively small in size. The property’s location is within reasonable proximity to several schools, with Air Balloon Hill Primary School being the closest at 0.82km. Transportation links appear to be a moderate distance away, with the nearest train station (Lawrence Hill) being 3.55km away. Compared to other properties in the area, the list price of £159,000 is significantly lower than the average price of £569,667. However, it’s important to note that the average price per sqft in the area is £577, while this property is listed at a much lower price per sqft. The lower price might be justified by the smaller size of the property and the plot compared to other properties in the area. The lack of sqft data for nearby listings makes a precise comparison difficult.
Therefore, we give this property 6 / 10. *Disclaimer: This is our option and does constitute a recommendation or financial advice. Do your own research. *
- Price
- 7
- Condition
- 8
- Location
- 6
- Land
- 3
- Bedrooms
- 1
- Bathrooms
- 1
- Sqft (est)
- 356.00
- Lot (est)
- 387.00
The heatmap indicates the level of crime in the area. The color of the heatmap indicates the crime severity and recency.
Metrics Year-on-Year
- Average area value
- 404,000.00 £Increased by 10.37 %
- Est sale value
- 199,004.00 £Increased by 43.33 %
- Average area rental value
- 1,400.00 £/moIncreased by 22.91 %
- Est letting value
- 356.00 £/moUnchanged by 0.00 %
- Est rental Yield
- 4.16 %Increased by 11.53 %
- Crime Rate
- 3.00 %Unchanged by 0.00 %
Agent Activity
Parks Estate Agents created the listing.
Nearby Schools
| Name | Type | Ofsted | Distance |
|---|---|---|---|
| Air Balloon Hill Primary School | Community School | Good | 0.82 KM |
| The Kingfisher School | Academy Sponsor Led | Requires improvement | 1.22 KM |
| St Anne'S Park Children'S Centre | Children's Centre Linked Site | 1.22 KM | |
| Summerhill Infant School | Community School | Good | 1.40 KM |
| Summerhill Academy | Academy Converter | Requires improvement | 1.45 KM |
Images
Nearby Streets
| Name | Average Price | Average Sqft | Distance |
|---|---|---|---|
| Batten's Lane | £ 305,000 | 0 | 0.00 KM |
| Firtree Lane | £ 484,211 | 0 | 0.00 KM |
| Portside Close | £ 0 | 0 | 0.00 KM |
| Troopers' Hill Road | £ 350,000 | 0 | 0.00 KM |
| Conham Hill | £ 0 | 0 | 0.00 KM |
Nearby Transport
| Name | NLC | TLC | Distance |
|---|---|---|---|
| Lawrence Hill | 3225 | LWH | 3.55 KM |
| Stapleton Road | 3250 | SRD | 4.06 KM |
| Bristol Temple Meads | 3231 | BRI | 5.36 KM |
| Keynsham | 3237 | KYN | 5.60 KM |
| Montpelier | 3203 | MTP | 6.43 KM |
Nearby Listings
| Address | Price | Type | Score | Distance |
|---|---|---|---|---|
| Valma Court, Dundridge Lane, St. George | £ 180,000 | BUY | Unknown | 0.01 KM |
| Dundridge Lane, St George, Bristol, Bs5 8SU | £ 315,000 | BUY | Unknown | 0.05 KM |
| Dundridge Lane, St George, Bristol, BS5 8SX | £ 300,000 | BUY | 6 / 10 | 0.06 KM |
| Dundridge Lane, Troopers Hill | £ 350,000 | BUY | 6 / 10 | 0.07 KM |
| Dundridge Gardens, Bristol | £ 350,000 | BUY | 6 / 10 | 0.09 KM |
Nearby Properties
| Address | Price | Distance |
|---|---|---|
| 192 Dundridge Lane | £ 395,000 | 0.01 KM |
| 198 Dundridge Lane | £ 347,000 | 0.01 KM |
| 200 Dundridge Lane | £ 311,000 | 0.01 KM |
| 176 Dundridge Lane | £ 246,000 | 0.01 KM |
| 186 Dundridge Lane | £ 376,000 | 0.01 KM |