Wheatcroft Grove, Rainham, Gillingham, ME8
By Haus Estate Agents
£ 315,000
Reviews
3 out of 5 stars
Haus Estate Agents says ..
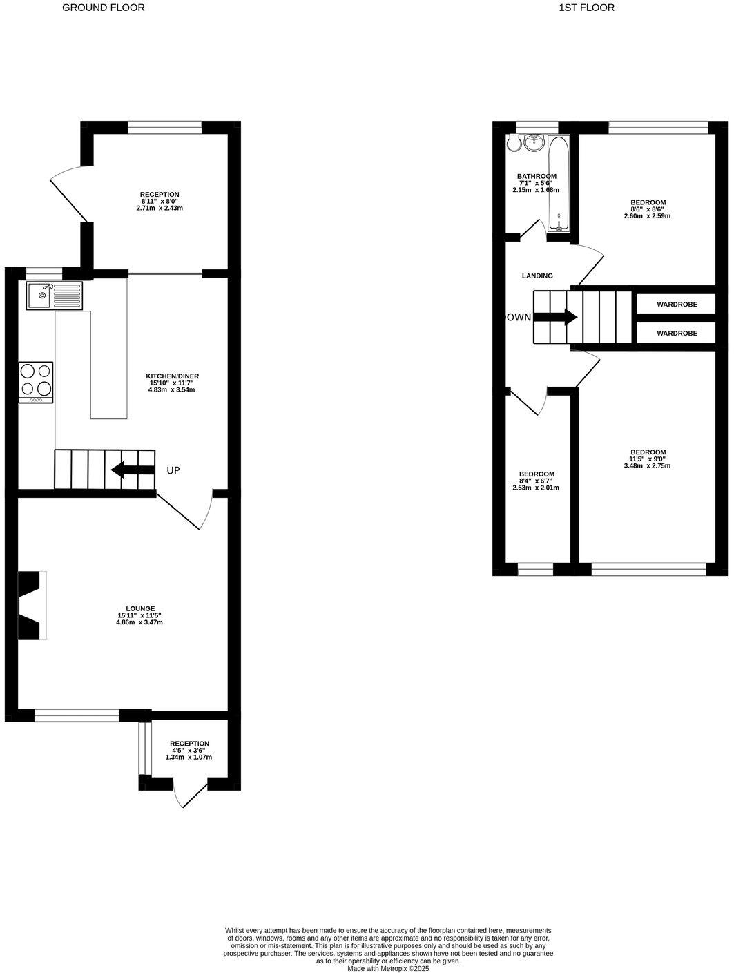
This extended three-bedroom mid-terrace home is set in a friendly, well-established residential area, perfect for families, first-time buyers, or anyone looking for a bit more space in a great location. Step inside and you’ll find a bright entrance porch leading into a spacious living ro...
Property Oracle says ..
This three-bedroom terraced house is located in Rainham, Kent. The property benefits from a modern kitchen and a good-sized rear garden with a shed and gated access. Rainham offers good transport links via Rainham train station, providing access to London and other parts of Kent. There are also several schools nearby, including primary and junior schools. The property itself appears to be well-maintained and in good condition. While the plot size is not specified, the garden is visible in the images and appears to be of a reasonable size for a terraced property in this area. The list price of £315,000 is slightly below the average price for the area (£409,091), however, the average square footage is higher (924 sqft vs 766 sqft). Considering the condition, location, and available amenities, the price seems reasonable.
Therefore, we give this property 7 / 10. *Disclaimer: This is our option and does constitute a recommendation or financial advice. Do your own research. *
- Price
- 7
- Condition
- 8
- Location
- 7
- Land
- 7
- Bedrooms
- 3
- Bathrooms
- 1
- Sqft (est)
- 766.18
The heatmap indicates the level of crime in the area. The color of the heatmap indicates the crime severity and recency.
Metrics Year-on-Year
- Average area value
- 405,000.00 £Increased by 14.70 %
- Est sale value
- 304,173.46 £Increased by 5.03 %
- Average area rental value
- 1,825.00 £/moIncreased by 1.45 %
- Est letting value
- 766.18 £/moUnchanged by 0.00 %
- Est rental Yield
- 5.41 %Decreased by 11.46 %
- Crime Rate
- 12.00 %Unchanged by 0.00 %
Agent Activity
Haus Estate Agents created the listing.
Nearby Schools
| Name | Type | Ofsted | Distance |
|---|---|---|---|
| Miers Court Primary School | Academy Converter | 0.27 KM | |
| Miers Court Children'S Centre | Children's Centre | 0.35 KM | |
| St Margaret'S Church Of England Junior School | Academy Converter | Good | 0.60 KM |
| St Margaret'S Infant School | Academy Converter | Good | 0.60 KM |
| Riverside Primary School | Academy Converter | Good | 1.38 KM |
Images
Nearby Streets
| Name | Average Price | Average Sqft | Distance |
|---|---|---|---|
| Tavistock Close | £ 400,000 | 0 | 0.00 KM |
| Endeavour Drive | £ 0 | 0 | 0.00 KM |
| Thames Avenue | £ 0 | 0 | 0.00 KM |
| Beata Gardens | £ 525,000 | 0 | 0.00 KM |
| Sunderland Drive | £ 0 | 0 | 0.00 KM |
Nearby Transport
| Name | NLC | TLC | Distance |
|---|---|---|---|
| Rainham (Kent) | 5177 | RAI | 0.91 KM |
| Newington | 5175 | NGT | 6.65 KM |
| Gillingham (Kent) | 5169 | GLM | 7.21 KM |
| Bearsted | 5091 | BSD | 9.83 KM |
| Chatham | 5199 | CTM | 9.97 KM |
Nearby Listings
| Address | Price | Type | Score | Distance |
|---|---|---|---|---|
| Wheatcroft Grove, Rainham, Gillingham, ME8 | £ 315,000 | BUY | 7 / 10 | 0.00 KM |
| Wheatcroft Grove, Gillingham, ME8 9JE | £ 325,000 | BUY | Unknown | 0.00 KM |
| Popular position in Rainham - Wheatcroft Grove | £ 300,000 | BUY | 7 / 10 | 0.00 KM |
| Wheatcroft Grove, Gillingham | £ 315,000 | BUY | 7 / 10 | 0.07 KM |
| Spacious 3, 4 or 5 bedroom Townhouse close to Rainham Town Centre | £ 280,000 | BUY | 7 / 10 | 0.10 KM |
Nearby Properties
| Address | Price | Distance |
|---|---|---|
| 58 Wheatcroft Grove | £ 185,000 | 0.01 KM |
| 108 Wheatcroft Grove | £ 250,000 | 0.01 KM |
| 75 Wheatcroft Grove | £ 178,500 | 0.01 KM |
| 92 Wheatcroft Grove | £ 230,000 | 0.01 KM |
| 79 Wheatcroft Grove | £ 205,000 | 0.01 KM |