eXp UK says ..
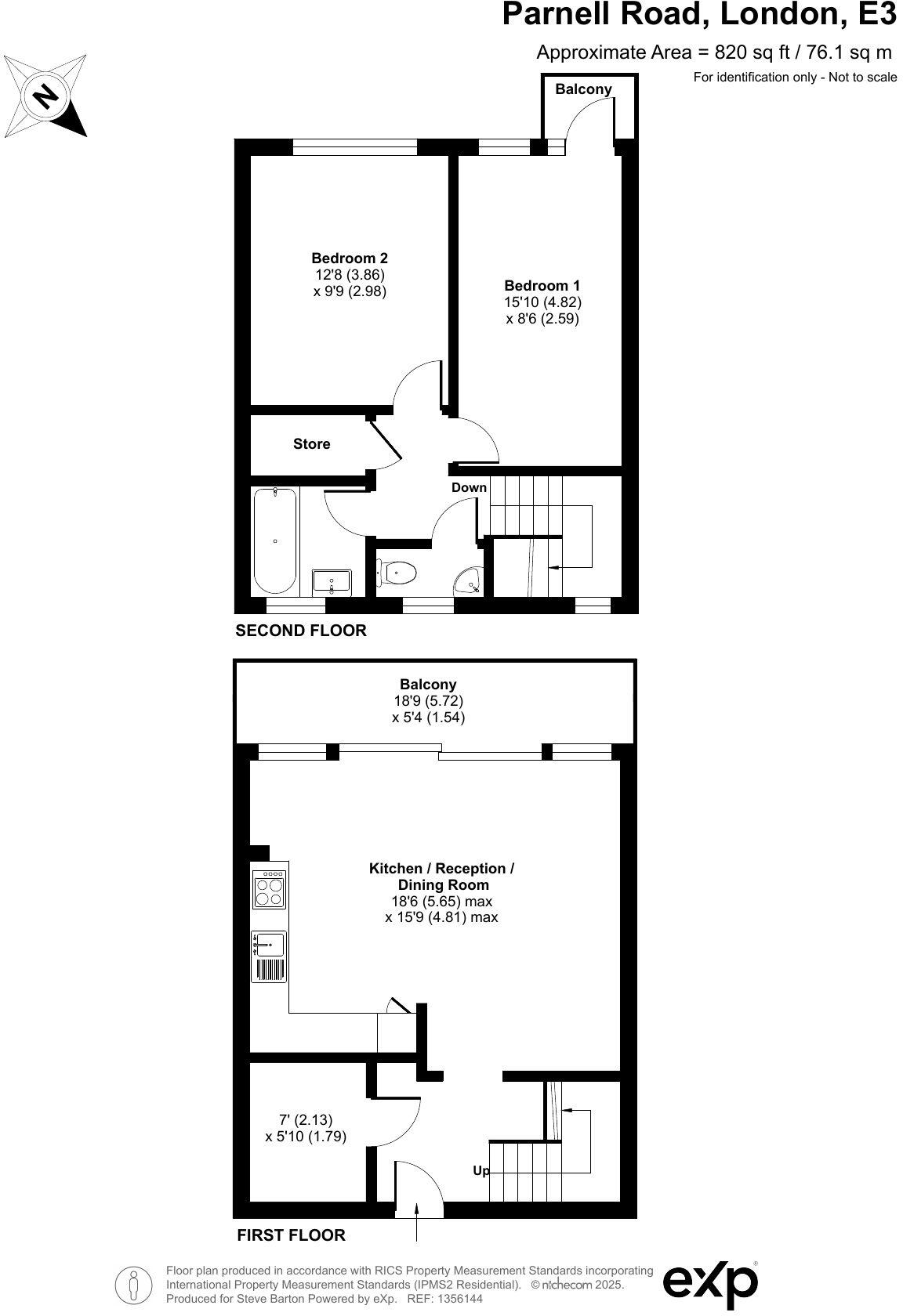
Situated in the vibrant heart of East London, this impressive 820 sq. ft. top-floor duplex apartment combines modern convenience with generous living space. Just moments from the renowned Roman Road Market, it offers direct access to a thriving community of independent shops, cafés, and...
Property Oracle says ..
This is a two-bedroom flat in Bow East, London. The property offers 657.97 sqft of living space and includes one bathroom. The location is well-connected, with nearby schools and transportation options. While the property is in fair condition, it could benefit from modernisation, particularly in the bathroom and kitchen. The property includes a balcony, but no garden. The asking price of £450,000 is reasonable for the area, considering the average price per square foot.
Therefore, we give this property 5 / 10. *Disclaimer: This is our option and does constitute a recommendation or financial advice. Do your own research. *
- Price
- 6
- Condition
- 5
- Location
- 7
- Land
- 3
- Bedrooms
- 2
- Bathrooms
- 1
- Sqft (est)
- 657.97
The heatmap indicates the level of crime in the area. The color of the heatmap indicates the crime severity and recency.
Metrics Year-on-Year
- Average area value
- 501,607.00 £Increased by 8.54 %
- Est sale value
- 490,845.62 £Increased by 29.97 %
- Average area rental value
- 2,290.00 £/moDecreased by 0.87 %
- Est letting value
- 1,973.91 £/moIncreased by 50.00 %
- Est rental Yield
- 5.48 %Decreased by 8.67 %
- Crime Rate
- 7.00 %Unchanged by 0.00 %
Agent Activity
eXp UK created the listing.
Nearby Schools
| Name | Type | Ofsted | Distance |
|---|---|---|---|
| Overland Children'S Centre | Children's Centre | 0.10 KM | |
| Mulberry Utc | University Technical College | Good | 0.24 KM |
| Phoenix Autism Trust | Special Post 16 Institution | 0.60 KM | |
| Phoenix School | Community Special School | Outstanding | 0.63 KM |
| Old Ford Primary - A Paradigm Academy | Academy Converter | 0.65 KM |
Images
Nearby Streets
| Name | Average Price | Average Sqft | Distance |
|---|---|---|---|
| Redwood Close | £ 350,000 | 0 | 0.00 KM |
| Ewart Place | £ 280,000 | 0 | 0.00 KM |
| Balmer Road | £ 0 | 0 | 0.00 KM |
| Alma Terrace | £ 0 | 0 | 0.00 KM |
| Malmesbury Road | £ 475,000 | 0 | 0.00 KM |
Nearby Transport
| Name | NLC | TLC | Distance |
|---|---|---|---|
| Hackney Wick | 6978 | HKW | 1.16 KM |
| Stratford International | 7222 | SFA | 2.33 KM |
| Homerton | 6979 | HMN | 2.37 KM |
| Stratford | 6969 | SRA | 2.70 KM |
| Limehouse | 7491 | LHS | 2.74 KM |
Nearby Listings
| Address | Price | Type | Score | Distance |
|---|---|---|---|---|
| Parnell Road, London, E3 | £ 450,000 | BUY | 5 / 10 | 0.00 KM |
| Trajan Court, 56 Usher Road, London, E3 | £ 360,000 | BUY | 6 / 10 | 0.05 KM |
| Trajan Court, 56 Usher Road, London, E3 | £ 126,000 | BUY | 6 / 10 | 0.05 KM |
| Usher Road, London - INVESTMENT @ c5% net RETURN! | £ 275,000 | BUY | 5 / 10 | 0.10 KM |
| Pancras Way, Bow, E3 | £ 420,000 | BUY | Unknown | 0.13 KM |
Nearby Properties
| Address | Price | Distance |
|---|---|---|
| 67 Parnell Road | £ 412,500 | 0.01 KM |
| 25 Parnell Road | £ 201,750 | 0.01 KM |
| 49 Parnell Road | £ 214,000 | 0.01 KM |
| 43 Parnell Road | £ 193,000 | 0.01 KM |
| 73 Parnell Road | £ 250,000 | 0.01 KM |