EL
Westgate Street, Gloucester, GL1 2PG
By Elliot Oliver Sales
£ 425,000
Elliot Oliver Sales says ..
Westgate Street is a versatile and strategically located three-storey terraced building in the heart of Gloucester City Centre. The property comprises a commercial unit on the ground floor, extending to the rear, and three separate one-bedroom apartments on the upper floors. The ground floor f...
- Bedrooms
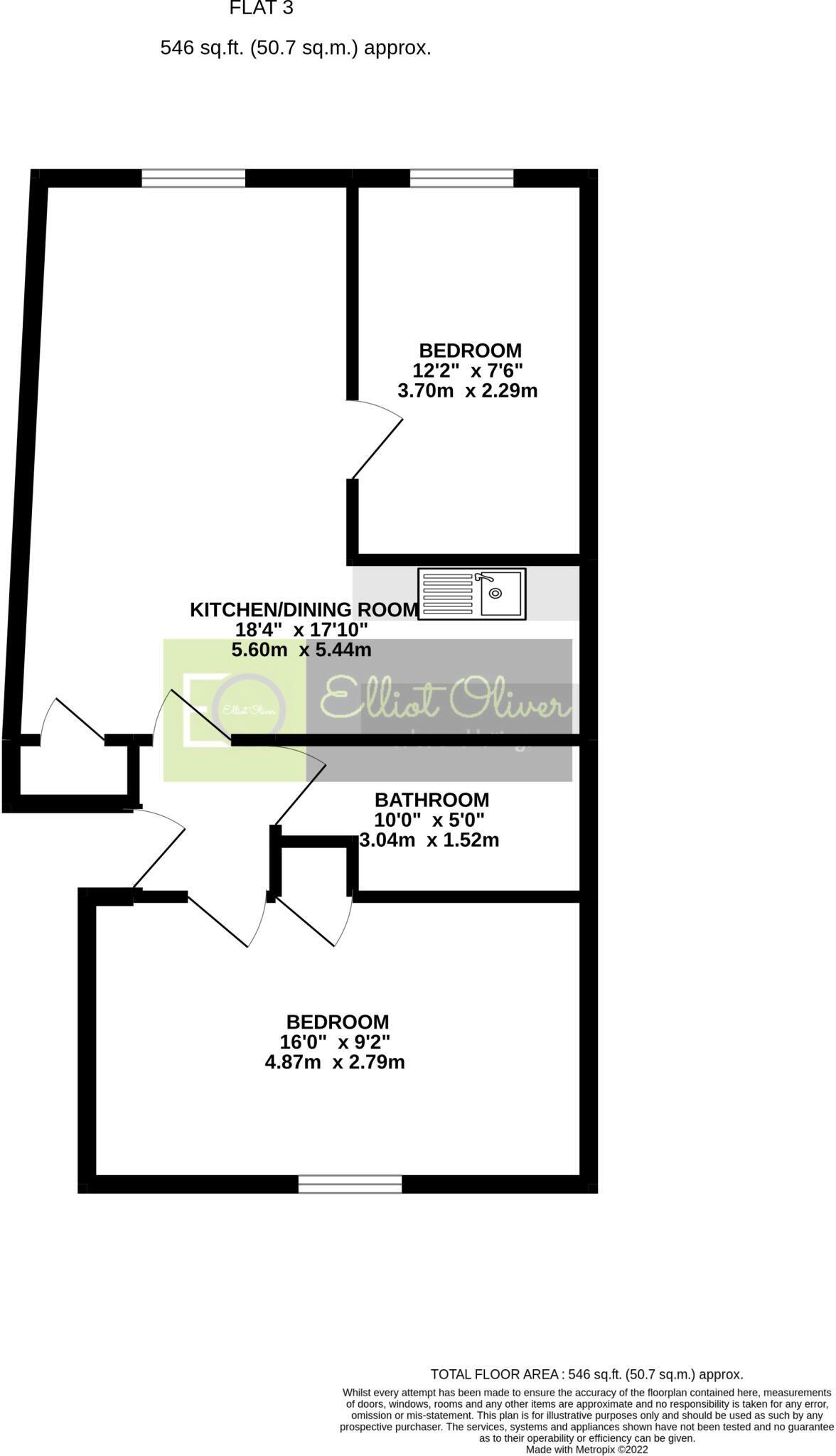
- 4
- Bathrooms
- 4
- Sqft (est)
- 546.00
The heatmap indicates the level of crime in the area. The color of the heatmap indicates the crime severity and recency.
Metrics Year-on-Year
- Average area value
- 222,854.00 £Decreased by 15.77 %
- Est sale value
- 157,248.00 £Decreased by 6.19 %
- Average area rental value
- 1,201.00 £/moIncreased by 7.91 %
- Est letting value
- 546.00 £/moUnchanged by 0.00 %
- Est rental Yield
- 6.47 %Increased by 28.12 %
- Crime Rate
- 13.00 %Unchanged by 0.00 %
from 264,570.00 £
from 167,622.00 £
from 1,113.00 £/mo
from 546.00 £/mo
from 5.05 %
from 13.00 %
Agent Activity
Elliot Oliver Sales created the listing.
Nearby Schools
| Name | Type | Ofsted | Distance |
|---|---|---|---|
| The King'S School, Gloucester | Other Independent School | 0.65 KM | |
| St Paul'S Church Of England Primary School | Voluntary Controlled School | Good | 1.14 KM |
| Kingsholm Church Of England Primary School | Voluntary Controlled School | Outstanding | 1.21 KM |
| Kaleidoscope Kingsholm Children'S Centre | Children's Centre | 1.35 KM | |
| Edward Jenner School | Other Independent School | 1.56 KM |
Images
Nearby Streets
| Name | Average Price | Average Sqft | Distance |
|---|---|---|---|
| Archdeacon Court | £ 0 | 0 | 0.00 KM |
| The Quay | £ 88,750 | 0 | 0.00 KM |
| Barbican Road | £ 0 | 0 | 0.00 KM |
| Marylone | £ 0 | 0 | 0.00 KM |
| Greyfriars | £ 0 | 0 | 0.00 KM |
Nearby Transport
| Name | NLC | TLC | Distance |
|---|---|---|---|
| Gloucester | 4760 | GCR | 1.31 KM |
Nearby Listings
| Address | Price | Type | Score | Distance |
|---|---|---|---|---|
| Westgate Street, Gloucester, GL1 2PG | £ 425,000 | BUY | Unknown | 0.00 KM |
| St. Nicholas Court, Gloucester, Gloucestershire, GL1 | £ 120,000 | BUY | Unknown | 0.11 KM |
| St. Nicholas Court, Gloucester, Gloucestershire, GL1 | £ 150,000 | BUY | 6 / 10 | 0.12 KM |
| The Dukeries, Gloucester, GL1 | £ 125,000 | BUY | 5 / 10 | 0.14 KM |
| Three Cocks Lane, Gloucester, Gloucestershire, GL1 | £ 175,000 | BUY | 6 / 10 | 0.14 KM |
Nearby Properties
| Address | Price | Distance |
|---|---|---|
| 93 Westgate Street | £ 117,000 | 0.01 KM |
| 115 Westgate Street | £ 27,000 | 0.02 KM |
| 5 St Marys Square | £ 91,500 | 0.15 KM |
| 2 St Marys Square | £ 117,500 | 0.15 KM |
| 34 St Marys Square | £ 100,000 | 0.15 KM |