Chancellors says ..
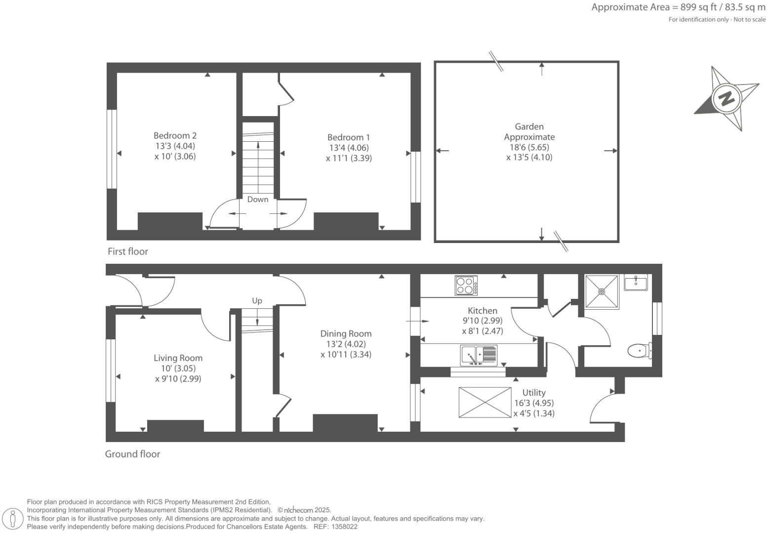
Nestled in the heart of Swindon, this well-presented two bedroom mid-terrace property offers the perfect blend of character, comfort, and convenience. Ideally located within walking distance to the town centre, train station, and local amenities, this home is ideal for first-time buyers
Property Oracle says ..
This is a two-bedroom terraced house located in Eastcott, Swindon. The property is within proximity to local amenities, schools, and transportation links, making it a convenient location for families and commuters. However, the property itself requires modernization, as reflected in the dated decor and general condition. While it has a garden, it is relatively small and requires some landscaping. Considering the location, condition, and size, the asking price of £220,000 appears reasonable, aligning with the average property values in the area. This property presents an opportunity for buyers looking to put their stamp on a home and add value through renovation.
Therefore, we give this property 5 / 10. *Disclaimer: This is our option and does constitute a recommendation or financial advice. Do your own research. *
- Price
- 7
- Condition
- 5
- Location
- 6
- Land
- 4
- Bedrooms
- 2
- Bathrooms
- 1
- Sqft (est)
- 669.61
The heatmap indicates the level of crime in the area. The color of the heatmap indicates the crime severity and recency.
Metrics Year-on-Year
- Average area value
- 238,636.00 £Increased by 2.11 %
- Est sale value
- 208,248.71 £Increased by 16.04 %
- Average area rental value
- 982.00 £/moDecreased by 1.70 %
- Est letting value
- 669.61 £/moUnchanged by 0.00 %
- Est rental Yield
- 4.94 %Decreased by 3.70 %
- Crime Rate
- 10.00 %Unchanged by 0.00 %
Agent Activity
Chancellors created the listing.
Nearby Schools
| Name | Type | Ofsted | Distance |
|---|---|---|---|
| Utc Swindon | University Technical College | Requires improvement | 0.77 KM |
| The Commonweal School | Academy Converter | Good | 0.99 KM |
| Robert Le Kyng Primary School | Community School | Good | 0.99 KM |
| King William Street Church Of England Primary School | Academy Converter | Good | 1.00 KM |
| Holy Rood Catholic Primary School | Academy Converter | Requires improvement | 1.03 KM |
Images
Nearby Streets
| Name | Average Price | Average Sqft | Distance |
|---|---|---|---|
| Market Street | £ 0 | 0 | 0.00 KM |
| Chester Street | £ 240,000 | 0 | 0.00 KM |
| Havelock Square | £ 0 | 0 | 0.00 KM |
| Blackberry Alley | £ 240,000 | 0 | 0.00 KM |
| King Street | £ 0 | 0 | 0.00 KM |
Nearby Transport
| Name | NLC | TLC | Distance |
|---|---|---|---|
| Swindon (Wilts) | 3333 | SWI | 0.88 KM |
Nearby Listings
| Address | Price | Type | Score | Distance |
|---|---|---|---|---|
| Crombey Street, Swindon, SN1 | £ 220,000 | BUY | 5 / 10 | 0.00 KM |
| Crombey Street, Swindon, SN1 5QW | £ 215,000 | BUY | 6 / 10 | 0.03 KM |
| Deacon Street, Swindon, Wiltshire, SN1 | £ 200,000 | BUY | 6 / 10 | 0.03 KM |
| Crombey Street, Swindon, SN1 | £ 210,000 | BUY | 5 / 10 | 0.06 KM |
| Crombey Street, Swindon, Wiltshire, SN1 | £ 220,000 | BUY | 7 / 10 | 0.07 KM |
Nearby Properties
| Address | Price | Distance |
|---|---|---|
| 28 Deacon Street | £ 193,000 | 0.05 KM |
| 12 Deacon Street | £ 115,000 | 0.05 KM |
| 80 Deacon Street | £ 160,000 | 0.05 KM |
| 25 Deacon Street | £ 162,500 | 0.05 KM |
| 34 Deacon Street | £ 111,000 | 0.05 KM |