Lindsey Road, Ipswich
WO

Lindsey Road, Ipswich

By Woodcock & Son

£ 515,000

Reviews

3 out of 5 stars

Woodcock & Son says ..

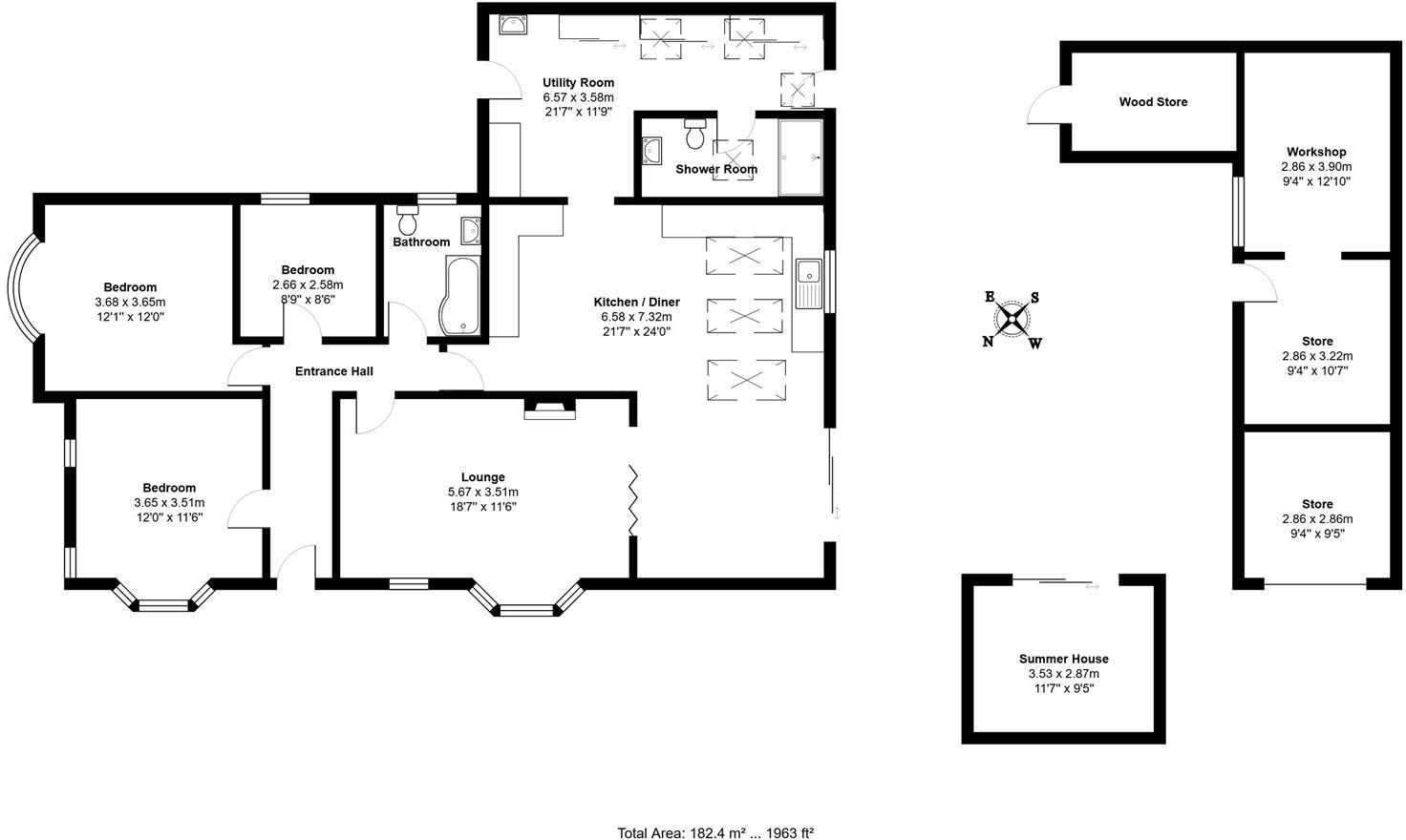
A deceptively spacious three-bedroom detached bungalow in the sought after Northgate School catchment, within walking distance of St Albans School and local shops. The property features an open-plan kitchen/breakfast room, living room, two bathrooms, a large utility area, good sized gardens, exte...

Property Oracle says ..

This is a detached bungalow in Bixley, Ipswich. It features three bedrooms and one bathroom. The property is in good condition, with a modern kitchen and bathroom. It has a garden, although it is mostly artificial grass. The property is located near schools and transportation. The listing price is £515,000, which is more expensive than the average price per square foot in the area. The property is modern and well-maintained, making it an attractive option for buyers looking for a move-in ready home in a convenient location.

Therefore, we give this property 7 / 10. *Disclaimer: This is our option and does constitute a recommendation or financial advice. Do your own research. *

Price
6
Condition
8
Location
7
Land
7
Bedrooms
3
Bathrooms
1
Sqft (est)
1,963.34

The heatmap indicates the level of crime in the area. The color of the heatmap indicates the crime severity and recency.

Metrics Year-on-Year

Average area value
356,154.00 £
Decreased by 0.23 %
from 356,974.00 £
Est sale value
726,435.80 £
Increased by 10.12 %
from 659,682.24 £
Average area rental value
816.00 £/mo
Decreased by 33.28 %
from 1,223.00 £/mo
Est letting value
0.00 £/mo
Decreased by 100.00 %
from 1,963.34 £/mo
Est rental Yield
2.75 %
Decreased by 33.09 %
from 4.11 %
Crime Rate
6.00 %
Unchanged by 0.00 %
from 6.00 %

Agent Activity

  • Woodcock & Son created the listing.

Nearby Schools

NameTypeOfstedDistance
St Alban'S Catholic High SchoolAcademy ConverterGood0.37 KM
Copleston High SchoolAcademy ConverterGood0.89 KM
Quayside Children'S CentreChildren's Centre0.94 KM
Chatterbox Children'S CentreChildren's Centre0.94 KM
Parkside AcademyAcademy Alternative Provision ConverterRequires improvement1.11 KM

Images

dji_fly_20251024_110038_0074_1761822660473_photo.J 5X4A9632-5X4A9634.jpg 5X4A9635-5X4A9637.jpg 5X4A9611-5X4A9613.jpg 5X4A9602-5X4A9604.jpg 5X4A9605-5X4A9607.jpg 5X4A9575-5X4A9577.jpg 5X4A9578-5X4A9580.jpg 5X4A9584-5X4A9586.jpg 5X4A9590-5X4A9592.jpg 5X4A9548-5X4A9550.jpg 5X4A9551-5X4A9553.jpg 5X4A9554-5X4A9556.jpg 5X4A9557-5X4A9559.jpg 5X4A9566-5X4A9568.jpg 5X4A9569-5X4A9571.jpg 5X4A9617-5X4A9619.jpg 5X4A9620-5X4A9622.jpg 5X4A9623-5X4A9625.jpg 5X4A9626-5X4A9628.jpg

Nearby Streets

NameAverage PriceAverage SqftDistance
Ladywood Road £ 000.00 KM
Halliwell Road £ 375,00000.00 KM
The Drift £ 300,00000.00 KM
Victory Road £ 280,00000.00 KM
The Boiler House £ 311,50000.00 KM

Nearby Transport

NameNLCTLCDistance
Derby Road (Ipswich)7212DBR2.03 KM
Westerfield7226WFI4.01 KM
Ipswich7217IPS5.93 KM

Nearby Listings

AddressPriceTypeScoreDistance
Lindsey Road, Ipswich £ 515,000BUY7 / 100.00 KM
Digby Road, Ipswich, Suffolk, IP4 £ 395,000BUY6 / 100.02 KM
Digby Road, Ipswich £ 375,000BUY6 / 100.02 KM
Digby Road, Ipswich, Suffolk, IP4 £ 325,000BUY6 / 100.08 KM
Digby Road, Ipswich, Suffolk, IP4 £ 360,000BUY7 / 100.16 KM

Nearby Properties

AddressPriceDistance
6 Lindsey Road £ 199,9950.05 KM
2 Lindsey Road £ 240,0000.05 KM
3 Lindsey Road £ 377,5000.05 KM
59 Digby Road £ 250,0000.12 KM
53 Digby Road £ 200,0000.12 KM