Eric Lloyd & Co says ..
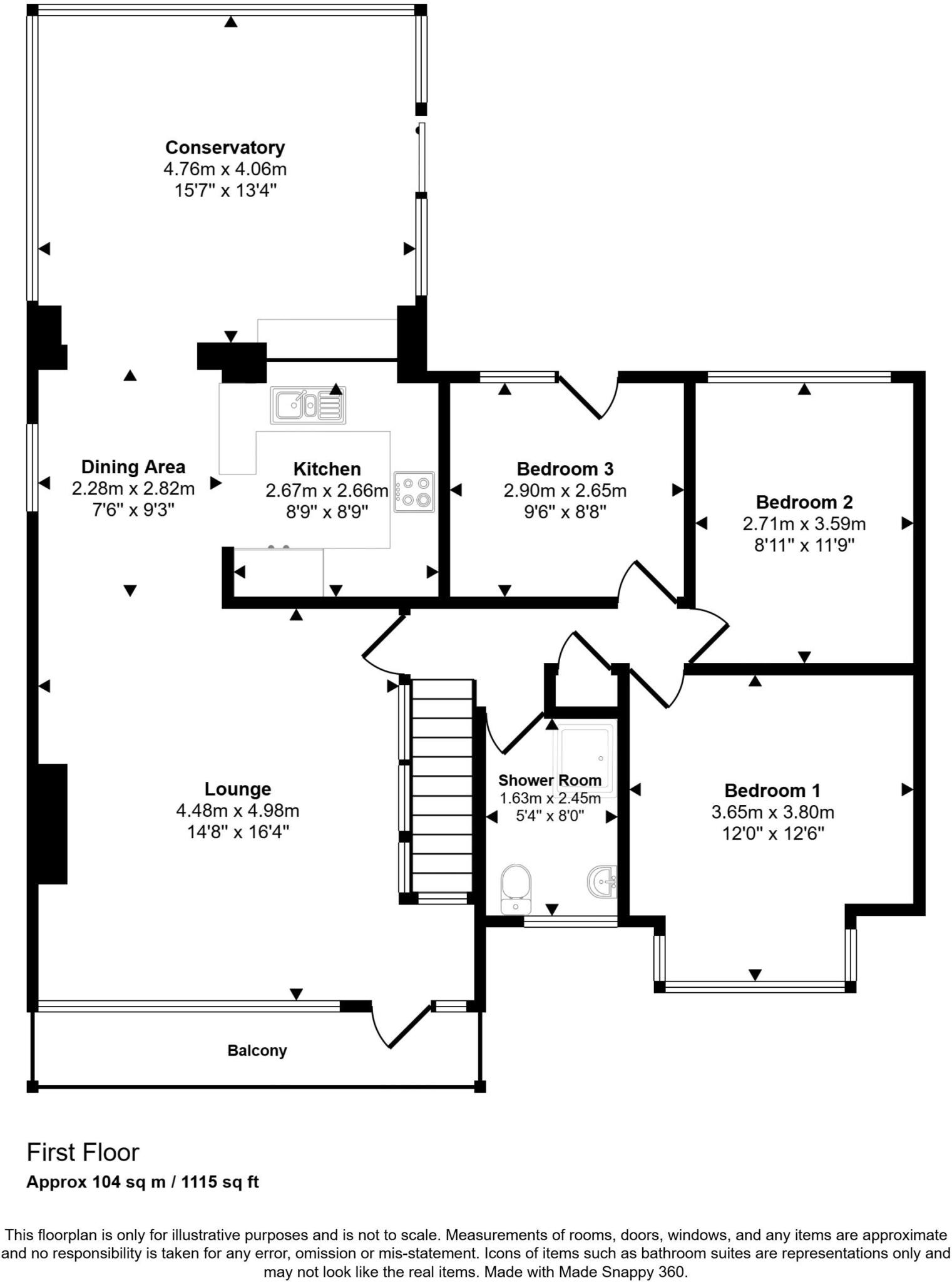
Located on the ever popular Wall Park Close, this FIVE BEDROOM DETACHED HOUSE offers a wealth of accommodation across roughly 186 square meters of internal accommodation. With the added benefit of having NO ONWARD CHAIN. Wall Park Close itself is a sought after spot, due to the quiet and tranquil...
Property Oracle says ..
This property is a 5 bedroom, 2 bathroom detached house located in Brixham, Devon. It benefits from a good sized garden and is within easy reach of local amenities and schools. The property appears to be well maintained and presented, with a modern kitchen and bathrooms. The asking price of £595,000 seems reasonable in comparison to other properties in the area, although some properties have sold for more and some for less. The average price per square foot in the area is £397, while this property is listed at approximately £788 per sqft. The larger plot size may account for the higher price per sqft.
Therefore, we give this property 7 / 10. *Disclaimer: This is our option and does constitute a recommendation or financial advice. Do your own research. *
- Price
- 7
- Condition
- 9
- Location
- 8
- Land
- 7
- Bedrooms
- 5
- Bathrooms
- 2
- Sqft (est)
- 754.70
- Lot (est)
- 1,045.00
The heatmap indicates the level of crime in the area. The color of the heatmap indicates the crime severity and recency.
Metrics Year-on-Year
- Average area value
- 321,850.00 £Decreased by 11.58 %
- Est sale value
- 239,994.60 £Decreased by 13.59 %
- Average area rental value
- 888.00 £/moIncreased by 0.57 %
- Est letting value
- 0.00 £/mo
- Est rental Yield
- 3.31 %Increased by 13.75 %
- Crime Rate
- 1.00 %Unchanged by 0.00 %
Agent Activity
Eric Lloyd & Co created the listing.
Nearby Schools
| Name | Type | Ofsted | Distance |
|---|---|---|---|
| Brixham College | Academy Converter | Good | 0.49 KM |
| Brixham Church Of England Primary School | Academy Converter | 0.67 KM | |
| Furzeham Primary School | Community School | Good | 1.23 KM |
| Furzeham Children'S Centre | Children's Centre Linked Site | 1.61 KM | |
| Eden Park Primary & Nursery School | Academy Converter | Good | 1.95 KM |
Images
Nearby Streets
| Name | Average Price | Average Sqft | Distance |
|---|---|---|---|
| Torbay Court | £ 0 | 0 | 0.00 KM |
| Lyte's Road | £ 0 | 0 | 0.00 KM |
| The Strand | £ 0 | 0 | 0.00 KM |
| Fern Close | £ 342,500 | 0 | 0.00 KM |
| Ochre Court | £ 0 | 0 | 0.00 KM |
Nearby Transport
| Name | NLC | TLC | Distance |
|---|---|---|---|
| Paignton | 3427 | PGN | 7.93 KM |
| Torquay | 3434 | TQY | 8.42 KM |
| Torre | 3432 | TRR | 9.76 KM |
Nearby Listings
| Address | Price | Type | Score | Distance |
|---|---|---|---|---|
| Wall Park Close, Brixham | £ 595,000 | BUY | 7 / 10 | 0.00 KM |
| WALL PARK CLOSE BRIXHAM | £ 345,000 | BUY | 7 / 10 | 0.00 KM |
| Wall Park Close, Brixham | £ 580,000 | BUY | 8 / 10 | 0.01 KM |
| Ranscombe Close, Brixham | £ 385,000 | BUY | 7 / 10 | 0.09 KM |
| Anchorage Close, Wall Park, Brixham | £ 425,000 | BUY | 6 / 10 | 0.16 KM |
Nearby Properties
| Address | Price | Distance |
|---|---|---|
| 27 Wall Park Close | £ 580,000 | 0.01 KM |
| 4 Wall Park Close | £ 250,000 | 0.01 KM |
| 23 Wall Park Close | £ 285,000 | 0.01 KM |
| 5 Wall Park Close | £ 182,000 | 0.01 KM |
| 3 Wall Park Close | £ 380,000 | 0.01 KM |