Chancellors says ..
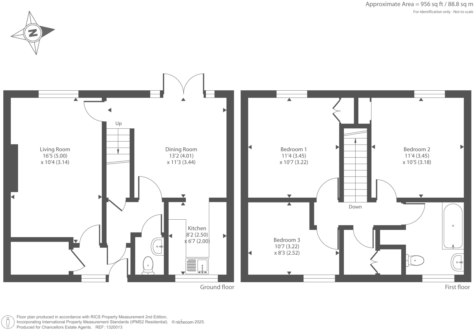
A good sized three bedroom home which offers a lounge, dining room, fitted kitchen and downstairs cloakroom. On the first floor are three bedrooms, a bathroom and a bonus room. Outside are gardens front and rear. There is double glazing and gas fired radiator central heating.
Property Oracle says ..
Therefore, we give this property 6 / 10. *Disclaimer: This is our option and does constitute a recommendation or financial advice. Do your own research. *
- Price
- 8
- Condition
- 6
- Location
- 7
- Land
- 6
- Bedrooms
- 3
- Bathrooms
- 1
- Sqft (est)
- 956.00
The heatmap indicates the level of crime in the area. The color of the heatmap indicates the crime severity and recency.
Metrics Year-on-Year
- Average area value
- 1,258,750.00 £Increased by 38.62 %
- Est sale value
- 563,084.00 £Decreased by 3.12 %
- Average area rental value
- 2,017.00 £/moDecreased by 42.17 %
- Est letting value
- 0.00 £/moDecreased by 100.00 %
- Est rental Yield
- 1.92 %Decreased by 58.35 %
- Crime Rate
- 0.00 %
from 908,045.00 £
from 581,248.00 £
from 3,488.00 £/mo
from 1,912.00 £/mo
from 4.61 %
from 0.00 %
Agent Activity
Chancellors created the listing.
Nearby Schools
| Name | Type | Ofsted | Distance |
|---|---|---|---|
| St Bede'S Catholic Primary School | Voluntary Aided School | Good | 0.33 KM |
| Merton Infant School | Community School | Good | 0.53 KM |
| Merton Junior School | Community School | Good | 0.63 KM |
| Maple Ridge School | Community Special School | Good | 0.76 KM |
| Dove House School | Academy Special Converter | Outstanding | 0.76 KM |
Images
Nearby Streets
| Name | Average Price | Average Sqft | Distance |
|---|---|---|---|
| Abbey Court | £ 0 | 0 | 0.00 KM |
| Wordsworth Close | £ 0 | 0 | 0.00 KM |
| Wallingford Road | £ 190,000 | 0 | 0.00 KM |
| Warner Close | £ 0 | 0 | 0.00 KM |
| Carpenters Down | £ 0 | 0 | 0.00 KM |
Nearby Transport
| Name | NLC | TLC | Distance |
|---|---|---|---|
| Basingstoke | 5520 | BSK | 1.46 KM |
| Bramley (Hampshire) | 5500 | BMY | 6.27 KM |
Nearby Listings
| Address | Price | Type | Score | Distance |
|---|---|---|---|---|
| Basingstoke, Hampshire, RG24 | £ 315,000 | BUY | 6 / 10 | 0.00 KM |
| Abbey Road, Basingstoke, Hampshire | £ 325,000 | BUY | 7 / 10 | 0.04 KM |
| Abbey Road, Basingstoke, Hampshire | £ 325,000 | BUY | 7 / 10 | 0.10 KM |
| Selby Walk, Basingstoke | £ 280,000 | BUY | Unknown | 0.12 KM |
| Abbey Road, Basingstoke | £ 290,000 | BUY | Unknown | 0.12 KM |
Nearby Properties
| Address | Price | Distance |
|---|---|---|
| 98 Abbey Road | £ 340,000 | 0.04 KM |
| 100 Abbey Road | £ 263,000 | 0.04 KM |
| 110 Abbey Road | £ 168,000 | 0.04 KM |
| 91 Abbey Road | £ 148,500 | 0.04 KM |
| 109 Abbey Road | £ 290,000 | 0.04 KM |