Ocean says ..
A charming three-bedroom 1930's home boasting a detached double garage. This property is being offered to the market with no onward chain.
Property Oracle says ..
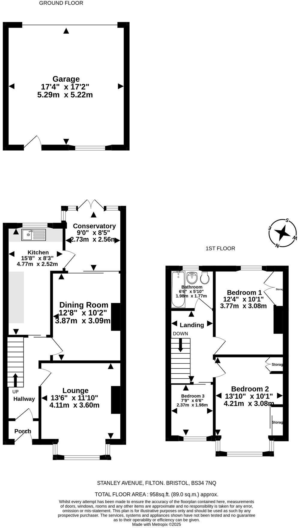
This is a three-bedroom terraced house in Filton, Bristol, presented by estate agent Ocean. The property offers 1,140.97 sqft of living space and includes a garden. While the location is advantageous due to its proximity to transportation and schools, the property requires extensive renovation and modernisation. The asking price of £325,000 reflects the condition of the property, offering an opportunity for buyers to add value through refurbishment.
Therefore, we give this property 5 / 10. *Disclaimer: This is our option and does constitute a recommendation or financial advice. Do your own research. *
- Price
- 7
- Condition
- 3
- Location
- 7
- Land
- 6
- Bedrooms
- 3
- Bathrooms
- 1
- Sqft (est)
- 1,140.97
The heatmap indicates the level of crime in the area. The color of the heatmap indicates the crime severity and recency.
Metrics Year-on-Year
- Average area value
- 334,369.00 £Decreased by 4.41 %
- Est sale value
- 447,260.24 £Increased by 0.51 %
- Average area rental value
- 2,075.00 £/moIncreased by 5.22 %
- Est letting value
- 2,281.94 £/moUnchanged by 0.00 %
- Est rental Yield
- 7.45 %Increased by 10.04 %
- Crime Rate
- 4.00 %Unchanged by 0.00 %
Agent Activity
Ocean created the listing.
Nearby Schools
| Name | Type | Ofsted | Distance |
|---|---|---|---|
| Stoke Park Primary School & Early Years Centre | Children's Centre | 0.45 KM | |
| Shield Road Primary School | Community School | Good | 0.50 KM |
| Filton Children'S Centre | Children's Centre | 0.79 KM | |
| Filton Hill Primary School | Academy Converter | Good | 1.12 KM |
| Upper Horfield Children'S Centre & Community School | Children's Centre | 1.17 KM |
Images
Nearby Streets
| Name | Average Price | Average Sqft | Distance |
|---|---|---|---|
| Stuart MacCallum Close | £ 0 | 0 | 0.00 KM |
| The Sidings | £ 0 | 0 | 0.00 KM |
| Lawn Close | £ 0 | 0 | 0.00 KM |
| Eliot Close | £ 345,000 | 0 | 0.00 KM |
| Ruskin Grove | £ 0 | 0 | 0.00 KM |
Nearby Transport
| Name | NLC | TLC | Distance |
|---|---|---|---|
| Filton Abbey Wood | 3235 | FIT | 0.60 KM |
| Patchway | 3213 | PWY | 2.36 KM |
| Bristol Parkway | 3230 | BPW | 2.99 KM |
| Stapleton Road | 3250 | SRD | 4.21 KM |
| Montpelier | 3203 | MTP | 4.72 KM |
Nearby Listings
| Address | Price | Type | Score | Distance |
|---|---|---|---|---|
| Stanley Avenue, Filton, Bristol | £ 325,000 | BUY | 5 / 10 | 0.00 KM |
| Stanley Avenue | Filton | £ 350,000 | BUY | Unknown | 0.00 KM |
| Stanley Avenue, Filton, Bristol | £ 325,000 | BUY | 5 / 10 | 0.04 KM |
| Wallscourt Road, Filton, Bristol, BS34 | £ 350,000 | BUY | 7 / 10 | 0.08 KM |
| Wallscourt Road, BRISTOL, Avon, BS34 | £ 325,000 | BUY | 7 / 10 | 0.08 KM |
Nearby Properties
| Address | Price | Distance |
|---|---|---|
| 32 Stanley Avenue | £ 316,000 | 0.04 KM |
| 1 Stanley Avenue | £ 300,000 | 0.04 KM |
| 8 Stanley Avenue | £ 187,250 | 0.04 KM |
| 18 Stanley Avenue | £ 67,000 | 0.04 KM |
| 22 Stanley Avenue | £ 205,000 | 0.05 KM |