BO
62 Baxter Avenue, Kidderminster, DY10 2HB
By Bond Wolfe
£ 49,000
Reviews
3 out of 5 stars
Bond Wolfe says ..
For Sale By Public Auction 10 December 2025 A vacant freehold semi detached property
Property Oracle says ..
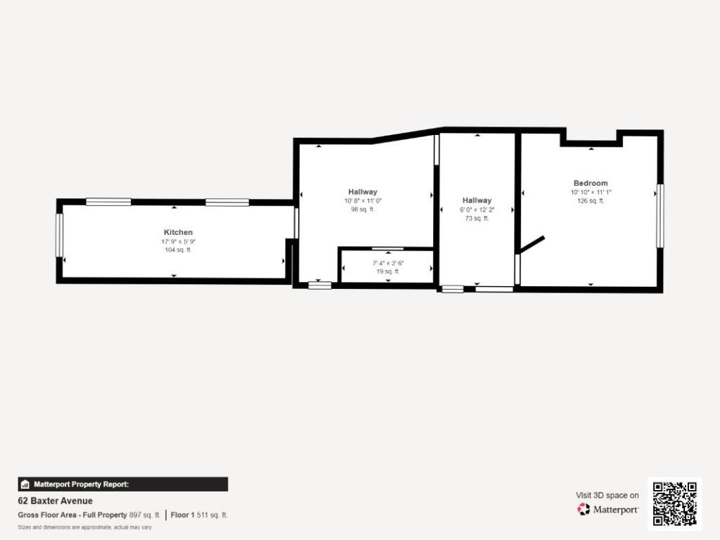
62 Baxter Avenue is a semi-detached property in Kidderminster, requiring complete renovation. The property is located within proximity to schools and transportation links. The house has a garden. The house is listed at £49,000, significantly below the average for the area, reflecting the work required.
Therefore, we give this property 6 / 10. *Disclaimer: This is our option and does constitute a recommendation or financial advice. Do your own research. *
- Price
- 9
- Condition
- 2
- Location
- 6
- Land
- 7
- Bedrooms
- 3
- Bathrooms
- 0
The heatmap indicates the level of crime in the area. The color of the heatmap indicates the crime severity and recency.
Metrics Year-on-Year
- Average area value
- 220,625.00 £Decreased by 4.42 %
- Average area rental value
- 973.00 £/moDecreased by 54.68 %
- Est rental Yield
- 5.29 %Decreased by 52.60 %
- Crime Rate
- 5.00 %Unchanged by 0.00 %
from 230,837.00 £
from 2,147.00 £/mo
from 11.16 %
from 5.00 %
Agent Activity
Bond Wolfe created the listing.
Nearby Schools
| Name | Type | Ofsted | Distance |
|---|---|---|---|
| St George'S Cofe School | Academy Sponsor Led | 0.13 KM | |
| Holy Trinity School | Free Schools | Good | 0.44 KM |
| St Ambrose Catholic Primary | Academy Converter | Good | 0.48 KM |
| St Mary'S Cofe (Va) Primary School | Voluntary Aided School | Good | 0.56 KM |
| Rainbow Children'S Centre | Children's Centre | 0.58 KM |
Images
Nearby Streets
| Name | Average Price | Average Sqft | Distance |
|---|---|---|---|
| Springfield Lane | £ 0 | 0 | 0.00 KM |
| Waverley Close | £ 0 | 0 | 0.00 KM |
| Churchfields | £ 0 | 0 | 0.00 KM |
| Bromsgrove Street | £ 0 | 0 | 0.00 KM |
| St. Oswalds Close | £ 0 | 0 | 0.00 KM |
Nearby Transport
| Name | NLC | TLC | Distance |
|---|---|---|---|
| Kidderminster | 4581 | KID | 1.00 KM |
| Hartlebury | 4579 | HBY | 6.88 KM |
| Blakedown | 4574 | BKD | 7.31 KM |
Nearby Listings
| Address | Price | Type | Score | Distance |
|---|---|---|---|---|
| 62 Baxter Avenue, Kidderminster, DY10 2HB | £ 49,000 | BUY | 6 / 10 | 0.00 KM |
| Baxter Avenue, Kidderminster | £ 240,000 | BUY | 7 / 10 | 0.03 KM |
| Baxter Avenue, Kidderminster, Worcestershire, DY10 | £ 160,000 | BUY | 6 / 10 | 0.04 KM |
| Baxter Avenue, KIDDERMINSTER | £ 230,000 | BUY | 7 / 10 | 0.04 KM |
| Baxter Avenue, Kidderminster, Worcestershire, DY10 | £ 150,000 | BUY | 5 / 10 | 0.04 KM |
Nearby Properties
| Address | Price | Distance |
|---|---|---|
| 101 Baxter Avenue | £ 120,000 | 0.04 KM |
| Orchard House | £ 195,000 | 0.04 KM |
| 116 Baxter Avenue | £ 105,000 | 0.04 KM |
| 55 Baxter Avenue | £ 110,000 | 0.04 KM |
| 96 Baxter Avenue | £ 110,000 | 0.04 KM |