Prenton Lane, Birkenhead, Merseyside, CH42
By Bradshaw Farnham & Lea
£ 135,000
Reviews
3 out of 5 stars
Bradshaw Farnham & Lea says ..
Bright & Spacious First Floor Apartment in Leafy Suburb – No Onward Chain
Property Oracle says ..
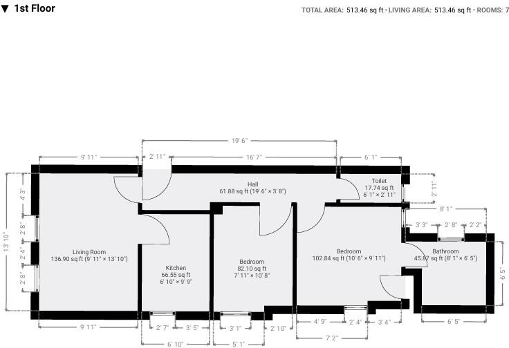
This property is a 2-bedroom, 2-bathroom apartment located in Prenton, Wirral. The apartment is part of a larger building, which appears to be a converted house, offering a blend of period features and modern updates. The location is relatively close to public transportation (Birkenhead Central station is approximately 2.90 KM away), and several schools are within a reasonable distance. However, the provided data lacks details on the quality of local amenities and the overall desirability of the area, making a comprehensive location assessment challenging. The apartment itself seems to be in good condition based on the images provided. The kitchen and bathrooms appear recently updated or well-maintained. The floor plan is not available, limiting the assessment of space efficiency. The property includes a small shared garden area. Given the list price of £135,000 and the average price per square foot of £203 in the area, the price seems relatively low compared to the average house price of £243,499. However, the significant difference in square footage between this apartment (513.88 sqft) and the average house (1194 sqft) needs to be considered. More information on comparable apartment sales in the immediate vicinity would be beneficial for a more precise price evaluation.
Therefore, we give this property 6 / 10. *Disclaimer: This is our option and does constitute a recommendation or financial advice. Do your own research. *
- Price
- 7
- Condition
- 8
- Location
- 6
- Land
- 3
- Bedrooms
- 2
- Bathrooms
- 2
- Sqft (est)
- 513.88
- Lot (est)
- 513.46
The heatmap indicates the level of crime in the area. The color of the heatmap indicates the crime severity and recency.
Metrics Year-on-Year
- Average area value
- 287,500.00 £Increased by 19.71 %
- Est sale value
- 109,456.44 £Increased by 16.39 %
- Average area rental value
- 850.00 £/moIncreased by 25.00 %
- Est letting value
- 0.00 £/mo
- Est rental Yield
- 3.55 %Increased by 4.41 %
- Crime Rate
- 1.00 %Unchanged by 0.00 %
Agent Activity
Bradshaw Farnham & Lea created the listing.
Nearby Schools
| Name | Type | Ofsted | Distance |
|---|---|---|---|
| St Joseph'S Catholic Primary School, Birkenhead | Academy Sponsor Led | 0.63 KM | |
| Devonshire Park Primary School | Community School | Good | 0.82 KM |
| Prenton Preparatory School | Other Independent School | 1.01 KM | |
| Woodchurch Road Primary School | Community School | Requires improvement | 1.10 KM |
| Oxton St Saviour'S Cofe Aided Primary School | Voluntary Aided School | Good | 1.27 KM |
Images
Nearby Streets
| Name | Average Price | Average Sqft | Distance |
|---|---|---|---|
| Highpark Road | £ 0 | 0 | 0.00 KM |
| Bryanston Road | £ 630,000 | 0 | 0.00 KM |
| Roman Road | £ 850,000 | 0 | 0.00 KM |
| Dudley Close | £ 0 | 0 | 0.00 KM |
| Pennine Road | £ 165,000 | 0 | 0.00 KM |
Nearby Transport
| Name | NLC | TLC | Distance |
|---|---|---|---|
| Birkenhead Central | 2217 | BKC | 2.90 KM |
| Green Lane | 2218 | GNL | 2.97 KM |
| Birkenhead Park | 2220 | BKP | 2.98 KM |
| Conway Park | 3624 | CNP | 3.17 KM |
| Rock Ferry | 2189 | RFY | 3.24 KM |
Nearby Listings
| Address | Price | Type | Score | Distance |
|---|---|---|---|---|
| Prenton Lane, Birkenhead, Merseyside, CH42 | £ 135,000 | BUY | 6 / 10 | 0.00 KM |
| Prenton Lane, Birkenhead | £ 680,000 | BUY | 7 / 10 | 0.04 KM |
| Prenton Lane, Prenton, Wirral | £ 899,950 | BUY | 7 / 10 | 0.10 KM |
| Prospect Road, Prenton, CH42 | £ 750,000 | BUY | Unknown | 0.10 KM |
| 12 St Stephens Court, Prenton Lane, Merseyside, CH42 | £ 145,758 | BUY | 6 / 10 | 0.12 KM |
Nearby Properties
| Address | Price | Distance |
|---|---|---|
| 1a Prenton Lane | £ 320,000 | 0.12 KM |
| 120 Storeton Road | £ 458,000 | 0.15 KM |
| 9 Acrefield Road | £ 425,000 | 0.16 KM |
| 7 Waterpark Road | £ 503,000 | 0.17 KM |
| 2 Waterpark Road | £ 255,000 | 0.17 KM |