Silverweed Road, Chatham, ME5
By Greyfox Estate Agents
£ 265,000
Reviews
2 out of 5 stars
Greyfox Estate Agents says ..
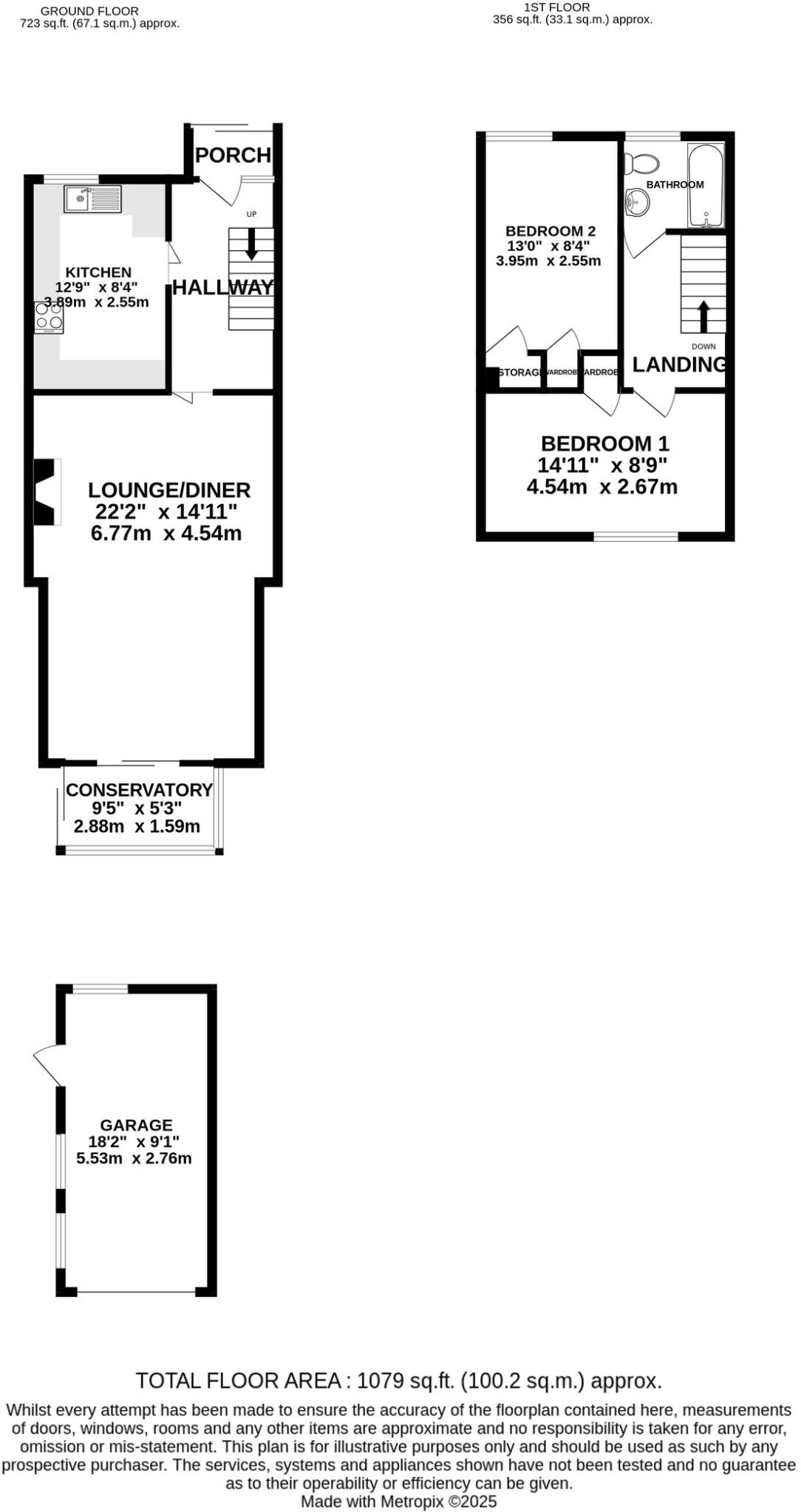
Being offered with no forward chain is this two double bedroom extended house. This is an opportunity to put your own creative stamp and make a lovely home. The accommodation comprises of: entrance hall leading to the kitchen/diner with a range of fitted wall and base units. This continues thr...
Property Oracle says ..
The property is a two-bedroom terraced house located in Walderslade, Chatham, Kent. The list price is £265,000. The property has a plot size of 1,079 sqft and is 987.84 sqft in size. Considering the average house price in the area is £380,556 and the average price per sqft is £358, the list price of £265,000 appears to be significantly below average. However, this needs to be considered in the context of the property’s condition and location. The property’s location in Walderslade benefits from relatively close proximity to several schools, including Oaklands School (0.14km), St Thomas More Roman Catholic Primary School (0.58km), Greenacre Academy (0.67km), and Walderslade Girls’ School (0.77km). Several Southeastern train stations are also within a reasonable distance, providing convenient access to commuting options. Based on the provided images, the property appears to be in need of significant modernisation and renovation. The decor and fixtures throughout are dated and worn. The carpets appear stained and worn, and the kitchen and bathroom are in need of updating. This suggests a lower-than-average condition score. The property includes a small garden and a garage, which adds to its appeal and potential value. The size of the garden is not explicitly stated, but based on the images, it appears relatively small. In summary, while the list price is below the average for the area, the property’s condition and the relatively small garden size should be considered when evaluating its overall value. The convenient location near schools and transportation links is a positive aspect. A full survey and valuation are recommended to determine a fair market price.
Therefore, we give this property 5 / 10. *Disclaimer: This is our option and does constitute a recommendation or financial advice. Do your own research. *
- Price
- 6
- Condition
- 4
- Location
- 7
- Land
- 5
- Bedrooms
- 2
- Bathrooms
- 1
- Sqft (est)
- 987.84
- Lot (est)
- 1,079.00
The heatmap indicates the level of crime in the area. The color of the heatmap indicates the crime severity and recency.
Metrics Year-on-Year
- Average area value
- 337,500.00 £Decreased by 0.46 %
- Est sale value
- 401,063.04 £Increased by 24.92 %
- Average area rental value
- 2,300.00 £/moIncreased by 101.22 %
- Est letting value
- 1,975.68 £/moIncreased by 100.00 %
- Est rental Yield
- 8.18 %Increased by 101.98 %
- Crime Rate
- 20.00 %Unchanged by 0.00 %
Agent Activity
Greyfox Estate Agents created the listing.
Nearby Schools
| Name | Type | Ofsted | Distance |
|---|---|---|---|
| Oaklands School | Academy Converter | 0.14 KM | |
| Oaklands Children'S Centre | Children's Centre | 0.15 KM | |
| St Thomas More Roman Catholic Primary School | Voluntary Aided School | Outstanding | 0.58 KM |
| Greenacre Academy | Academy Converter | Good | 0.67 KM |
| Walderslade Girls' School | Academy Converter | Good | 0.77 KM |
Images
Nearby Streets
| Name | Average Price | Average Sqft | Distance |
|---|---|---|---|
| Larkspur Road | £ 260,000 | 0 | 0.00 KM |
| York Avenue | £ 619,995 | 0 | 0.00 KM |
| Aspen Way | £ 0 | 0 | 0.00 KM |
| Hurstwood | £ 301,667 | 0 | 0.00 KM |
| Victoria Road | £ 0 | 0 | 0.00 KM |
Nearby Transport
| Name | NLC | TLC | Distance |
|---|---|---|---|
| Chatham | 5199 | CTM | 3.83 KM |
| Rochester | 5203 | RTR | 4.59 KM |
| Gillingham (Kent) | 5169 | GLM | 5.49 KM |
| Strood (Kent) | 5191 | SOO | 6.11 KM |
| Cuxton | 5201 | CUX | 7.33 KM |
Nearby Listings
| Address | Price | Type | Score | Distance |
|---|---|---|---|---|
| Silverweed Road, Chatham, ME5 | £ 265,000 | BUY | 5 / 10 | 0.00 KM |
| Jasmine Close, Weedswood, Kent, ME5 | £ 260,000 | BUY | 6 / 10 | 0.10 KM |
| Winchester Avenue, Chatham, Kent, ME5 | £ 389,995 | BUY | 7 / 10 | 0.12 KM |
| Winchester Avenue, Chatham, Kent, ME5 | £ 330,000 | BUY | 6 / 10 | 0.12 KM |
| Rugby Close, Chatham | £ 375,000 | BUY | 7 / 10 | 0.13 KM |
Nearby Properties
| Address | Price | Distance |
|---|---|---|
| 61 Silverweed Road | £ 227,500 | 0.01 KM |
| 53 Silverweed Road | £ 205,000 | 0.01 KM |
| 110 Silverweed Road | £ 295,000 | 0.01 KM |
| 65 Silverweed Road | £ 235,000 | 0.01 KM |
| 104 Silverweed Road | £ 238,000 | 0.01 KM |