Two Mile Hill Road, Bristol
By Parks Estate Agents
£ 170,000
Reviews
2 out of 5 stars
Parks Estate Agents says ..
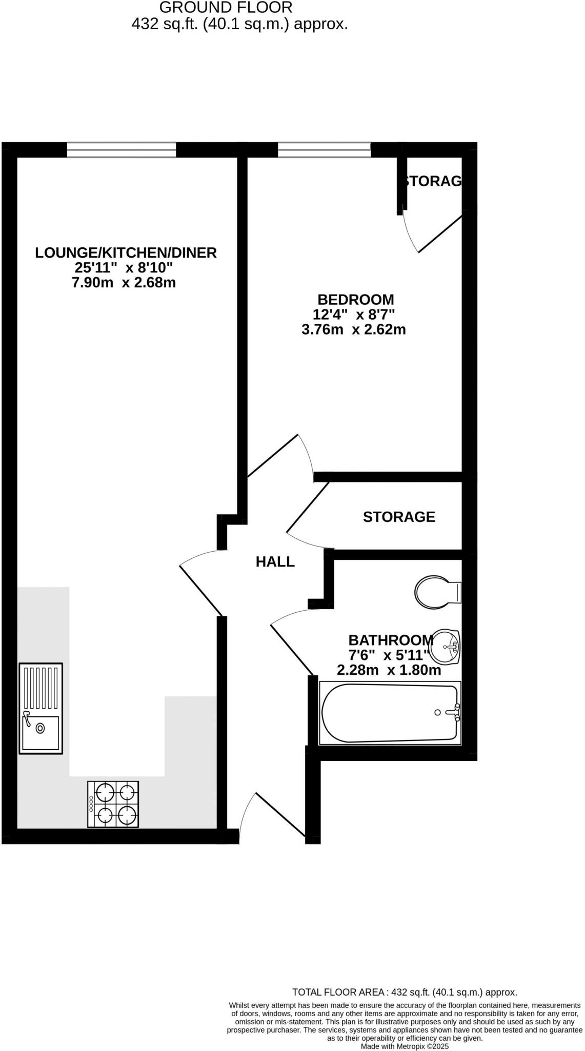
Parks Sales & Lettings are delighted to offer this well presented purpose built one bedroom flat set within a very well maintained and secure modern development. This property is on the second floor has lovely views to the rear and benefits from a lift and also stairs. This development is locat...
Property Oracle says ..
This property is a one-bedroom apartment situated in Kingsway Court on Two Mile Hill Road, Bristol. The apartment is part of a larger building, offering a modern and clean aesthetic. The photos showcase a recently updated kitchen and bathroom, suggesting the property has been well-maintained. The interior is well-presented with modern fittings. The living space is compact but adequately furnished and functional. The lack of outdoor space and private garden should be considered a key factor. The location is convenient with nearby schools rated ‘Good’ by Ofsted and several transport links within a reasonable distance. However, prospective buyers should independently verify the quality of the surrounding neighborhood and available amenities. The pricing seems competitive for a one-bedroom apartment in the region, although its value will be influenced by factors like apartment specific amenities, parking availability (if any), and potential future maintenance costs inherent with apartment ownership.
Therefore, we give this property 5 / 10. *Disclaimer: This is our option and does constitute a recommendation or financial advice. Do your own research. *
- Price
- 7
- Condition
- 7
- Location
- 6
- Land
- 1
- Bedrooms
- 1
- Bathrooms
- 1
- Sqft (est)
- 431.63
The heatmap indicates the level of crime in the area. The color of the heatmap indicates the crime severity and recency.
Metrics Year-on-Year
- Average area value
- 383,749.00 £Increased by 21.52 %
- Est sale value
- 188,622.31 £Increased by 45.18 %
- Average area rental value
- 1,248.00 £/moDecreased by 5.60 %
- Est letting value
- 431.63 £/moUnchanged by 0.00 %
- Est rental Yield
- 3.90 %Decreased by 22.31 %
- Crime Rate
- 5.00 %Unchanged by 0.00 %
Agent Activity
Parks Estate Agents created the listing.
Nearby Schools
| Name | Type | Ofsted | Distance |
|---|---|---|---|
| Two Mile Hill Primary School | Community School | Good | 0.67 KM |
| Bristol Brunel Academy | Academy Sponsor Led | Good | 0.70 KM |
| Air Balloon Hill Primary School | Community School | Good | 0.71 KM |
| Speedwell Nursery School & Children'S Centre | Children's Centre | 0.93 KM | |
| Speedwell Nursery School | Local Authority Nursery School | Outstanding | 0.94 KM |
Images
Nearby Streets
| Name | Average Price | Average Sqft | Distance |
|---|---|---|---|
| Burchell Green Close | £ 0 | 0 | 0.00 KM |
| King Street | £ 390,000 | 0 | 0.00 KM |
| Sherwood Road | £ 312,500 | 0 | 0.00 KM |
| St Michaels Drive | £ 0 | 0 | 0.00 KM |
| Speedwell Road | £ 0 | 0 | 0.00 KM |
Nearby Transport
| Name | NLC | TLC | Distance |
|---|---|---|---|
| Lawrence Hill | 3225 | LWH | 4.45 KM |
| Stapleton Road | 3250 | SRD | 4.66 KM |
| Keynsham | 3237 | KYN | 5.85 KM |
| Bristol Parkway | 3230 | BPW | 6.08 KM |
| Filton Abbey Wood | 3235 | FIT | 6.36 KM |
Nearby Listings
| Address | Price | Type | Score | Distance |
|---|---|---|---|---|
| Freshland Way, Bristol | £ 235,000 | BUY | 6 / 10 | 0.07 KM |
| Burchells Green Road, Bristol | £ 275,000 | BUY | 6 / 10 | 0.08 KM |
| Queen Street, Kingswood, Bristol | £ 300,000 | BUY | 7 / 10 | 0.12 KM |
| Two Mile Hill Road, Kingswood, Bristol, BS15 | £ 325,000 | BUY | 6 / 10 | 0.17 KM |
| Heather Close, Kingswood | £ 345,000 | BUY | 6 / 10 | 0.18 KM |
Nearby Properties
| Address | Price | Distance |
|---|---|---|
| 97 Two Mile Hill Road | £ 225,000 | 0.02 KM |
| 95 Two Mile Hill Road | £ 60,000 | 0.02 KM |
| 90 Two Mile Hill Road | £ 212,000 | 0.05 KM |
| 120 Two Mile Hill Road | £ 153,500 | 0.05 KM |
| 100 Two Mile Hill Road | £ 169,000 | 0.05 KM |