Corum says ..
Extremely smart, extended, two bedroom, semi detached villa, with a quiet, tucked-away location, convenient for Milngavie village centre.
Property Oracle says ..
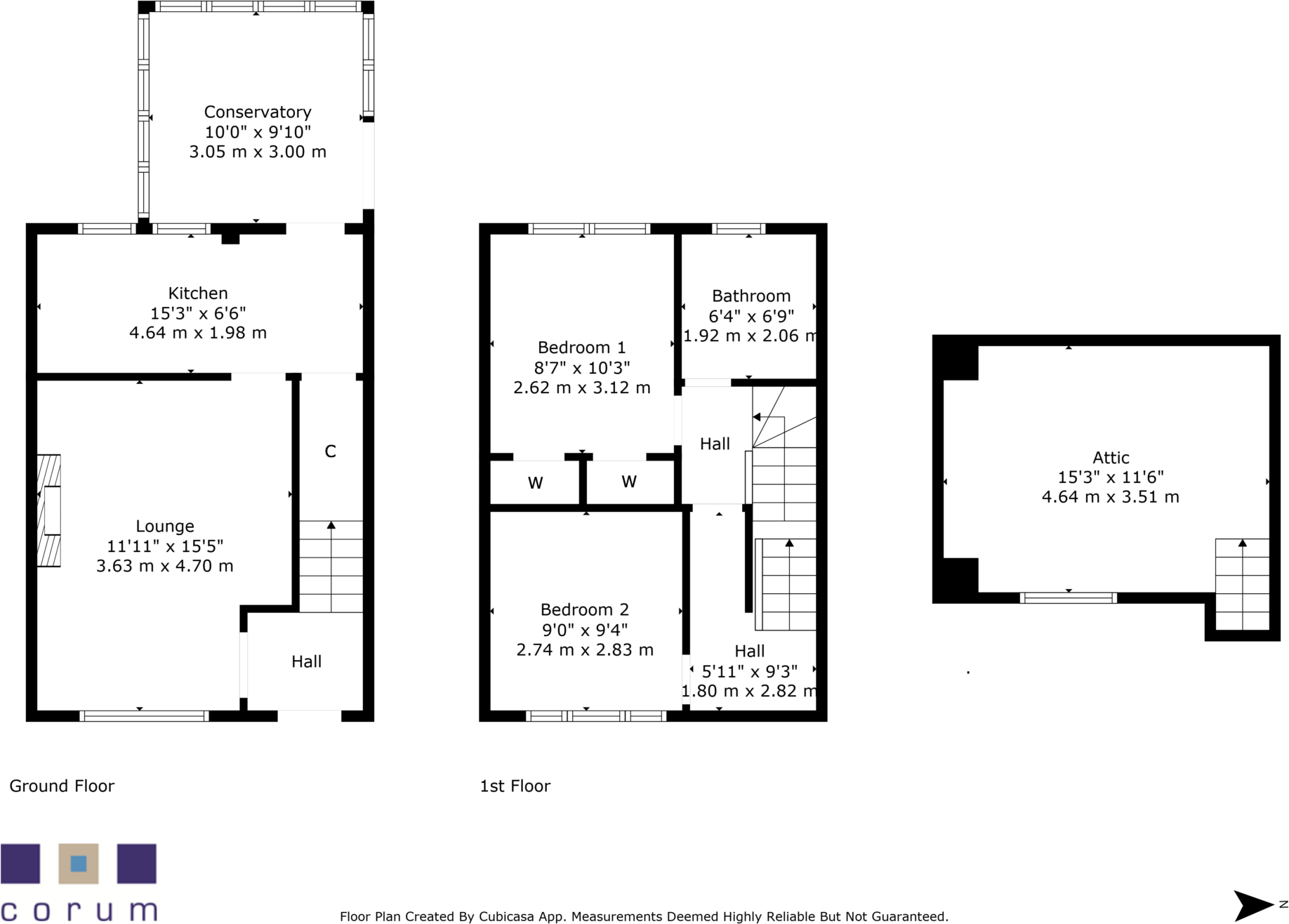
This is a well-presented semi-detached property in a popular residential area. The property is in good condition and has a good-sized garden. The property is located close to the town centre and train station. The property is priced reasonably and would make an ideal family home.
Therefore, we give this property 7 / 10. *Disclaimer: This is our option and does constitute a recommendation or financial advice. Do your own research. *
- Price
- 7
- Condition
- 8
- Location
- 7
- Land
- 7
- Bedrooms
- 2
- Bathrooms
- 1
- Sqft (est)
- 829.06
The heatmap indicates the level of crime in the area. The color of the heatmap indicates the crime severity and recency.
Metrics Year-on-Year
- Average area value
- 512,500.00 £Increased by 58.76 %
- Est sale value
- 567,906.10 £Increased by 135.40 %
- Average area rental value
- 1,100.00 £/moDecreased by 47.62 %
- Est letting value
- 829.06 £/moUnchanged by 0.00 %
- Est rental Yield
- 2.58 %Decreased by 66.97 %
- Crime Rate
- 0.00 %
from 322,824.00 £
from 241,256.46 £
from 2,100.00 £/mo
from 829.06 £/mo
from 7.81 %
from 0.00 %
Agent Activity
Corum created the listing.
Images
Nearby Streets
| Name | Average Price | Average Sqft | Distance |
|---|---|---|---|
| Bears Way | £ 0 | 0 | 0.00 KM |
| Glasgow Road | £ 0 | 0 | 0.00 KM |
| Braeside Avenue | £ 258,332 | 0 | 0.00 KM |
| Nethermains Road | £ 367,000 | 0 | 0.00 KM |
| Hazel Avenue | £ 0 | 0 | 0.00 KM |
Nearby Transport
| Name | NLC | TLC | Distance |
|---|---|---|---|
| Milngavie | 9985 | MLN | 0.99 KM |
| Hillfoot | 9983 | HLF | 1.45 KM |
| Bearsden | 9966 | BRN | 2.43 KM |
| Westerton | 9998 | WES | 3.70 KM |
| Maryhill | 9957 | MYH | 4.26 KM |
Nearby Listings
| Address | Price | Type | Score | Distance |
|---|---|---|---|---|
| 100 Main Street, Milngavie, G62 6JN | £ 235,000 | BUY | 7 / 10 | 0.00 KM |
| 104 Main Street, Milngavie, G62 6JN | £ 295,000 | BUY | Unknown | 0.09 KM |
| Alexander Grove, Bearsden, G61 | £ 350,000 | BUY | 6 / 10 | 0.15 KM |
| Flat 1, 84 Main Street, Milngavie, G62 6JN | £ 225,000 | BUY | Unknown | 0.17 KM |
| Flat 3/3, 9 Alexander Grove, Bearsden, G61 3EF | £ 295,000 | BUY | 6 / 10 | 0.21 KM |