CU
Oldfield Drive, Vicars Cross, CH3
By Currans Homes
£ 1,200
Currans Homes says ..
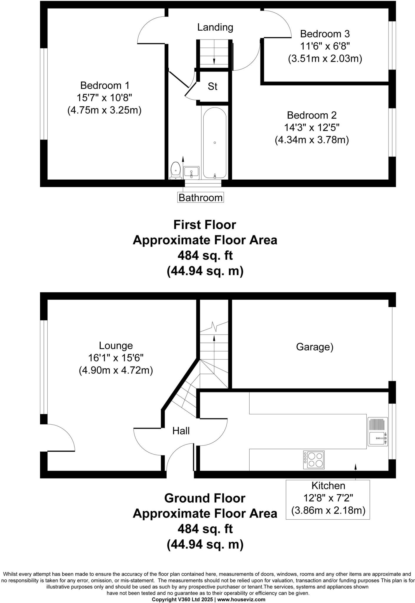
Welcome to Oldfield Drive, a charming three-bedroom semi-detached home located in the desirable area of Vicars Cross.
- Bedrooms
- 3
- Bathrooms
- 1
The heatmap indicates the level of crime in the area. The color of the heatmap indicates the crime severity and recency.
Metrics Year-on-Year
- Average area value
- 304,375.00 £Increased by 1.56 %
- Average area rental value
- 874.00 £/moDecreased by 24.13 %
- Est rental Yield
- 3.45 %Decreased by 25.16 %
- Crime Rate
- 12.00 %Unchanged by 0.00 %
from 299,690.00 £
from 1,152.00 £/mo
from 4.61 %
from 12.00 %
Agent Activity
Currans Homes created the listing.
Nearby Schools
| Name | Type | Ofsted | Distance |
|---|---|---|---|
| Oldfield Primary School | Community School | Good | 0.36 KM |
| Boughton Heath Academy | Academy Converter | 1.44 KM | |
| Cherry Grove Primary School | Community School | Good | 1.56 KM |
| Hoole Church Of England Primary School | Voluntary Controlled School | Good | 1.66 KM |
| Maple Grove School | Other Independent Special School | 1.67 KM |
Images
Nearby Streets
| Name | Average Price | Average Sqft | Distance |
|---|---|---|---|
| Norton Road | £ 0 | 0 | 0.00 KM |
| George Close | £ 0 | 0 | 0.00 KM |
| Dulverton Avenue | £ 270,000 | 0 | 0.00 KM |
| Broadmead | £ 0 | 0 | 0.00 KM |
| Hilary Close | £ 415,000 | 0 | 0.00 KM |
Nearby Transport
| Name | NLC | TLC | Distance |
|---|---|---|---|
| Chester | 2412 | CTR | 3.05 KM |
| Bache | 2187 | BAC | 4.64 KM |
| Stanlow And Thornton | 2159 | SNT | 9.34 KM |
| Ince And Elton (Cheshire) | 2122 | INE | 9.89 KM |
Nearby Listings
| Address | Price | Type | Score | Distance |
|---|---|---|---|---|
| Oldfield Drive, Vicars Cross, CH3 | £ 1,250 | RENT | Unknown | 0.12 KM |
| Bridgewater Drive, Chester, Cheshire, CH3 | £ 1,150 | RENT | Unknown | 0.15 KM |
| Richmond Crescent, Vicars Cross | £ 1,400 | RENT | Unknown | 0.31 KM |
| Plumley Close, Vicars Cross | £ 950 | RENT | Unknown | 0.33 KM |
| Broadmead, Chester | £ 1,100 | RENT | Unknown | 0.35 KM |
Nearby Properties
| Address | Price | Distance |
|---|---|---|
| 41 Oldfield Drive | £ 270,000 | 0.05 KM |
| 43 Oldfield Drive | £ 136,855 | 0.05 KM |
| 15 Oldfield Drive | £ 105,000 | 0.05 KM |
| 31 Oldfield Drive | £ 276,000 | 0.05 KM |
| 3 Oldfield Drive | £ 190,000 | 0.05 KM |