Vincent Shaw says ..
A stylish and well-laid-out two-bedroom maisonette that offers modern living in the sought-after CB4 area. The property is recently renovated with re-fitted kitchen and bathroom and has its own enclosed courtyard garden. This property has no onward chain so it is ideal for a buyer wanting to purc...
Property Oracle says ..
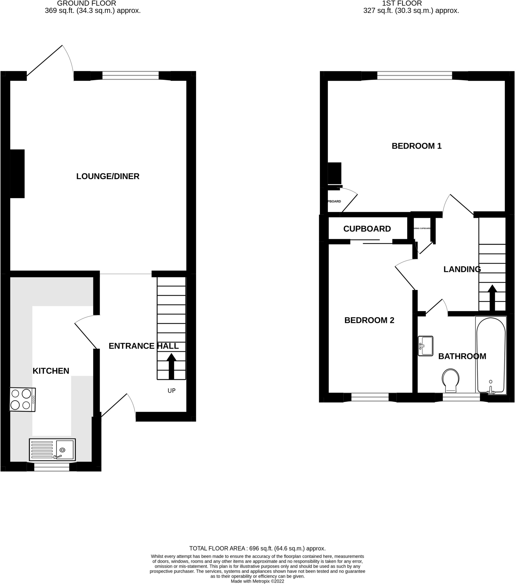
The property is a 2-bedroom flat located on Cockerell Road in the Arbury area of Cambridge. The flat is part of a larger building, and benefits from a small, enclosed garden. The interior appears to be in good condition, with a recently updated kitchen and bathroom. The flooring and walls are in good condition. The location is convenient, with several primary and secondary schools within a short distance. Cambridge city centre is also relatively close, providing access to a wider range of amenities and transport links. There are several train stations within a reasonable distance, offering good connectivity to other parts of the UK. While the property has a small garden, the plot size is limited, typical for a flat in this area. Considering the average price per square foot in the area is £381, and the property is listed at £249,950 for 696 sqft, this translates to approximately £359 per sqft. This is lower than the average price per sqft for the area, suggesting the list price may represent good value, especially given the apparent good condition of the property and its convenient location. However, the lack of data on the sqft of comparable properties makes definitive conclusions on price difficult.
Therefore, we give this property 6 / 10. *Disclaimer: This is our option and does constitute a recommendation or financial advice. Do your own research. *
- Price
- 7
- Condition
- 8
- Location
- 8
- Land
- 3
- Bedrooms
- 2
- Bathrooms
- 1
- Sqft (est)
- 696.00
The heatmap indicates the level of crime in the area. The color of the heatmap indicates the crime severity and recency.
Metrics Year-on-Year
- Average area value
- 283,958.00 £Decreased by 40.38 %
- Est sale value
- 215,760.00 £Decreased by 16.44 %
- Average area rental value
- 1,312.00 £/moDecreased by 22.32 %
- Est letting value
- 696.00 £/moUnchanged by 0.00 %
- Est rental Yield
- 5.54 %Increased by 30.05 %
- Crime Rate
- 12.00 %Unchanged by 0.00 %
Agent Activity
Vincent Shaw created the listing.
Nearby Schools
| Name | Type | Ofsted | Distance |
|---|---|---|---|
| Arbury Primary School | Community School | Good | 0.27 KM |
| Castle School, Cambridge | Community Special School | Good | 0.75 KM |
| Chesterton Community College | Academy Converter | Outstanding | 0.75 KM |
| St Laurence Catholic Primary School | Academy Converter | 0.79 KM | |
| St Luke'S Cofe Primary School | Academy Sponsor Led | 0.81 KM |
Images
Nearby Streets
| Name | Average Price | Average Sqft | Distance |
|---|---|---|---|
| Essex Close | £ 0 | 0 | 0.00 KM |
| Daisy Close | £ 0 | 0 | 0.00 KM |
| Arbury Road | £ 525,000 | 0 | 0.00 KM |
| Aingers Lane | £ 615,000 | 0 | 0.00 KM |
| Turvill Place | £ 0 | 0 | 0.00 KM |
Nearby Transport
| Name | NLC | TLC | Distance |
|---|---|---|---|
| Cambridge | 7022 | CBG | 3.92 KM |
| Cambridge North | 8001 | CMB | 4.39 KM |
| Shelford (Cambs) | 7043 | SED | 8.69 KM |
| Waterbeach | 7079 | WBC | 9.63 KM |
Nearby Listings
| Address | Price | Type | Score | Distance |
|---|---|---|---|---|
| Cockerell Road, Cambridge | £ 249,950 | BUY | 6 / 10 | 0.00 KM |
| Cockerell Road, CAMBRIDGE | £ 250,000 | BUY | 6 / 10 | 0.08 KM |
| Cockerell Road, Cambridge, CB4 | £ 360,000 | BUY | 7 / 10 | 0.09 KM |
| Cockerell Road, Cambridge | £ 200,000 | BUY | 7 / 10 | 0.09 KM |
| Topham Way, Cambridge, Cambridgeshire, CB4 | £ 400,000 | BUY | 6 / 10 | 0.10 KM |
Nearby Properties
| Address | Price | Distance |
|---|---|---|
| 72 Cockerell Road | £ 246,000 | 0.00 KM |
| 50 Cockerell Road | £ 187,000 | 0.00 KM |
| 58 Cockerell Road | £ 149,995 | 0.00 KM |
| 46 Cockerell Road | £ 137,000 | 0.00 KM |
| 76 Cockerell Road | £ 246,000 | 0.00 KM |